Version: 8.25.1Navigation überspringen
625.000 €
3 Zimmer  •  126,9 m²  •  5. Geschoss  •  frei ab 01.07.2028
Immowelt logo

Wohnung zum Kauf - Erstbezug • provisionsfrei
625000 €
4.924 €/m²
3 Zimmer  •  126,9 m²  •  5. Geschoss  •  frei ab 01.07.2028

Goethestadt Weimar - außergewöhnliche ETW mit Dachterrasse, Fahrstuhl und TG-Stellplatz

Das sich im Bau befindliche Mehrfamilienhaus mit KfW 60-Standard liegt im Stadtzentrum von Weimar und verfügt über 19 Wohneinheiten mit innovativen Grundrissen (ca. 33 m² bis 130 m²) und einer Tiefgarage mit 20 Stellplätzen. Die Bezugsfertigkeit ist für 12/2024 geplant (ausgenommen sind jahreszeitlich abhängige Außenanlagengestaltungen). Die Einheiten verteilen sich auf das Untergeschoss, Erdgeschoss, 1. - 3. Obergeschoss und das Dachgeschoss. Über den Personenaufzug ab Tiefgarage oder das freundliche Treppenhaus mit bodentiefen Fensterelementen sind die einzelnen Wohnebenen erreichbar.

Diese neue Wohnanlage zeichnet sich aus durch moderne Architektur, modernste Ausstattung und Technik, wie z. B. ein digitales Zutrittskontrollsystem, Solaranlage, strukturierte CAT 7-Verkabelung u.v.m.

Alle Wohnungen verfügen über einen Balkon, Loggia oder eine Terrasse. Die geräumigen Keller besitzen eine zusätzliche Dose zum Laden von Elektrobikes. Die Abstimmung zur Gestaltung der Außenanlagen erfolgt in der Bauphase. Alle nachfolgend aufgeführten Bauleistungen werden nach den anerkannten Regeln der Technik (Stand bei Abgabe des Bauantrages) ausgeführt.

Merkmale

  • frei ab 01.07.2028
  • vermietet
  • Dachgeschoss, 5. Geschoss
  • Personenaufzug
  • Keller
  • Außen-Stellplatz
  • Gäste-WC

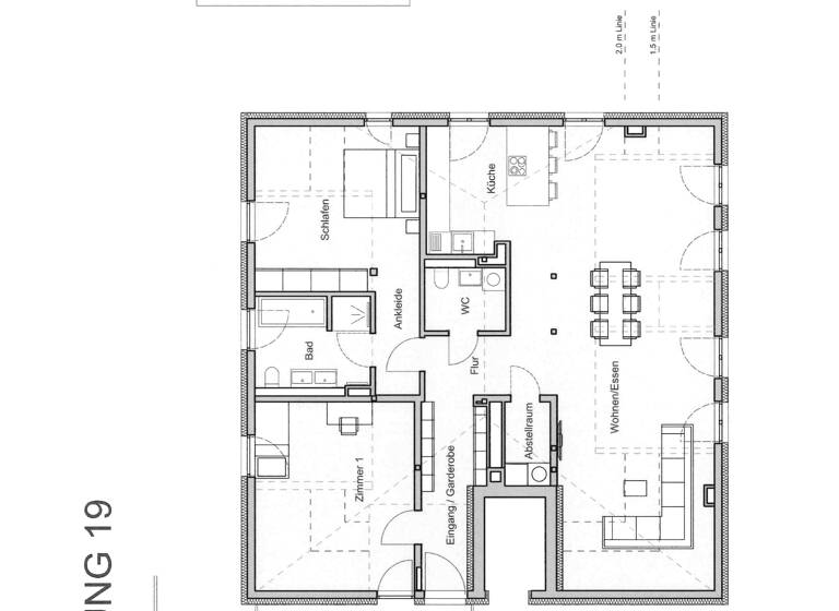
Grundrisse

Grundrisse
1 / 2

Realisiere Dein Projekt

Bausubstanz und Energie

Energieausweis

A
  • Baujahr2024
  • Zustand der ImmobilieNeubau, Erstbezug
  • HeizungsartFußbodenheizung
  • EnergieträgerGas
Immowelt logo

Preisdetails

Kaufpreis
625000 €
4.923,59 €/m²
Provision für Käufer
provisionsfrei; provisionsfrei!
Weitere Preisinformationen
1 Stellplatz
Geschätzte Gesamtkosten
668.750 €1
Kaufpreis
625.000 €
Notarkosten (1,5%)
9.375 €
Grunderwerbsteuer (5%)
31.250 €
Grundbucheintrag (0,5%)
3.125 €
1Der angezeigte Wert ist eine automatisch berechnete Schätzung von immowelt.
2Bei den Angaben handelt es sich um ortsübliche Werte. Individuelle Kosten können abweichen.

Lage

address-icon
NordvorstadtWeimar (99423)
Der Anbieter hat die genaue Adresse nicht freigegeben
Die Kulturstadt Weimar ist eine kreisfreie Stadt im zentral gelegenen deutschen Bundesland Thüringen. Sie ist für ihr kulturelles Erbe und die Epoche der Weimarer Klassik bekannt, einer humanistisch-kulturellen Bewegung. Mit dem Goethe- und Schillerdenkmal vor dem Deutschen Nationaltheater wird an die beiden Dichter erinnert, die in der Stadt lebten. Die historische Altstadt, das Weimarer Atrium, Bauhaus-Museum, Kinos und Nationaltheater sind in wenigen Minuten zu erreichen. Der Hauptbahnhof, Busse und Straßenbahnen sind ebenfalls fußläufig erreichbar.

Weitere Informationen

Stichworte Tiefgarage vorhanden, Nutzfläche: 1,70 m², Anzahl der Schlafzimmer: 2, Anzahl der Badezimmer: 1, Anzahl der separaten WCs: 1, Anzahl Terrassen: 1, Balkon-Terrassen-Fläche: 10,32 m², Kellerfläche: 5,20 m², 5 Etagen, Stadtzentrumslage Sonstiges/Wohnen: seniorengerechtes Wohnen

Weitere Services

Lust auf eine Besichtigung?
Eine Frage zur Immobilie?
Nachricht hinzufügen
Mit der Nutzung der oben angegebenen Telefonnummer oder durch Klicken auf „Kontaktieren“ akzeptierst Du die Allgemeinen Nutzungsbedingungen, denen Du jederzeit widersprechen kannst. Weitere Informationen zum Datenschutz

Über den Anbieter

Lutherplatz 6, 99817 Eisenach
Frau Silke SommerDein Kontakt
Online-ID: 247N4384LRDM
Referenznummer: 130825697#Jjo52t
Sommer Immobilien
Sommer Immobilien
Nachricht hinzufügen
Mit der Nutzung der oben angegebenen Telefonnummer oder durch Klicken auf „Kontaktieren“ akzeptierst Du die Allgemeinen Nutzungsbedingungen, denen Du jederzeit widersprechen kannst. Weitere Informationen zum Datenschutz
Wie zufrieden bist du mit dieser Seite (nicht mit der Immobilie selbst)?