Version: 8.24.0Navigation überspringen
189.000 €
4 Zimmer  •  54 m²  •  83 m² Grundstück  •  frei ab sofort
Immowelt logo

Ferienhaus zum Kauf • provisionsfrei
189000 €
3.500 €/m²
4 Zimmer  •  54 m²  •  83 m² Grundstück  •  frei ab sofort

Genießen Sie die Ruhe und den Raum dieses Reihenferienhauses in bester Lage am Grevelingenmeer, komplett mit drei Schlafzimmern

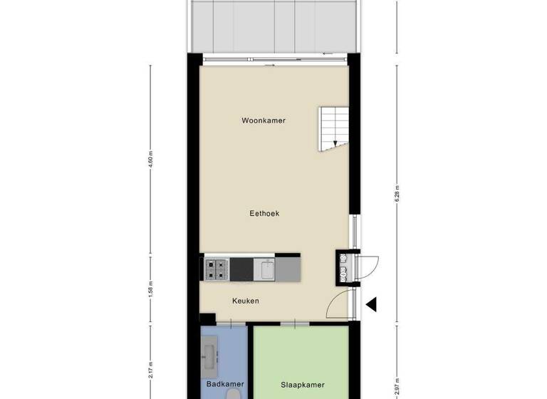
Genießen Sie die Ruhe und den Raum dieses Reihenferienhauses mit solaranlage in bester Lage am Grevelingenmeer, komplett mit drei Schlafzimmern und einem sonnigen Garten. HOOGERWERFSWEG DE TONG 91 TE BRUINISSE NAHE AM WASSER UND AM GOLFPLATZ Suchen Sie einen ruhig gelegenen Rückzugsort in Zeeland? Dieses Objekt befindet sich nur wenige Schritten vom Grevelingenmeer entfernt. In wenigen Minuten erreichen Sie den nahegelegenen Jachthafen für einen Tag auf dem Wasser. Die Sportlichen unter Ihnen werden vom wunderschönen 18-Loch-Golfplatz in unmittelbarer Nähe des Parks begeistert sein. Die naturnahe Umgebung bietet jeden Tag das herrliche Urlaubsgefühl der Niederlande. KOMFORTABLES WOHNPROGRAMM IM ERDGESCHOSS Der Grundriss der Immobilie ist äußerst praktisch eingeteilt, mit einem kompletten Wohnprogramm im Erdgeschoss. Hier befinden sich das Wohnzimmer, die Küche, das Badezimmer und ein Schlafzimmer. Dadurch eignet sich das Haus auch hervorragend für Käufer, die stufenlosen Komfort zu schätzen wissen. Durch die clevere Aufteilung wird jeder Quadratmeter optimal genutzt. Mit insgesamt drei Schlafzimmern bietet das Haus außerdem Platz für die ganze Familie. EIN RUNDGANG DURCH DAS HAUS Beim Betreten des Ferienhauses durch den Seiteneingang gelangt man direkt in den Wohnraum. Die halboffene Küche ist komplett mit Schränken und Küchengeräten eingerichtet. Das zum Garten hin ausgerichtete Wohnzimmer ist mit einem Laminat-Fußboden versehen und verfügt über einen Fernsehanschluss. Durch die breite Schiebetür gelangt man auf die überdachte Terrasse und in den sonnigen Garten. An der Vorderseite des Hauses befinden sich ein Schlafzimmer und das Badezimmer. Dieses Badezimmer ist komplett gefliest und verfügt über eine bodengleiche Dusche, ein WC und einen Waschtisch. Vom Wohnzimmer aus führt eine Treppe in den ersten Stock. Auf dem Flur im ersten Stock befindet sich ein praktischer Raum mit der Erdgas-Kombitherme. In diesem Raum befindet sich außerdem das zweite WC. Beide hellen Schlafzimmer verfügen über ein großes Dachfenster. Zum Außenbereich gehört ein nach Südosten ausgerichteter Garten mit Rasenfläche und Gartenhaus. Dieser Garten ist auf der Außenseite her frei zugänglich. KLUGE INVESTITION MIT NIEDRIGEN FIXKOSTEN Neben der Eigennutzung eignet sich diese Immobilie hervorragend zur Vermietung an Urlauber. Das Ferienhaus ist aufgrund seiner guten Ausstattung bei Gästen aus dem In- und Ausland sehr beliebt. Ein weiterer großer Vorteil dieses Parks sind die niedrigen Parkgebühren für die Eigentümer. Dadurch erzielen Sie monatlich mehr Rendite aus Ihren Mieteinnahmen. Das Objekt ist also eine interessante und langfristig sinnvolle Investition. DIE GEMÜTLICHKEIT VON BRUINISSE Der ruhige und gepflegte Ferienpark liegt abseits der Touristenströme. Sie können Ihr Gepäck bequem vor der Tür ausladen, bevor Sie das Auto auf dem gemeinschaftlichen Parkplatz abstellen. Der Park ist grundsätzlich autofrei und die Spielwiesen für Kinder sind sehr sicher. Im Fischerdorf Bruinisse erleben Sie die zeeländische Gastfreundschaft und die kulinarischen Genüsse der Nordsee und Muschelkulturen. Die wichtigsten Merkmale: • Preisvorstellung: 189.000 € Übereignungsgebühren zulasten des Käufers • Standort: In Gehdistanz zum Grevelingenmeer und Jachthafen. • Schlafzimmer: 3 Schlafzimmer auf zwei Ebenen. • Mieteinnahmen: Sehr gutes Vermietungspotential und niedrige Parkgebühren. • Einteilung: Komplettes Wohnprogramm im Erdgeschoss mit Schlafzimmer und Badezimmer. • Garten: Sonniger Garten (Südosten) mit überdachter Terrasse, Rasenfläche und Schuppen. • Freizeitangebote: 18-Loch-Golfplatz und verschiedene Spielwiesen. • Isolation: Größtenteils Kunststofffensterrahmen mit Isolierverglasung. • Sanitäranlagen: Badezimmer im Erdgeschoss und ein zweites WC im ersten Stock. • Eigentumsübertragung: Nach Vereinbarung. Die Objekte werden gemäß der Messanweisung nach der NEN2580-Norm vermessen. Die Messanweisung soll eine möglichst einheitliche Messmethode zur Ermittlung der Nutzfläche gewährleisten. Die Messanweisung schließt Unterschiede in den Messergebnissen nicht vollständig aus, beispielsweise aufgrund von Interpretationsunterschieden, Ab- oder Aufrundungen oder Einschränkungen bei der Durchführung der Messung.

Merkmale

  • frei ab sofort
  • 83 m² Grundstück
  • Einbauküche, offene Küche
  • Kein Keller
  • 2 Bad/WC getrennt, Gäste-WC
  • Garten
  • Terrasse

Grundrisse

Grundrisse
1 / 2

Realisiere Dein Projekt

Bausubstanz und Energie

Der Anbieter hat keine Informationen zum Energieverbrauch bereit gestellt.
  • Baujahr1979
  • Zustand der ImmobilieGepflegt
  • HeizungsartZentralheizung: Heizkörper
  • EnergieträgerGas, Solar, fossile Brennstoffe
Immowelt logo

Preisdetails

Kaufpreis
189000 €
3.500 €/m²
Provision für Käufer
provisionsfrei

Lage

address-icon
Bruinisse (4311NP)
Der Anbieter hat die genaue Adresse nicht freigegeben

Weitere Services

Lust auf eine Besichtigung?
Eine Frage zur Immobilie?
Nachricht hinzufügen
Mit der Nutzung der oben angegebenen Telefonnummer oder durch Klicken auf „Kontaktieren“ akzeptierst Du die Allgemeinen Nutzungsbedingungen, denen Du jederzeit widersprechen kannst. Weitere Informationen zum Datenschutz

Über den Anbieter

Nieuwstraat 18, 4311 BRUINISSE
partner badge
Partnerschaft
Herr Niels van den Ouden
Herr Niels van den OudenDein Kontakt

Weitere Unterlagen

Online-ID: 2nqu55n
Van den Ouden Makelaars
title
Van den Ouden Makelaars
Nachricht hinzufügen
Mit der Nutzung der oben angegebenen Telefonnummer oder durch Klicken auf „Kontaktieren“ akzeptierst Du die Allgemeinen Nutzungsbedingungen, denen Du jederzeit widersprechen kannst. Weitere Informationen zum Datenschutz
Wie zufrieden bist du mit dieser Seite (nicht mit der Immobilie selbst)?