Version: 8.22.4Navigation überspringen
210.000 €
680 m² Grundstück
Immowelt logo

Grundstück zum Kauf
210000 €
309 €/m²
680 m² Grundstück

Baubewilligtes Projekt - Doppelwohnhaus mit Carports

Kurzbeschreibung Baubewilligtes Projekt für Doppelwohnhaus Nähe Velden am Wörther See! Objekt Sparen Sie sich mühsame Wege zum Amt um eine Baubewilligung zu erhalten, sowie eine lange Planungsphase. Hier können Sie ein baubewilligtes Projekt für ein Doppelwohnhaus inkl. Carports sowie Baugrundstück kaufen.
Das ca. 680,00 m² große Grundstück bietet ausreichend Platz um ein Doppelhaus inkl. kleinen Gartenflächen und zwei Carports zu errichten.
Das Grundstück liegt an einer ruhigen Seitenstraße in unmittelbarer Nähe von Velden am Wörther See. Einerseits finden Sie hier Ruhe und andererseits ist man nur einen Katzensprung vom Hotspot am Wörhter See entfernt. Restaurants, Bars, Geschäfte, Casino, Hotels und der türkisblaue Wörther See findet man nur einen Hauch weit entfernt.
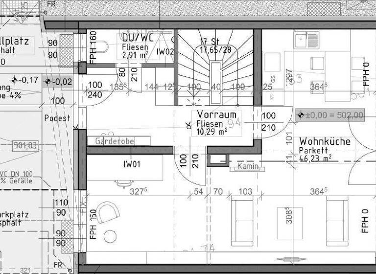
Das Projekt ist baugenehmigt, und kann sofort umgesetzt werden. Geplant wurde ein Doppelhaus mit zwei Wohneinheiten. Jeweils mit 122,42m² Wohnfläche auf drei Ebenen (Keller, EG, 1. OG).
Jede Wohneinheit hat eine große Terrasse und einen Gartenanteil. Des Weiteren gehört jeweils ein Autoabstellplatz sowie ein Carport zu jeder Wohneinheit.

Anfragen und Besichtigungen gerne unter 0664/887 29 846.

Merkmale

  • 680 m² Grundstück

Grundrisse

Grundrisse
1 / 5

Realisiere Dein Projekt

Bausubstanz und Energie

Der Anbieter hat keine Informationen zum Energieverbrauch bereit gestellt.
  • HeizungsartZentralheizung
  • EnergieträgerLuft-/Wasser-Wärmepumpe
Immowelt logo

Preisdetails

Kaufpreis
210000 €
308,82 €/m²
Provision für Käufer
3% des Kaufpreises plus 20% USt.

Lage

address-icon
Duel (9220)
Der Anbieter hat die genaue Adresse nicht freigegeben
Bauplatz in Velden am Wörthersee: Etwas versteckt, in einer ruhigen Ecke am Ortsrand von Velden, liegt der Dueler Waldweg. Bis zum Ortskern (Casino, Gemonaplatz, Kurpark...) sindes grade einmal 2.000 Meter.
Schifahren oder Wandern - Gerlitzen (Annenheim) ca. 15 Min., zum Einkaufsbummel nach Klagenfurt brauchen sie etwa gleich lang (30 Min.) wie für einenAusflug nach Italien nach Tarvisio und in 1,5 Stunden sind Sie am Meer z. B. in Grado.
Velden ist seit langem bekannt für seine vielfältigen Wassersport-Aktivitäten. Unter anderem ist die älteste Segelschule vom Wörthersee in Velden beheimatet. Geniessen Sie Ihre Zeit am Wasser, das südländische Flair in Velden am Wörthersee und das bunte Treiben rund um das bekannte Schloss am Wörthersee.
Velden am Wörther See ist eine Marktgemeinde mit 9098 Einwohnern im Bezirk Villach-Land im österreichischen Bundesland Kärnten. Außerdem ist Velden am Wörther See ein gesetzlich anerkannter Luftkurort sowie einer der bekanntesten und beliebtesten Fremdenverkehrsorte Österreichs.

Weitere Informationen

Stichworte Bundesland: Kärnten

Weitere Services

Lust auf eine Besichtigung?
Eine Frage zur Immobilie?
Nachricht hinzufügen
Mit der Nutzung der oben angegebenen Telefonnummer oder durch Klicken auf „Kontaktieren“ akzeptierst Du die Allgemeinen Nutzungsbedingungen, denen Du jederzeit widersprechen kannst. Weitere Informationen zum Datenschutz

Über den Anbieter

Hauptstraße 82, 9871 SEEBODEN
partner badge
10 Jahre Partnerschaft
Herr Emanuel KultererDein Kontakt
Online-ID: 2m6sv5k
Referenznummer: 0015000861
Raiffeisen Immobilien Kärnten GmbH
Raiffeisen Immobilien Kärnten GmbH
Bewertung: 4,6 von 5 Sternen
Nachricht hinzufügen
Mit der Nutzung der oben angegebenen Telefonnummer oder durch Klicken auf „Kontaktieren“ akzeptierst Du die Allgemeinen Nutzungsbedingungen, denen Du jederzeit widersprechen kannst. Weitere Informationen zum Datenschutz
Wie zufrieden bist du mit dieser Seite (nicht mit der Immobilie selbst)?