Version: 8.24.1Navigation überspringen
699.000 €
420 m²
Immowelt logo

Mehrfamilienhaus zum Kauf • als Kapitalanlage geeignet
699000 €
1.664 €/m²
420 m²

** ROHDACHBODEN mit BAUBEWILLIGUNG **

ROHDACHBODEN mit BAUBEWILLIGUNG

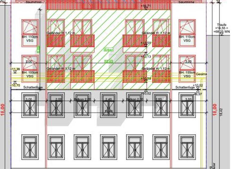
Bauklasse GB IV g 18 m

RDB im 3. Stock mit rd. 180 m²
Straßenfront 16,4 m, Tiefe 12,5 m
KP 699.000,- Euro
erzielbare WNF lt. Einreichplan rd. 420 m2 auf 3 Ebenen
plus rd 100 m2 Freiflächen

Gerne übermittle ich Ihnen EINREICHPLAN, Baubewilligung
und eine ausführliche FOTODOKUMENTATION sowie
weitere Unterlagen.

INFRASTRUKTUR: sehr gut! Spar, Billa und Penny
Gerne sende ich Ihnen eine ausführliche Lagebeschreibung.

ÖFFIS: Straßenbahnlinien 10, 52 und 60, Buslinie 10A
U-Bahnlinie U3 Johnstraße und Schnellbahn S45 Breitensee

SOFORT VERFÜGBAR!

KAUFPREIS:
699.000,- Euro für den Rohdachboden mit ERPL und Baubewilligung

Habe ich Sie von diesem Projekt überzeugt?
Gerne schicke ich Ihnen das ExposéÌ, Pläne, Unterlagen und vereinbare einen persönlichen Besichtigungstermin mit Ihnen. Ich freue mich auf Ihre Anfrage!

Sie wollen auch Ihre Wohnung/en verkaufen/vermieten?
Ich mache das gerne professionell und mit Begeisterung fuÌr Sie!
KOLB Sabine 00436764808181 kolb@immovos.at

Heizwärmebedarf: 40 kWH/qm/Jahr
fGEE: 0,79

Merkmale

  • Bezug: ab sofort
  • Personenaufzug
  • Terrasse
  • Barrierefrei

Grundrisse

Grundrisse
1 / 1

Realisiere Dein Projekt

Bausubstanz und Energie

Heizwärmebedarf (HWB)

B

Gesamtenergieeffizienz (fGEE)

  • Zustand der ImmobilieNeubau
  • EnergieträgerLuft-/Wasser-Wärmepumpe
Immowelt logo

Preisdetails

Kaufpreis
699000 €
1.664,29 €/m²
Provision für Käufer
3.00% + 20% USt

Lage

address-icon
Wien 15.,Rh-Fh (1150)
Johnstraße

Weitere Informationen

Stichworte Fahrradraum, Wohnfläche: 420,00 m², Anzahl Terrassen: 3, Balkon-Terrassen-Fläche: 100,00 m², Anzahl der Wohneinheiten: 5, Gemeindecode: 91501

Weitere Services

Lust auf eine Besichtigung?
Eine Frage zur Immobilie?
Nachricht hinzufügen
Mit der Nutzung der oben angegebenen Telefonnummer oder durch Klicken auf „Kontaktieren“ akzeptierst Du die Allgemeinen Nutzungsbedingungen, denen Du jederzeit widersprechen kannst. Weitere Informationen zum Datenschutz

Über den Anbieter

Seidlgasse 19, 1030 WIEN
partner badge
10 Jahre Partnerschaft
Sabine KolbDein Kontakt
Online-ID: 23YTVG6MXCHW
Referenznummer: 4664600
DR. VOSPERNIK IMMOBILIEN GMBH
DR. VOSPERNIK IMMOBILIEN GMBH
Bewertung: 4 von 5 Sternen
Nachricht hinzufügen
Mit der Nutzung der oben angegebenen Telefonnummer oder durch Klicken auf „Kontaktieren“ akzeptierst Du die Allgemeinen Nutzungsbedingungen, denen Du jederzeit widersprechen kannst. Weitere Informationen zum Datenschutz
Wie zufrieden bist du mit dieser Seite (nicht mit der Immobilie selbst)?