Version: 8.24.0Navigation ĂĽberspringen
308.000 €
3 Zimmer  â€˘  80 m²
Immowelt logo

Wohnung zum Kauf - Erstbezug • provisionsfrei
308000 €
3.851 €/m²
3 Zimmer  â€˘  80 m²

Moderne Eigentumswohnungen in ruhiger Stadtlage

Im Mindener Ortsteil Dankersen entsteht ab Anfang 2026 eine attraktive Eigentumswohnanlage mit sieben komfortablen Wohnungen, die modernes Wohnen, hochwertige Bauweise und eine ausgezeichnete Lage- miteinander verbindet.

Der Neubau richtet sich gleichermaßen an Eigennutzer wie an Kapitalanleger, die Wert auf Qualität und Zukunftssicherheit legen.

Mit dieser Wohnanlage schaffen wir ein Zuhause, das moderne Architektur, solide Bauqualität und nachhaltige Energietechnik vereint - und das in einer Lage, die sowohl für Familien als auch für Berufspendler attraktiv ist", betont der Projektentwickler.

Merkmale

Individuelle Ausstattungsmerkmale:

- elektrisch betriebene Rollläden
- Bäder mit Handtuchwärmekörpern
- gepflegte Gartenanlage
- behindertenfreundliche Aufzugsanlage mit Sicherheitsnotrufsystem
- einbruchshemmende WohnungseingangstĂĽren mit Mehrfachverriegelung
- hochwertige moderne Haustechnik
- hochwertige Bodenbeläge
- barrierefreies Bad mit Dusche und WC
- Garage/Stellplatz

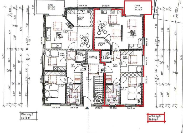
Die neue Wohnanlage bietet Wohnflächen zwischen 56 und 80 Quadratmetern - ideal für Singles, Paare oder kleine Familien. Zur Auswahl stehen 2- bis 3-Zimmer-Wohnungen, alle mit großzügigem Balkon oder Terrasse.

Das Gebäude wird in massiver Bauweise errichtet und überzeugt durch seine energieeffiziente Ausstattung:
Eine moderne Luft-Wärmepumpe in Kombination mit Fußbodenheizung sorgt für angenehme Wärme und niedrige Betriebskosten.

Für zusätzlichen Komfort sorgen elektrische Rollläden,barrierefreie Zugänge und eine Aufzugsanlage, die alle Etagen bequem erreichbar macht.

Die Wohnanlage ist voll unterkellert - inklusive separater Kellerräume und gemeinschaftlich nutzbarer Flächen. Darüber hinaus stehen Garagen und Außenstellplätze zur Verfügung.

Grundrisse

Grundrisse
1 / 2

Realisiere Dein Projekt

Bausubstanz und Energie

Energieausweis

Ein Energieausweis ist für diesen Gebäudetyp nicht notwendig.
  • Baujahr2026
  • Zustand der ImmobilieMassivhaus, Erstbezug
  • HeizungsartFuĂźbodenheizung
  • EnergieträgerLuft-/Wasser-Wärmepumpe
Immowelt logo

Preisdetails

Kaufpreis
308000 €
3.850,96 €/m²
Provision für Käufer
provisionsfrei; prov.frei
Geschätzte Gesamtkosten
334.180 €1
Kaufpreis
308.000 €
Notarkosten (1,5%)
4.620 €
Grunderwerbsteuer (6,5%)
20.020 €
Grundbucheintrag (0,5%)
1.540 €
1Der angezeigte Wert ist eine automatisch berechnete Schätzung von immowelt.
2Bei den Angaben handelt es sich um ortsübliche Werte. Individuelle Kosten können abweichen.

Lage

address-icon
Dankersen, Minden (32423)
Der Anbieter hat die genaue Adresse nicht freigegeben
Die Lage in Dankersen bietet die perfekte Balance zwischen Ruhe und guter Anbindung: In nur 1,6 Kilometern erreicht man den Mindener Hauptbahnhof, das Stadtzentrum Mindens liegt 2,5 Kilometer entfernt und auch die Residenzstadt BĂĽckeburg ist schnell erreichbar.

EinkaufsmögIichkeiten, Schulen, Kindergärten und medizinische Einrichtungen liegen in unmittelbarer Nähe - ideal für ein komfortables Leben im Grünen, ohne auf die Vorteile der
Stadt verzichten zu mĂĽssen.

Weitere Informationen

Sonstiges Setzen Sie sich jetzt direkt mit uns in Verbindung!

Gern teilen wir Ihnen nach vollständiger Adressangabe die Anschrift des angefragten Objektes mit.

Sie erreichen uns persönlich oder telefonisch von Montag bis Freitag in der Zeit von 09.00 bis 13.00 Uhr und 14.00 bis 17.00 Uhr, samstags nach Vereinbarung.

Ihr Kellermeier & Salge Team in Minden Stichworte Bundesland: Nordrhein-Westfalen Sonstiges/Wohnen: seniorengerechtes Wohnen

Weitere Services

Lust auf eine Besichtigung?
Eine Frage zur Immobilie?
Nachricht hinzufĂĽgen
Mit der Nutzung der oben angegebenen Telefonnummer oder durch Klicken auf „Kontaktieren“ akzeptierst Du die Allgemeinen Nutzungsbedingungen, denen Du jederzeit widersprechen kannst. Weitere Informationen zum Datenschutz

Ăśber den Anbieter

Stiftstr. 21, 32427 Minden
partner badge
Partnerschaft
Herr Reinhard BeckerDein Kontakt
Online-ID: 2nqbl5c
Referenznummer: 21313-3
KELLERMEIER & SALGE GMBH Immobilien
KELLERMEIER & SALGE GMBH Immobilien
Bewertung: 3,8 von 5 Sternen
Nachricht hinzufĂĽgen
Mit der Nutzung der oben angegebenen Telefonnummer oder durch Klicken auf „Kontaktieren“ akzeptierst Du die Allgemeinen Nutzungsbedingungen, denen Du jederzeit widersprechen kannst. Weitere Informationen zum Datenschutz
Wie zufrieden bist du mit dieser Seite (nicht mit der Immobilie selbst)?