

D.E.I.N. Immobilien GmbH
Herr Stjepan Babic, BA MA
+43 ···
Nr. anzeigenPreise & Kosten
Provision für Käufer
3% des Kaufpreises zzgl. 20% USt.
Lage
Kierlinger Gasse, Rathgasse
Das Haus
Kategorie
Doppelhaushälfte
Baujahr
2024
Energie & Heizung
Warum sehe ich diese Anzeige? – Du siehst diese Anzeige basierend auf Ihrer Navigation auf unserer Website und den Suchkriterien, die du verwendet hast.
Heizwärmebedarf (HWB)
38,00 kWh/(m²·a)
Gesamtenergieeffizienz (fGEE)
0,70
Weitere Energiedaten
Haustyp
Massivhaus
Heizungsart
Fußbodenheizung, Luft-/Wasser-Wärmepumpe
Details
Objektbeschreibung
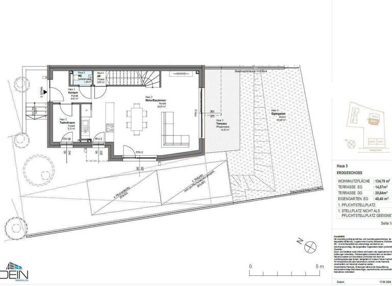
Zum Verkauf gelangen sechs derzeit in Bau befindliche 4-5 Zimmer Doppelhaushälften mit Freiflächen in Weidling.
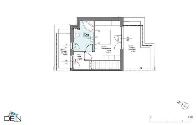
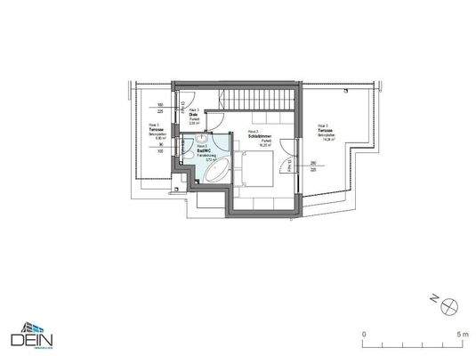
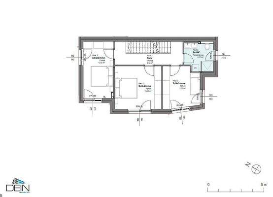
Raumaufteilung Top 3 und Top 4:
EG: Vorraum, Technikraum, Abstellraum, separate Toilette, Wohnküche, Terrasse.
OG: Flur, drei Schlafzimmer, Bad mit Dusche, Toilette und...
Weitere Informationen
Stichworte
Stellplatz vorhanden, Nutzfläche: 218,60 m², Anzahl der Badezimmer: 2, Anzahl der separaten WCs: 3, Anzahl Terrassen: 3, Balkon-Terrassen-Fläche: 35,41 m², Gartenfläche: 48,40 m², Bundesland: Niederösterreich
Anbieter der Immobilie
D.E.I.N. Immobilien GmbH
Anton-Freunschlag-Gasse 11, 1230 WIEN

Online-ID: 2fmln5t
Referenznummer: OBGC20240830120240847e90d081958
Finde Angebote wie dieses
Günstige Immobilienfinanzierung einfach online berechnen
Persönliches Angebot berechnenWarum sehe ich diese Werbung? – Du siehst diese Werbung basierend auf Deiner Navigation auf unserer Website und der von Dir verwendeten Suchkriterien.
Diese Werbung wird bezahlt von durchblicker
Werbung melden
Hier geht es zu unserem Impressum, den Allgemeinen Geschäftsbedingungen, den Hinweisen zum Datenschutz und nutzungsbasierter Online-Werbung.