

Maklerbuero Conny Hofmann / Conny Hofmann Immobilienmanagement
Frau Conny Hofmann
015 ···
Nr. anzeigenPreise & Kosten
Provision für Käufer
3,57%
Bei Abschluss eines Kaufvertrages wird eine Vermittlungs-/ Nachweisprovision in Höhe von 3,95 % inklusive 19 % Mehrwertsteuer auf den Kaufpreis vom Käufer fällig.
Abschreibung/Anlage
Denkmalschutz-Afa
Lage
Ihre neue Wohnung befindet sich im beliebten Stadtteil Stötteritz Ostsüdlich vom Stadtzentrum entfernt. Die öffentlichen Verkehrsmittel sind in unmittelbarer Umgebung. Ebenso befinden sich alle Einkaufmöglichkeiten des täglichen Bedarfs sowie Gastronomie vor Ort. Das Stötteritzer Wäldchen lädt zum Verweilen ein und im Sommer...
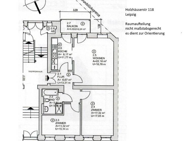
Die Wohnung
Derzeitige Nutzung
vermietet
Wohnanlage
Energie & Heizung
Warum sehe ich diese Anzeige? – Du siehst diese Anzeige basierend auf Ihrer Navigation auf unserer Website und den Suchkriterien, die du verwendet hast.
Weitere Energiedaten
Energieträger
Gas
Heizungsart
Zentralheizung
Details
Objektbeschreibung
Ihre exklusive Eigentumswohnung befindet sich in einem sehr gepflegten und 2015 kernsanierten Mehrfamilienhaus in der Hochparterre.
Zu der Wohnung gehört noch eine Abstellkammer auf halber Treppe sowie ein Kellerabteil. Der Waschmaschinenanschluss befindet sich im Keller im Gemeinschaftseigentum.
Die Wohnung ist...
Ausstattung
Diese lichtdurchflutete 3 Raumwohnung verfügt über eine exklusive Ausstattung und Raumaufteilung. Highlight sind die integrierten Deckenlichter in Flur und Badezimmer, sowie die straßenseitigen elektrischen Außenrollos.
Wohnzimmer und Küche sind durch eine Schiebetür miteinander verbunden und ebenso gelangen Sie vom...
Preisinformation
Ist-Mieteinnahmen pro Jahr: 7.800,00 EUR
Weitere Informationen
Sonstiges
Habe ich Ihr Interesse geweckt?
Gern können Sie mit mir einen Termin vereinbaren und auch gern weitere Unterlagen abfordern. Hierzu stehe ich Ihnen per Mail unter verkauf@maklerbuero.immobilien oder auch telefonisch unter 015202001039 sehr gern zur Verfügung.
Wir werden uns zeitnah bei Ihnen...
Anbieter der Immobilie
Maklerbuero Conny Hofmann / Conny Hofmann Immobilienmanagement
Saarländer Str. 17, 04179 Leipzig

Online-ID: 2n8lk5c
Referenznummer: V_L_Nä_H118_EG_3RW_7
Finde Angebote wie dieses
Hier geht es zu unserem Impressum, den Allgemeinen Geschäftsbedingungen, den Hinweisen zum Datenschutz und nutzungsbasierter Online-Werbung.