Kurzbeschreibung
Wohnbaugrundstück in Pirna-Zatzschke
Objekt
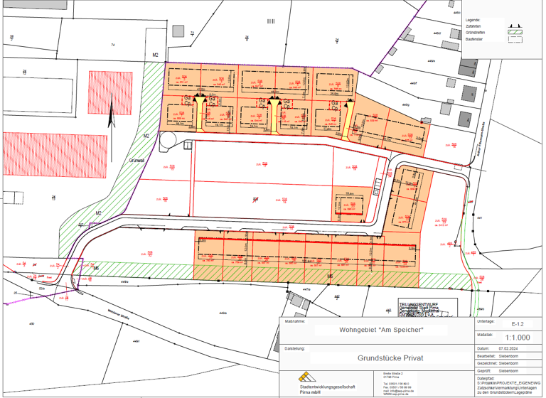
In ruhiger, grüner Lage im neuen Wohngebiet "Am Speicher" in Pirna-Zatzschke stehen 23 vollständig erschlossene Grundstücke zum Verkauf.
Die Grundstücke bieten Größen von ca. 631 m² bis ca. 1.035 m² und ermöglichen eine individuelle Bebauung. Vorwiegend ist eine 2-geschossige Satteldachbauweise vorgesehen, wobei auf einigen Flächen auch eine Bungalowbauweise möglich ist. Wer es etwas kleiner mag, kann künftig auch zwischen Wohnen im Reihenhaus oder einer Eigentumswohnung wählen. Bauträger und Projektentwickler werden dem Standort ein vielfältiges Erscheinungsbild geben.
Die Erschließung des Gebiets erfolgte bis zum Frühjahr 2025, einschließlich der notwendigen Ver- und Entsorgungsleitungen sowie einem modernen Glasfaseranschluss. Die Lage bietet eine gute Anbindung an die Umgebung und ermöglicht es, individuelle Wohnträume zu verwirklichen.
Die 3D-Visualisierung wurde erstellt von Rico Ulbricht, Dipl. Ing. (FH) Stadtplanung, Fachplaner für integrativen Stadtumbau (WBA). Alle Rechte vorbehalten. Tzschirnerplatz 10 D, 09648 Mittweida.
Merkmale
frei ab sofort
691 m² Grundstück
Bebauungsplan
voll erschlossen
- 23 vollständig erschlossene Grundstücke zwischen 640 m² und 1035 m² - Lage in Pirna-Zatzschke/Mockethal - Baugrundstücke für Einfamilienhäuser, Doppelhäuser, Mehrfamilienhäuser, Reihenhäuser - Satteldachbauweise überwiegend in 2 Geschossen, Bungalowbauweise auf einzelnen Grundstücken - Glasfasernetz vorhanden
Grundrisse
Grundrisse
1 / 1
Realisiere Dein Projekt
Bausubstanz und Energie
Möchtest du Details zum Energieverbrauch?
Zustand der ImmobilieNeubau
Preisdetails
Kaufpreis
193560 €193.560 €
280,12 €/m²
Provision für Käufer
provisionsfrei; prov.frei
Geschätzte Gesamtkosten
193.560 €1
Kaufpreis
193.560 €
1Der angezeigte Wert ist eine automatisch berechnete Schätzung von immowelt.
Lage
Pirna (01796)
Der Anbieter hat die genaue Adresse nicht freigegeben
Pirna liegt am oberen Beginn der Elbtalweitung, wo die Wesenitz und die Gottleuba in die Elbe münden. Die Stadt wird als "Tor zur Sächsischen Schweiz" bezeichnet, da von hier aus in kurzer Zeit die Sächsische Schweiz - ein beliebtes Erholungsgebiet - sowohl per Rad als auch mit der S-Bahn bequem erreichbar ist. Die Sächsische Weinstraße führt von Pirna elbabwärts über Pillnitz, Dresden und Meißen.
Verkehrstechnisch bieten die B172 & B172a direkte Verbindungen, während die A17 einen schnellen Zugang zur Dresdner Innenstadt ermöglicht. Die S-Bahn verbindet Pirna im 30-Minuten-Takt mit der Region und dem Flughafen Dresden. Zahlreiche Buslinien sorgen für Verbindungen mit dem Umland. Zudem sorgen die Sächsische Dampfschifffahrt, eine Fährverbindung und der Flugplatz für zusätzliche Mobilität.
Die Kinderbetreuung ist in 17 Kindertagestätten o.Ä. Einrichtungen gewährleistet. Des Weiteren stehen 7 Grundschulen, 2 Gymnasien & ein Berufliches Gymnasium für Gesundheit & Soziales zur Verfügung. Die Gesundheitsversorgung wird durch spezialisierte Ärzte sichergestellt, und das Klinikum Pirna steht für weitere medizinische Versorgung bereit.
Pirna bietet zahlreiche Arbeitsplätze, insbesondere im Gesundheits- & Sozialwesen, in der öffentlichen Verwaltung & im verarbeitenden Gewerbe. Einkaufsmöglichkeiten gibt es in diversen Handelsketten & spezialisierten Fachgeschäften. Zudem bietet die Stadt ein vielfältiges Kultur- & Sportangebot für abwechslungsreiche Freizeitgestaltung.
Weitere Informationen
Sonstiges
Wir bitten um Verständnis, dass wir nur vollständige Anfragen (E-Mail, Fax, Brief) mit Namen, Anschrift und Telefonnummer beantworten können.
Haftungsausschluss: Alle Angaben haben wir vom Eigentümer erhalten. Für deren Richtigkeit können wir keine Gewähr übernehmen. Einen Zwischenverkauf oder eine Zwischenvermietung behält sich der Eigentümer ausdrücklich vor. Wir sind in Vertretung der LBS Immobilien GmbH tätig.
Endlich mal mit Profis arbeiten! Das können Sie bei uns. Egal ob Verkauf, Kauf, Umbau oder Sanierung. Weitere Info's finden Sie hier: www.raumgewinn-sparkasse.de
Stichworte
Bundesland: Sachsen