

LEGEND IMMOBILIEN Ute Prey e. U.
Frau Ute Prey
+43 ···
Nr. anzeigenPreise & Kosten
Provision für Käufer
3 % zzgl. USt. inkl. MwSt.
Lage
Die angebotene Maisonette-Wohnung liegt in der charmanten Stadt Kufstein, eingebettet in die malerische Alpenlandschaft von Tirol, Österreich. Kufstein, bekannt als "Perle Tirols", besticht durch ihre reiche Geschichte und Kultur, was sich insbesondere in der imposanten Festung Kufstein widerspiegelt. Die Wohnung befindet...
Die Wohnung
Kategorie
Maisonette
Bezug
nach Vereinbarung
Wohnanlage
Energie & Heizung
Warum sehe ich diese Anzeige? – Du siehst diese Anzeige basierend auf Ihrer Navigation auf unserer Website und den Suchkriterien, die du verwendet hast.
Heizwärmebedarf (HWB)
60,50 kWh/(m²·a)
Gesamtenergieeffizienz (fGEE)
1,10
Weitere Energiedaten
Energieträger
Gas
Heizungsart
offener Kamin, Zentralheizung
Details
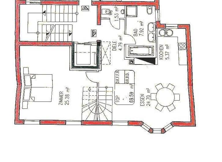
Objektbeschreibung
Diese besondere Immobilie, erbaut in den 1950er Jahren, bietet mit ihrer zentralen Lage und einem direkten Blick auf die beeindruckende Festung Kufstein nicht nur ein aufregendes Umfeld, sondern auch ein Zuhause mit immensem Potential.
Auf zwei Ebenen erstrecken sich großzügige 129 m² Wohnfläche, die viel Raum für...
Ausstattung
- Dusche
- Badewanne
- Fenster im Bad
- Einbauküche
- Offene Küche
- Zwei Öfen
- Zentralheizung
- Gasheizung
- Dachterrasse mit südwestlicher Ausrichtung
- Tiefgaragenstellplatz im Preis enthalten
- Aufzug
- Kellerabteil
Weitere Informationen
Stichworte
Süd-West-Balkon/Terrasse, Fahrradraum, Anzahl der Schlafzimmer: 2, Anzahl der Badezimmer: 1, Anzahl der separaten WCs: 1, Anzahl Balkone: 1, Bundesland: Tirol
Anbieter der Immobilie
LEGEND IMMOBILIEN Ute Prey e. U.
Wehrbachweg 21/5, 6365 KIRCHBERG IN TIROL

Online-ID: 2ll7s5e
Referenznummer: TU 25153
Finde Angebote wie dieses
Günstige Immobilienfinanzierung einfach online berechnen
Persönliches Angebot berechnenWarum sehe ich diese Werbung? – Du siehst diese Werbung basierend auf Deiner Navigation auf unserer Website und der von Dir verwendeten Suchkriterien.
Diese Werbung wird bezahlt von durchblicker
Werbung melden
Hier geht es zu unserem Impressum, den Allgemeinen Geschäftsbedingungen, den Hinweisen zum Datenschutz und nutzungsbasierter Online-Werbung.