
RPP Immobilien GmbH
Herr Robert Pauly
089 ···
Nr. anzeigenPreise & Kosten
Provision für Käufer
3,57% inkl. gesetzl. MwSt.
Wir weisen darauf hin, dass wir einen provisionspflichtigen Maklerauftrag mit dem Verkäufer in gleicher Höhe geschlossen haben.
Lage
Diese attraktiven Baugrundstücke befinden sich in einer ruhigen Sackgasse in Unterschleißheim, Ortsteil Lohhof. Die Stadt Unterschleißheim im Landkreis München bietet eine perfekte Kombination aus urbanem Leben und ländlichem Charme. Die umliegende Natur lädt zu erholsamen Spaziergängen und Radtouren ein, während das...
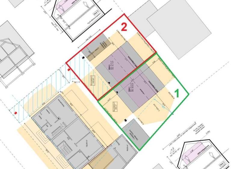
Das Grundstück
Details
Objektbeschreibung
Zum Verkauf stehen zwei real geteilte Baugrundstücke mit Grundstücksgrößen von ca. 172 m² und ca. 204 m². Auf den jeweiligen Flächen können Doppelhaushälften mit einer Grundfläche von ca. 5,77 m x 8,94 m bzw. 6,84 m x 8,94 m realisiert werden.
Die Grundstücke befinden sich am Ende einer Sackgasse in einer ruhigen...
Ausstattung
Grundstück DHH 1 mit 204 m² Grundstücksfläche
anteilige Grundstückskosten 377.500 €
anteilige Abbruchkosten 25.000 €
anteilige Vermessungskosten 2.500 €
anteilige Architektenkosten 5.000 €
Gesamtkaufpreis 410.000 €
?
?Grundstück DHH 2 mit 172 m² Grundstücksfläche
anteilige Grundstückskosten 297.500...
Weitere Informationen
Sonstiges
Die Bebauung richtet sich nach dem B-Plan 89 C8 - Alter Lohhofer Ortsteil - eine Grundlagenermittlung zur Bebauung liegt vor.
Stichworte
GRZ: 0.3, GFZ: 0.4, Bundesland: Bayern
Anbieter der Immobilie
RPP Immobilien GmbH
Raiffeisenstr. 1 B, 85716 Unterschleißheim
Online-ID: 2mbbk5k
Referenznummer: RP-1175_1
Finde Angebote wie dieses
Hier geht es zu unserem Impressum, den Allgemeinen Geschäftsbedingungen, den Hinweisen zum Datenschutz und nutzungsbasierter Online-Werbung.