Version: 8.24.0Navigation überspringen
270.000 €
2 Zimmer  •  47,9 m²  •  4. Geschoss
Immowelt logo

Wohnung zum Kauf
270000 €
5.643 €/m²
2 Zimmer  •  47,9 m²  •  4. Geschoss

Mit Blick ins Grüne: Praktische 2-Raum-Whg. mit sonnigem Süd-Balkon, Echtholzparkett, FBH u.v.m

BEZUGSFERTIG | Dieskaustraße 74 in Kleinzschocher
Neubau-Eckresidenz für Jedermann!

* Besuchen Sie uns gern zu unserem Infotag am 27. und 28. September in der Zeit von 13 bis 16 Uhr im Neubau der Dieskaustr. 74 in Kleinzschocher. Hier erfahren Sie persönlich und vor Ort alles Wissenswerte über die attraktiven Eigentumswohnungen und können diese natürlich auch mit unseren Qualitätsmaklern besichtigen. Wir freuen uns auf Sie!

In aufstrebender Lage werden sowohl Eigennutzer als auch Kapitalanleger fündig. Die prächtige Eckeinfassung fügt sich architektonisch charmant in das Straßenbild ein und verbindet anmutige Gründerzeitbauten mit moderner Baugestaltung.

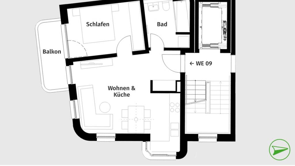
Die hier angebotene 2-Raum-Wohnung im 4. Obergeschoss verteilt sich auf ca. 47 Quadratmetern Wohlfühlfläche. Über den Garderobenbereich gelangen Sie in den großen, halboffenen Wohn-Koch-Ess-Bereich, welcher Zugang zum Süd-Balkon mit Blick ins Grüne gewährt. Das innenliegende Design-Bad ist mit einer ebenerdigen Dusche ausgestattet. Auch der Waschmaschinenanschluss hat hier seinen Platz gefunden. Das hochwertige Parkett bleibt, dank effizienter Fußbodenheizung, stets auf Wunschtemperatur.

Ein Gymnasium befindet sich in unmittelbarer Nachbarschaft. Auch die Stadt Leipzig erkannte das urbane Potenzial - kontinuierlich voranschreitende Baumaßnahmen werden die Dieskaustraße in den kommenden Jahren zu einem freundlicheren, ruhigeren und vor allem grüneren Ort entwickeln.

Der Neubau umfasst insgesamt 10 Wohneinheiten mit Wohnungsgrößen zwischen 47 und 111 Quadratmetern, verteilt auf 2 bis 4 Zimmern. Das Objekt ist vollständig unterkellert, wobei jede Wohneinheit über ein eigenes Kellerabteil verfügt. Fahrradabstellplätze im Erdgeschoss werden mit E-Ladeoptionen versehen.

Kapitalanleger können die degressive AfA in Anspruch nehmen (gilt bei Neubau mit Bauanzeige ab 01.10.2023). So können im 1. Jahr 5 % der Investitionskosten steuerlich geltend gemacht werden. In den Folgejahren können jeweils 5 % des verbliebenen Restwertes steuerlich berücksichtigt werden.

Denken Sie schon länger über den Kauf einer attraktiven Neubau-Immobilie nach? Zögern Sie nicht, sich bei uns zu melden - wir freuen uns darauf, Sie persönlich zu beraten und Ihnen bei Ihrem Immobilienvorhaben zur Seite zu stehen!
HOTLINE: (0172) 34 33 229

Vorläufige Energieausweisdaten:
Art: Bedarfsausweis
Endenergiebedarf: 18 kWh/(m²a)
Wesentlicher Energieträger: Strom netzbezogen
Baujahr laut Energieausweis: 2024
Energieeffizienzklasse: A+
Energieausweis gültig bis: 28.01.2035

Maklerprovision:
Hierbei handelt es sich um ein provisionsfreies Angebot.

Alle Einheiten des Objekts und den aktuellen Reservierungsstand finden Sie auf unserer Webseite: dima-immobilien.de

Merkmale

  • Bezug: bezugsfertig
  • 4. Geschoss
  • Personenaufzug
  • Kelleranteil
  • Balkon
  • Bad mit Dusche
  • Bodenbelag: Parkett
| Neubau im aufstrebenden Kleinzschocher
| bezugsfertig
| moderne Ausstattung
| sonniger Süd-Balkon
| Echholzparkett
| Design-Bäder
| Fußbodenheizung
| elektrische Außenverschattung
| Aufzug
| Fahrradraum mit E-Anschlüssen
| Kellerabteil
... und vieles mehr.

Realisiere Dein Projekt

Bausubstanz und Energie

Energieausweis

A+
  • Baujahr2024
  • HeizungsartFußbodenheizung
Immowelt logo

Preisdetails

Kaufpreis
270000 €
5.642,63 €/m²
Provision für Käufer
Bitte beachte, das Angebot kann bei Vertragsabschluss die Zahlung einer Provision beinhalten. Weitere Informationen erhältst Du vom Anbieter.
Geschätzte Gesamtkosten
299.889 €1
Kaufpreis
270.000 €
Notarkosten (1,5%)
4.050 €
Grunderwerbsteuer (5,5%)
14.850 €
Provision für Käufer (3,57%)
9.639 €
Grundbucheintrag (0,5%)
1.350 €
1Der angezeigte Wert ist eine automatisch berechnete Schätzung von immowelt.
2Bei den Angaben handelt es sich um ortsübliche Werte. Individuelle Kosten können abweichen.

Lage

address-icon
Dieskaustraße 74KleinzschocherLeipzig (04229)
Kleinzschocher liegt im Südwesten von Leipzig und ist eine beliebte, naturnahe Wohngegend. Im Mittelpunkt des Stadtteils liegt der Volkspark, der mit seinem großen Wiesen- und Feldareal zum Spazieren oder Verweilen einlädt. Die Weiße Elster fließt im Westen des Stadtteils, wo auch direkt der Stadtteil Schleußig angrenzt.

Vor Jahren wurde der Leipziger Westen inklusive Kleinzschocher im Rahmen des Förderprogrammes URBAN II umgestaltet und verbessert. Die Gebäudelandschaft ist hier recht vielfältig. Neben schönen Gründerzeitbauten gibt es einige Neubauten, die in grau wie bunt das Landschaftsbild prägen. Als besonders sehenswert in diesem Viertel gilt die Taborkirche, das Sportbad an der Elster oder auch die renovierte Leonhardsche Villa.

Aufgrund der sehr gut ausgebauten Infrastruktur ist man in wenigen Minuten mit verschiedensten Verkehrsmitteln am gewünschten Ziel. Außerdem befinden sich natürlich Geschäfte sowie öffentliche und medizinische Einrichtungen im unmittelbaren Umfeld.

Durch die derzeitige Erneuerung und Umgestaltung der Dieskaustraße, die als Kleinzschocher-Magistrale gilt, wird der Stadtteil merklich aufgewertet. Als Bestandteil der Mobilitätsstrategie 2030 der Stadt Leipzig zur Stärkung umweltfreundlicher Verkehrsarten, kann man sich in vielerlei Hinsichten auf mehr Grün, Ruhe und Barrierefreiheit freuen.

- Nähe zum Zentrum: ca. 5,5 km
- ÖPNV: Straßenbahnlinien 1, 2 und 3, verschiedene Buslinien
- Kitas und Schulen: u. a. 6 Kindertagesstätten, 1 Grundschule und 1 Gymnasium

Weitere Informationen

Sonstiges Erfahren. Ehrlich. Echt.

Dima Immobilien präsentiert Ihnen seit 1995 mit viel Leidenschaft die schönsten Immobilien Leipzigs - zum Kauf und zur Miete.

Ihnen steht ein erfahrenes Team beratend zur Seite und begleitet Sie erfolgreich auf Ihrem Weg zur Traumimmobilie. Durch unser sehr gutes und umfangreiches Netzwerk aus Investoren, Architekten, Gutachtern, Notaren und Banken haben wir die Möglichkeit, Sie individuell, kompetent und vor allem ehrlich zu beraten.

Lassen Sie sich von unserer Begeisterung für wunderschöne Immobilien anstecken und inspirieren. Rufen Sie uns an oder besuchen Sie uns in unserem Büro in der Lionstraße 8, 04177 Leipzig (Montag bis Freitag von 09 bis 17 Uhr).

Folgen Sie uns und bleiben Sie stets up to date:
Facebook: www.facebook.com/dima.immobilien
Instagram: www.instagram.com/dima_immobilien
YouTube: https://youtu.be/swxwaFs0EyU Stichworte Süd-Balkon/Terrasse, Anzahl der Schlafzimmer: 1, Anzahl der Badezimmer: 1, Anzahl Balkone: 1, 6 Etagen

Weitere Services

Lust auf eine Besichtigung?
Eine Frage zur Immobilie?
Nachricht hinzufügen
Mit der Nutzung der oben angegebenen Telefonnummer oder durch Klicken auf „Kontaktieren“ akzeptierst Du die Allgemeinen Nutzungsbedingungen, denen Du jederzeit widersprechen kannst. Weitere Informationen zum Datenschutz

Über den Anbieter

Dima Immobilien
Dima ImmobilienMaklerbüro
Lionstraße 8, 04177 Leipzig
partner badge
10 Jahre Partnerschaft
Herr Peter ZamarskiDein Kontakt
Online-ID: 2hvta5v
Referenznummer: vk-die74-we09
Dima Immobilien
Dima Immobilien
Bewertung: 4,8 von 5 Sternen
Nachricht hinzufügen
Mit der Nutzung der oben angegebenen Telefonnummer oder durch Klicken auf „Kontaktieren“ akzeptierst Du die Allgemeinen Nutzungsbedingungen, denen Du jederzeit widersprechen kannst. Weitere Informationen zum Datenschutz
Wie zufrieden bist du mit dieser Seite (nicht mit der Immobilie selbst)?