


1 / 13



1 / 13
Haus zum Kauf - Erstbezug690000 €690.000 €4.867 €/m²4 Zimmer • 120,5 m² • 242,8 m² Grundstück
690000 €690.000 €
4.867 €/m²
4 Zimmer • 120,5 m² • 242,8 m² Grundstück
Moderne Gartenvilla "Magnolia" mit großen Eigengrund und luxuriösen Flair!
Willkommen in Ihrem Traumhaus in der Villa Magnolia!
Moderne Gartenvillen mit großen Eigengrund und luxuriösem Flair!
Tauchen Sie ein in das Wohlgefühl Ihres neuen Zuhauses. Unsere neu errichteten Gartenvillen vereinen ansprechende Architektur mit einem wohnlichen Ambiente, das Ihnen den Alltag verzaubern wird. Diese stilvollen Villen bieten den perfekten Rückzugsort für Ihre Familie und Freunde und laden zu unvergesslichen gemeinsamen Momenten ein.
Der Wohn-Essbereich mit großzügigen 40 m² und die offene Wohnküche schaffen eine einladende Atmosphäre, in der kulinarische Erlebnisse zum Vergnügen werden. Hier finden Sie sowohl Raum für gesellige Abende als auch Entspannung nach einem langen Tag.
Ihre privaten Rückzugsorte umfassen drei perfekt geplante Zimmer à 14 m², die reichlich Platz für Stauraum bieten. Ein Zimmer ist als Master Bedroom mit einem integrierten Bad und einem Schrankraum ausgestattet und gewährleistet Privatsphäre und Komfort.
Zusätzlich steht Ihnen ein Wirtschaftsraum zur Verfügung, der flexibel als kleines Büro oder zusätzlicher Stauraum genutzt werden kann. Ein separater Abstellraum bietet Ihnen zusätzlichen Platz und mehr Flexibilität.
Genießen Sie sonnige Tage auf Ihrer wunderschönen Terrasse und in Ihrem Garten, wo Sie ein erfrischender Pool erwartet. Das vom Garten aus zugänglichem Gartenhaus kann zudem als Gartensauna eingerichtet werden.
Abgerundet wird Ihr neues Eigenheim durch einen Autostellplatz mit moderner E-Ladestation, die für umweltfreundliche Mobilität sorgt. Diese Gartenvillen repräsentieren nicht nur einen Wohntraum, sondern auch ein neues Lebensgefühl. Freuen Sie sich auf Ihr wunderschönes Zuhause, das Sie herzlich empfängt und zum Bleiben einlädt.
Die Facts auf einen Blick
* Ansprechende wohnliche Architektur
* Großzügige Planung, Platz für die ganze Familie und Freunde
* Wohn- Essbereich mit rund 40 m2
* Offene Wohnküche
* Gut geplante 3 Zimmer mit jeweils 14 m2 und ausreichend Platz für Stauraum
* Davon ein Master Bedroom mit integriertem Bad und Schrankraum
* Gästezimmer, Büro oder Wirtschaftsraum
* Große Terrasse mit Garten
* Pool optional
* Gartenhaus für Stauraum oder Gartensauna
* Autostellplatz mit E-Ladestation
* Großer Keller
Ausstattungs-Highlights
* Kühlung über den Fußboden
* Sommernachtslüftung für energiesparendes kühlen
* Zusätzliche Klimaanlage auf Wunsch
* Einzelraumregelung für Heizung und Kühlung
* Hochwertige Markenküche mit allen Geräten
* Multimediapaket
* Raffstores mit Windwächter
* Italienische Designerlampen im Außenbereich von Plattek
* Pool aufg Wunsch
* Sauna auf Wunsch
* Außendusche
* Luft Wasser Wärmepumpe mit Warmwasserspeicher
* Photovoltaikanlage
* E-Ladestation
* Niedrigenergiehaus
Gestaltungsmöglichkeiten
Wir bieten eine Vielzahl exklusiver Gestaltungsmöglichkeiten für Ihr neues Zuhause, sorgfältig entworfen, um Ihren ästhetischen und qualitativen Erwartungen gerecht zu werden. Ob Classic, Modern, Elegance, Alpine, Scandi, Chic, ganz nach Ihren Wunsch. Viele Ausstattungshighlights lassen keine Wünsche offen wie z.B. optimale und moderne Energie Versorgung, Hochwertige Geräte, Wellnessbereiche, Multimediapakete und vieles mehr. Die Immobilie wird belagsfertig übergeben. Bei Wunsch auch schlüsselfertig.
Ihr Niedrigenergiehaus, Nachhaltig genießen und im Einklang mit der Natur
Das Haus überzeugt nicht nur durch seine exklusive Ausstattung, sondern auch durch seine Bauweise als Niedrigenergiehaus. Es verfügt über eine energieeffiziente Heizungsanlage, die unabhängig von Gas, Fernwärme oder fossilen Brennstoffen arbeitet. Die Kombination aus Luftwärmepumpe und Photovoltaikanlage ergänzt sich optimal: Die Photovoltaikanlage liefert nachhaltigen Strom für die Wärmepumpe, wodurch Kosteneinsparungen erzielt werden können.
Ihre Vorteile
Sicherheit
* Steigerung des Wertes der Immobilie
* Guter Wiederverkaufswert da nach neuesten Standards errichtet
* Unabhängigkeit von fossilen Rohstoffen
* Umweltschonend CO2 neutral
* Optimales Heizsystem für Klima und Umweltschutz
* unbegrenzt vorhandene Energie Quelle, Versorgungssicherheit
* konstant und zuverlässig über das gesamte Jahr verfügbar
Wohnkosten senken/Kostensenkung für den Wartungsbedarf
* geringe Heizkosten
* unabhängig von Preisschwankungen fossiler Rohstoffe
* geringe Betriebskosten
Flächenaufstellung Gartenvilla
Grundstücksfläche: 242,54 m²
* Nutzfläche Gesamt: 125,83 m²
* Freifläche Gesamt: 167,24 m²
* Wohnfläche Gesamt: 120,51 m²
* Wohnfläche Erdgeschoß: 59,08 m²
* Wohnfläche Obergeschoß: 61,43 m²
* Garten / Freifläche: 167,24 m²
* Terrasse: 14,4 m²
* Pool: 10,8 m²
* PKW Stellplatz und Zufahrt: 27 m²
Kaufpreis je Doppelhaushälfte
EUR 690.000,- inkl. gesetzliche Mehrwertsteuer
Lage
Willkommen in der Donaustadt, wo dörflicher Charakter, Natur und urbane Infrastruktur zusammentrifft. Eine Vielzahl an Nahversorger, Shopping, Sport, Kindergarten und & Schule, Ärzte und öffentliche Anbindung bieten alle Möglichkeiten. Zur U-Bahn/ U2, gelangt man in wenigen Minuten mit dem Bus 99A, 99B. Der Bus ist in ein paar Gehminuten erreichbar. Die Autoschnellstraße A23/S2 sind direkt und unkompliziert in 15 Min. mit dem Auto zu erreichen.
_Aus rechtlichen Gründen und aufgrund der großen Nachfragen bitten wir um Verständnis, dass wir nur Anfragen per Mail beantworten, wenn Sie uns Ihren vollständigen Namen samt Mailadresse und Mobilnummer bekanntgeben._
Für die Vereinbarung eines Termins kontaktieren Sie Frau Vassilena Valkova telefonisch unter +43 650 58 70 011 oder per E-Mail: vv@novel-real.at.
Alle Angaben basieren alleinig auf Informationen, die uns von unserem Auftraggeber übermittelt wurden. Trotz aller Sorgfalt können wir für die Richtigkeit, Vollständigkeit und Aktualität dieser Angaben keine Gewähr übernehmen. Jegliche Weitergabe der übermittelten Daten an Dritte ist nicht gestattet. Der Maklervertrag kommt durch schriftliche Vereinbarung oder Inanspruchnahme unserer Maklertätigkeit zustande. Der Makler kann als Doppelmakler tätig werden. Sollte das von uns nachgewiesene Objekt bereits bekannt sein, teilen sie uns dies bitte unverzüglich mit.Die Maklergebühr ist ausschließlich bei Zustandekommen eines gültigen Rechtsgeschäfts fällig und vom Mieter/Käufer an Novel Real Immobilien GmbH zu zahlen. Es wird ausdrücklich auf die Nebenkostenübersicht hingewiesen. Bei den Visualisierungen und Abbildungen der Immobilie (insbesondere von Inneneinrichtungen) kann es sich um Symbolfotos bzw. fototechnisch optimierte Fotos handeln. Hiermit weisen wir auf das Bestehen eines familiären und/oder wirtschaftlichen Naheverhältnisses zum Vermieter/Verkäufer hin.
Wir weisen darauf hin, dass zwischen dem Vermittler und dem zu vermittelnden Dritten ein familiäres oder wirtschaftliches Naheverhältnis besteht.
Der Vermittler ist als Doppelmakler tätig.
Infrastruktur / Entfernungen
Gesundheit
Arzt <2.000m
Apotheke <2.000m
Klinik <2.500m
Krankenhaus <5.500m
Kinder & Schulen
Schule <1.500m
Kindergarten <2.000m
Universität <2.000m
Höhere Schule <2.500m
Nahversorgung
Supermarkt <2.000m
Bäckerei <2.000m
Einkaufszentrum <3.000m
Sonstige
Geldautomat <3.500m
Bank <2.000m
Post <2.000m
Polizei <2.500m
Verkehr
Bus <500m
U-Bahn <2.000m
Bahnhof <2.000m
Straßenbahn <2.500m
Autobahnanschluss <5.000m
Angaben Entfernung Luftlinie / Quelle: OpenStreetMap
Moderne Gartenvillen mit großen Eigengrund und luxuriösem Flair!
Tauchen Sie ein in das Wohlgefühl Ihres neuen Zuhauses. Unsere neu errichteten Gartenvillen vereinen ansprechende Architektur mit einem wohnlichen Ambiente, das Ihnen den Alltag verzaubern wird. Diese stilvollen Villen bieten den perfekten Rückzugsort für Ihre Familie und Freunde und laden zu unvergesslichen gemeinsamen Momenten ein.
Der Wohn-Essbereich mit großzügigen 40 m² und die offene Wohnküche schaffen eine einladende Atmosphäre, in der kulinarische Erlebnisse zum Vergnügen werden. Hier finden Sie sowohl Raum für gesellige Abende als auch Entspannung nach einem langen Tag.
Ihre privaten Rückzugsorte umfassen drei perfekt geplante Zimmer à 14 m², die reichlich Platz für Stauraum bieten. Ein Zimmer ist als Master Bedroom mit einem integrierten Bad und einem Schrankraum ausgestattet und gewährleistet Privatsphäre und Komfort.
Zusätzlich steht Ihnen ein Wirtschaftsraum zur Verfügung, der flexibel als kleines Büro oder zusätzlicher Stauraum genutzt werden kann. Ein separater Abstellraum bietet Ihnen zusätzlichen Platz und mehr Flexibilität.
Genießen Sie sonnige Tage auf Ihrer wunderschönen Terrasse und in Ihrem Garten, wo Sie ein erfrischender Pool erwartet. Das vom Garten aus zugänglichem Gartenhaus kann zudem als Gartensauna eingerichtet werden.
Abgerundet wird Ihr neues Eigenheim durch einen Autostellplatz mit moderner E-Ladestation, die für umweltfreundliche Mobilität sorgt. Diese Gartenvillen repräsentieren nicht nur einen Wohntraum, sondern auch ein neues Lebensgefühl. Freuen Sie sich auf Ihr wunderschönes Zuhause, das Sie herzlich empfängt und zum Bleiben einlädt.
Die Facts auf einen Blick
* Ansprechende wohnliche Architektur
* Großzügige Planung, Platz für die ganze Familie und Freunde
* Wohn- Essbereich mit rund 40 m2
* Offene Wohnküche
* Gut geplante 3 Zimmer mit jeweils 14 m2 und ausreichend Platz für Stauraum
* Davon ein Master Bedroom mit integriertem Bad und Schrankraum
* Gästezimmer, Büro oder Wirtschaftsraum
* Große Terrasse mit Garten
* Pool optional
* Gartenhaus für Stauraum oder Gartensauna
* Autostellplatz mit E-Ladestation
* Großer Keller
Ausstattungs-Highlights
* Kühlung über den Fußboden
* Sommernachtslüftung für energiesparendes kühlen
* Zusätzliche Klimaanlage auf Wunsch
* Einzelraumregelung für Heizung und Kühlung
* Hochwertige Markenküche mit allen Geräten
* Multimediapaket
* Raffstores mit Windwächter
* Italienische Designerlampen im Außenbereich von Plattek
* Pool aufg Wunsch
* Sauna auf Wunsch
* Außendusche
* Luft Wasser Wärmepumpe mit Warmwasserspeicher
* Photovoltaikanlage
* E-Ladestation
* Niedrigenergiehaus
Gestaltungsmöglichkeiten
Wir bieten eine Vielzahl exklusiver Gestaltungsmöglichkeiten für Ihr neues Zuhause, sorgfältig entworfen, um Ihren ästhetischen und qualitativen Erwartungen gerecht zu werden. Ob Classic, Modern, Elegance, Alpine, Scandi, Chic, ganz nach Ihren Wunsch. Viele Ausstattungshighlights lassen keine Wünsche offen wie z.B. optimale und moderne Energie Versorgung, Hochwertige Geräte, Wellnessbereiche, Multimediapakete und vieles mehr. Die Immobilie wird belagsfertig übergeben. Bei Wunsch auch schlüsselfertig.
Ihr Niedrigenergiehaus, Nachhaltig genießen und im Einklang mit der Natur
Das Haus überzeugt nicht nur durch seine exklusive Ausstattung, sondern auch durch seine Bauweise als Niedrigenergiehaus. Es verfügt über eine energieeffiziente Heizungsanlage, die unabhängig von Gas, Fernwärme oder fossilen Brennstoffen arbeitet. Die Kombination aus Luftwärmepumpe und Photovoltaikanlage ergänzt sich optimal: Die Photovoltaikanlage liefert nachhaltigen Strom für die Wärmepumpe, wodurch Kosteneinsparungen erzielt werden können.
Ihre Vorteile
Sicherheit
* Steigerung des Wertes der Immobilie
* Guter Wiederverkaufswert da nach neuesten Standards errichtet
* Unabhängigkeit von fossilen Rohstoffen
* Umweltschonend CO2 neutral
* Optimales Heizsystem für Klima und Umweltschutz
* unbegrenzt vorhandene Energie Quelle, Versorgungssicherheit
* konstant und zuverlässig über das gesamte Jahr verfügbar
Wohnkosten senken/Kostensenkung für den Wartungsbedarf
* geringe Heizkosten
* unabhängig von Preisschwankungen fossiler Rohstoffe
* geringe Betriebskosten
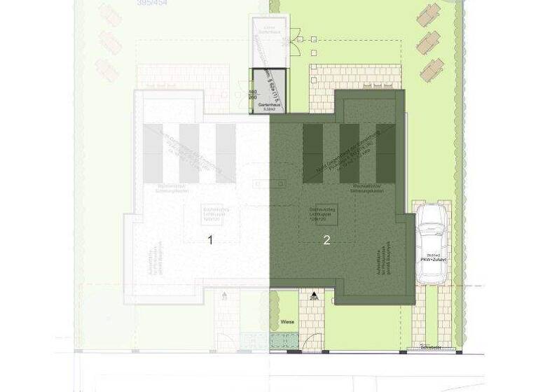
Flächenaufstellung Gartenvilla
Grundstücksfläche: 242,54 m²
* Nutzfläche Gesamt: 125,83 m²
* Freifläche Gesamt: 167,24 m²
* Wohnfläche Gesamt: 120,51 m²
* Wohnfläche Erdgeschoß: 59,08 m²
* Wohnfläche Obergeschoß: 61,43 m²
* Garten / Freifläche: 167,24 m²
* Terrasse: 14,4 m²
* Pool: 10,8 m²
* PKW Stellplatz und Zufahrt: 27 m²
Kaufpreis je Doppelhaushälfte
EUR 690.000,- inkl. gesetzliche Mehrwertsteuer
Lage
Willkommen in der Donaustadt, wo dörflicher Charakter, Natur und urbane Infrastruktur zusammentrifft. Eine Vielzahl an Nahversorger, Shopping, Sport, Kindergarten und & Schule, Ärzte und öffentliche Anbindung bieten alle Möglichkeiten. Zur U-Bahn/ U2, gelangt man in wenigen Minuten mit dem Bus 99A, 99B. Der Bus ist in ein paar Gehminuten erreichbar. Die Autoschnellstraße A23/S2 sind direkt und unkompliziert in 15 Min. mit dem Auto zu erreichen.
_Aus rechtlichen Gründen und aufgrund der großen Nachfragen bitten wir um Verständnis, dass wir nur Anfragen per Mail beantworten, wenn Sie uns Ihren vollständigen Namen samt Mailadresse und Mobilnummer bekanntgeben._
Für die Vereinbarung eines Termins kontaktieren Sie Frau Vassilena Valkova telefonisch unter +43 650 58 70 011 oder per E-Mail: vv@novel-real.at.
Alle Angaben basieren alleinig auf Informationen, die uns von unserem Auftraggeber übermittelt wurden. Trotz aller Sorgfalt können wir für die Richtigkeit, Vollständigkeit und Aktualität dieser Angaben keine Gewähr übernehmen. Jegliche Weitergabe der übermittelten Daten an Dritte ist nicht gestattet. Der Maklervertrag kommt durch schriftliche Vereinbarung oder Inanspruchnahme unserer Maklertätigkeit zustande. Der Makler kann als Doppelmakler tätig werden. Sollte das von uns nachgewiesene Objekt bereits bekannt sein, teilen sie uns dies bitte unverzüglich mit.Die Maklergebühr ist ausschließlich bei Zustandekommen eines gültigen Rechtsgeschäfts fällig und vom Mieter/Käufer an Novel Real Immobilien GmbH zu zahlen. Es wird ausdrücklich auf die Nebenkostenübersicht hingewiesen. Bei den Visualisierungen und Abbildungen der Immobilie (insbesondere von Inneneinrichtungen) kann es sich um Symbolfotos bzw. fototechnisch optimierte Fotos handeln. Hiermit weisen wir auf das Bestehen eines familiären und/oder wirtschaftlichen Naheverhältnisses zum Vermieter/Verkäufer hin.
Wir weisen darauf hin, dass zwischen dem Vermittler und dem zu vermittelnden Dritten ein familiäres oder wirtschaftliches Naheverhältnis besteht.
Der Vermittler ist als Doppelmakler tätig.
Infrastruktur / Entfernungen
Gesundheit
Arzt <2.000m
Apotheke <2.000m
Klinik <2.500m
Krankenhaus <5.500m
Kinder & Schulen
Schule <1.500m
Kindergarten <2.000m
Universität <2.000m
Höhere Schule <2.500m
Nahversorgung
Supermarkt <2.000m
Bäckerei <2.000m
Einkaufszentrum <3.000m
Sonstige
Geldautomat <3.500m
Bank <2.000m
Post <2.000m
Polizei <2.500m
Verkehr
Bus <500m
U-Bahn <2.000m
Bahnhof <2.000m
Straßenbahn <2.500m
Autobahnanschluss <5.000m
Angaben Entfernung Luftlinie / Quelle: OpenStreetMap
Merkmale
- Bezug: Q1 2027
- 242,8 m² Grundstück
- Außen-Stellplatz
- Gäste-WC
- Terrasse
- Badezimmer: Badewanne, Bad mit Dusche, Bad mit Fenster
- voll klimatisiert
- Bodenbelag: Parkett
Grundrisse
Grundrisse
1 / 4
Realisiere Dein Projekt
Bausubstanz und Energie
Heizwärmebedarf (HWB)
B
Gesamtenergieeffizienz (fGEE)
A+
- Zustand der ImmobilieNeubau, Erstbezug
- HaustypNiedrigenergiehaus
- HeizungsartFußbodenheizung
- EnergieträgerLuft-/Wasser-Wärmepumpe
Preisdetails
Kaufpreis
690000 €690.000 €
4.867,38 €/m²
Provision für Käufer
3% des Kaufpreises zzgl. 20% USt.
Weitere Preisinformationen
1 Stellplatz
Lage

Wien (1220)
Willkommen in der Donaustadt, wo dörflicher Charakter, Natur und urbane Infrastruktur zusammentrifft. Eine Vielzahl an Nahversorgern, Shopping, Sport, Kindergärten und & Schulen, Ärzte und öffentliche Anbindung bieten alle Möglichkeiten. Zur U -Bahn/ U2, gelangt man in wenigen Minuten mit dem Bus 99A, 99B. Der Bus ist in ein paar Gehminuten erreichbar. Die Autoschnellstraße A23/S2 sind direkt und unkompliziert in 15 Min. mit dem Auto zu erreichen.
Weitere Informationen
Stichworte
Nutzfläche: 125,83 m², Anzahl der Badezimmer: 2, Anzahl der separaten WCs: 2, Anzahl Terrassen: 1, Balkon-Terrassen-Fläche: 14,40 m², Gartenfläche: 167,24 m², Kellerfläche: 59,00 m², Bundesland: Wien
Weitere Services
Lust auf eine Besichtigung?
Eine Frage zur Immobilie?
Über den Anbieter
Novel Real Immobilien GmbHMaklerbüro
Dorotheergasse 6-8/8-9, 1010 Wien
Partnerschaft
Frau Vassilena ValkovaDein Kontakt
Online-ID: 2n8445k
Referenznummer: OBGC2024082914034682761afe2bfac

Novel Real Immobilien GmbH
Wie zufrieden bist du mit dieser Seite (nicht mit der Immobilie selbst)?