Version: 8.25.1Navigation überspringen
269.800 €
2,5 Zimmer  •  58,9 m²  •  1. Geschoss
Immowelt logo

Wohnung zum Kauf • provisionsfrei
269800 €
4.580 €/m²
2,5 Zimmer  •  58,9 m²  •  1. Geschoss

Barrierefreie 2,5-Zimmer-Wohnung, Aufzug, Balkon, inkl. Stellplatz u Schuppen

Objektbeschreibung Willkommen in Ihrem neuen Zuhause. Diese barrierefreie 2,5-Zimmer-Wohnung im 1. OG des Neubauprojekts Annabelle vereint moderne Architektur, hochwertige Ausstattung und ein nachhaltiges Energiekonzept. In einem eleganten, dreigeschossigen Mehrfamilienhaus, eingebettet in eine ruhige Villengegend nahe Annatal, profitieren Sie von großzügigen Wohnflächen, einer durchdachten Raumaufteilung und einem großen Balkon. Das Gebäude wird unter Berücksichtigung neuester Bau- und Energietechnologien errichtet und erfüllt Niedrigenergiestandard A. Dies bedeutet für Sie nicht nur geringe Energiekosten, sondern auch ein besonders angenehmes Raumklima. Die Fassadengestaltung ist eine morderne Kombination aus kräftigen Farben und Teilverklinkerung, die dem Haus ein ansprechendes und stilvolles Erscheinungsbild verleihen. Gemäß unserer Tradition wird auch Haus Annabelle eine sehr individuelle Fassadengestaltung in Kombination aus Mosaik und Malerei erhalten.
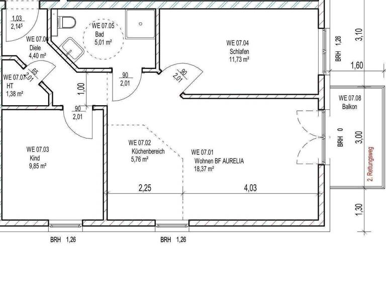
Raumaufteilung Die Wohnung besticht durch ihre durchdachte Raumaufteilung. Der lichtdurchflutete Wohnraum mit offener Küche ist großzügig und schafft eine einladende Atmosphäre. Der Balkon bietet Ihnen die Möglichkeit entspannt draußen zu essen oder den Tag zu genießen.
Das Badezimmer ist mit hochwertigen Fliesen ausgestattet. Die bodentiefe Dusche und die moderne Ausstattung sorgen für ein stilvolles Ambiente.

Merkmale

  • Bezug: 2027
  • 1. Geschoss
  • Haustiere erlaubt
  • offene Küche
  • Personenaufzug
  • Außen-Stellplatz
  • Balkon
  • Bad mit Dusche

Grundrisse

Grundrisse
1 / 1

Realisiere Dein Projekt

Bausubstanz und Energie

Energieausweis

A+
  • Baujahr2026
  • Zustand der ImmobilieNeubau
  • HeizungsartFußbodenheizung
  • EnergieträgerElektro, Luft-/Wasser-Wärmepumpe
Immowelt logo

Preisdetails

Kaufpreis
269800 €
4.579,87 €/m²
Hausgeld
178 €
Provision für Käufer
provisionsfrei
Geschätzte Gesamtkosten
292.733 €1
Kaufpreis
269.800 €
Notarkosten (1,5%)
4.047 €
Grunderwerbsteuer (6,5%)
17.537 €
Grundbucheintrag (0,5%)
1.349 €
1Der angezeigte Wert ist eine automatisch berechnete Schätzung von immowelt.
2Bei den Angaben handelt es sich um ortsübliche Werte. Individuelle Kosten können abweichen.

Lage

address-icon
Ernst-Thälmann-Straße 42Strausberg (15344)
Strausberg, auch als Pforte zum Oderbruch; bekannt, bietet Ihnen einen atrraktiven Mix aus naturnahem Wohnen und urbaner Anbindung. Das Objekt liegt in einer begehrten Villengegend, die von viel Grün und einer sehr ruhigen Atmosphäre geprägt ist. Direkt vor der Tür eröffnen sich zahlreiche Freizeitmöglchkeiten und die Nachbarschaft bietet ein hohes Maß an Lebensqualität.
Die Nähe zum Annatal sorgt für einen zusätzlichen Erholungsfaktor. Zahlreiche Seen laden zum Baden ein. Wanderwege warten darauf, von Ihnen erkundet zu werden. Ruhe und Erholung sind also garantiert. Strausberg selbst bietet eine sehr gute Infrastruktur mit Einkaufsmöglichkeiten, mehreren Schulen und Kindergärten (600 m bis 1,5 km entfernt). Verschiedene Ärzte und weitere wichtige Einrichtungen garantieren für eine umfangreiche Versorgung auf allen Ebenen. Ärzte sind gleich nebenan - nur 5 Minuten Fußweg. Zudem sind Sie von hier aus in ca. 30 Minuten in Berlin, per Auto oder S-Bahn. Die Straßenbahnstation Landhausstraße ist nur 10 Min. Fußweg entfernt. Eine Bushaltestelle ist nur 70 m vom Grundstück entfernt.

Weitere Informationen

Beratungstermine Gern vereinbaren wir einen individuellen Beratungstermin,
Sie können sich in unserem Wandlitzer Büro gerne von der qualitativ hochwertigen Ausführung und der Ausstattung unserer Wohnungen überzeugen. Wir zeigen Ihnen auch gerne die Fassadengestaltung der Häuser im Louisenhain in Wandlitz.
Nicht das Richtige für Sie? Fragen Sie uns nach Alternativen. Sicher finden wir das Passende für Sie!
Schreiben Sie uns eine Email oder rufen Sie einfach an (033397/60357 oder 0174/9899404). Wir sind gern für Sie da und freuen uns auf Sie! Stichworte Sonstiges/Wohnen: seniorengerechtes Wohnen Serviceleistungen: Hausmeister

Weitere Services

Lust auf eine Besichtigung?
Eine Frage zur Immobilie?
Nachricht hinzufügen
Mit der Nutzung der oben angegebenen Telefonnummer oder durch Klicken auf „Kontaktieren“ akzeptierst Du die Allgemeinen Nutzungsbedingungen, denen Du jederzeit widersprechen kannst. Weitere Informationen zum Datenschutz

Über den Anbieter

Louisenhain 6, 16348 Wandlitz
partner badge
6 Jahre Partnerschaft
Frau Claudia MatheaDein Kontakt
Online-ID: 262KUZXEE82A
Landhaus Wandlitz GmbH & Co. KG
Landhaus Wandlitz GmbH & Co. KG
Bewertung: 4 von 5 Sternen
Nachricht hinzufügen
Mit der Nutzung der oben angegebenen Telefonnummer oder durch Klicken auf „Kontaktieren“ akzeptierst Du die Allgemeinen Nutzungsbedingungen, denen Du jederzeit widersprechen kannst. Weitere Informationen zum Datenschutz
Wie zufrieden bist du mit dieser Seite (nicht mit der Immobilie selbst)?