Version: 8.25.1Navigation überspringen
4.000 €
375 m² Verkaufsfläche
Immowelt logo

Ladenfläche zur Miete
4.000 €
375 m² Verkaufsfläche

Wunder(l)bares Geschäftslokal mit Parkmöglichkeiten in Sollenau

Obj. Nr. 2321

Nahe dem zentralen Kreuzungsbereich der B17 zum Zentrum Sollenau befindet sich das Geschäftshaus des ehemaligen Schuhhauses "Wunderl", welches durch seine hochwertigen und außergewöhnlichen Markenschuhe jahrzehntelang auch viele der Prominenten von Österreich mit Schuhen versorgte.

Auf Grund von Pensionierung stehen die großzügig und exklusiv ausgestatteten Räumlichkeiten nun mehr zur weiteren Nutzung frei.

Ein repräsentatives Lokal mit langer Straßenfront und sehr großer Auslagenfläche präsentiert sich den tausenden vorbeifahrenden Fahrzeugen wie am ersten Tage.

Vor dem Lokal sind Parkplätze und Grünflächen in ausreichender Zahl vorhanden.

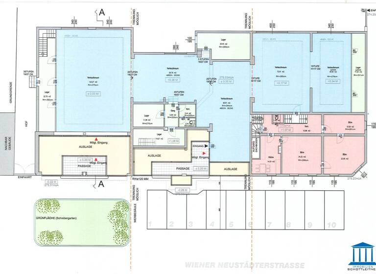
Die reine Verkaufsfläche des Eck-Geschäftshauses beträgt ca. 375 m² bei ca. 40 Laufmeter Straßenfront und ähnlich großzügiger Auslagen.

Zusätzlich stehen ca. 88 m² Büroflächen und ca. 86 m² Lagerflächen, verteilt im Erdgeschoss, zur Verfügung und bei Bedarf optional mehrere ca. 100 m² Lagerflächen im Untergeschoss, welches neben den Stiegenhäusern über das Erdgeschoss und auch über den Hof gut zufahrbar ist.

Neben der bisherigen Nutzung für Schuhe und Accessoires würde auch einer Nutzung für die Gastronomie vermieterseits nichts im Wege stehen.

Auch bestünde die Möglichkeit durch Synergieeffekte zwei bis drei Geschäftsflächen unterschiedlich zu bespielen, wobei mieterseits dann auf die technische Trennung Acht zu geben wäre.

"Unterm Strich" das perfekte Lokal für den Schritt in die Selbstständigkeit für alle Branchen, welche die Verkehrsfrequenz und die leichte Erreichbarkeit zu Nutzen wissen.

 

mtl. Miete: netto € 4.000,-- zzgl. Betriebskosten á-conto, zzgl. USt.

Kaution: 3 Bruttomonatsmieten

Grundrisse

Verschaffe dir einen genauen Überblick über die Raumaufteilung.selection_property_house-icon

Realisiere Dein Projekt

Bausubstanz und Energie

Heizwärmebedarf (HWB)

G

Gesamtenergieeffizienz (fGEE)

E
Immowelt logo

Mietkosten

Nettokaltmiete
4.000 €
Betriebskosten
240 €
Provision für Mieter
3 Bruttomonatsmieten zzgl. 20% USt.
Kaution
3 Bruttomonatsmieten
Weitere Preisinformationen

Mietvertragserrichtung: je nach Tarif
Alle Preise sind zzgl. MWST., Nettokaltmiete: 4.000,00 EUR

Lage

address-icon
Sollenau (2601)

Weitere Informationen

Stichworte Lagerfläche: 86,00 m², Nutzfläche: 549,00 m², Gesamtfläche: 549,00 m², Bürofläche: 88,00 m², Bundesland: Niederösterreich

Weitere Services

Lust auf eine Besichtigung?
Eine Frage zur Immobilie?
Nachricht hinzufügen
Mit der Nutzung der oben angegebenen Telefonnummer oder durch Klicken auf „Kontaktieren“ akzeptierst Du die Allgemeinen Nutzungsbedingungen, denen Du jederzeit widersprechen kannst. Weitere Informationen zum Datenschutz

Über den Anbieter

Schottleitner GesmbH
Bahngasse 14, 2700 WIENER NEUSTADT
partner badge
Partnerschaft
Online-ID: 24KI65LWF9NR
Referenznummer: OBGC2024110709325565537d2cbe5d5
Schottleitner GesmbH
Schottleitner GesmbH
Nachricht hinzufügen
Mit der Nutzung der oben angegebenen Telefonnummer oder durch Klicken auf „Kontaktieren“ akzeptierst Du die Allgemeinen Nutzungsbedingungen, denen Du jederzeit widersprechen kannst. Weitere Informationen zum Datenschutz
Wie zufrieden bist du mit dieser Seite (nicht mit der Immobilie selbst)?