

Vereinigte VR Bank eG
Firma Team Kaltenkirchen
041 ···
Nr. anzeigenPreise & Kosten
Provision für Käufer
Bei Kaufvertragsabschluss sind vom Käufer 2,98% des Kaufpreises inkl. MwSt. zu entrichten.
Lage
Die Stadt Quickborn (die Eulenstadt) hat rd. 23.000 Einwohner und liegt im Kreis Pinneberg in Schleswig-Holstein. Durch die Lage an der Autobahn A 7 zwischen Hamburg und Neumünster, den Anschluss an die AKN sowie der öffentlichen Buslinien und der Nähe zum Hamburger Flughafen ist Quickborn ein sehr beliebter Wohnort...
Das Haus
Kategorie
Mehrfamilienhaus
Baujahr
1995
Derzeitige Nutzung
vermietet
Energie & Heizung
Warum sehe ich diese Anzeige? – Du siehst diese Anzeige basierend auf Ihrer Navigation auf unserer Website und den Suchkriterien, die du verwendet hast.
Energieausweistyp
Verbrauchsausweis
Gebäudetyp
Wohngebäude
Baujahr laut Energieausweis
1995
Wesentliche Energieträger
GAS
Gültigkeit
bis 13.02.2035
Effizienzklasse
C
Endenergieverbrauch
77,70 kWh/(m²·a)
Details
Objektbeschreibung
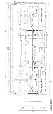
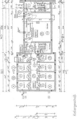
Das zum Verkauf stehende Mehrfamilienhaus wurde 1995 in massiver Bauweise auf einem 944 m² großen Grundstück errichtet und hat zwei Hauseingänge. Die Gesamtwohnfläche beträgt ca. 298 m² und verteilt sich auf 6 schöne Wohnungen. Hinzu kommen ca. 135 m² Nutzfläche für Kellerräume ( 2/3 unterkellert), Treppenhaus und Spitzboden...
Ausstattung
Glasfaserkabel (Stadtwerke Quickborn) in allen Wohnungen
Preisinformation
6 Stellplätze
Weitere Informationen
Sonstiges
Kontaktieren Sie uns, um weitere Informationen zu erhalten oder einen Besichtigungstermin zu vereinbaren.
Stichworte
Nutzfläche: 135,00 m², vermietbare Fläche: 298,00 m², Anzahl Balkone: 2, Anzahl Terrassen: 3, Anzahl der Wohneinheiten: 6
Anbieter der Immobilie
Vereinigte VR Bank eG
Boldixumer Straße 21, 25938 Wyk auf Föhr

Online-ID: 2msxj5m
Referenznummer: 3017
Finde Angebote wie dieses
Hier geht es zu unserem Impressum, den Allgemeinen Geschäftsbedingungen, den Hinweisen zum Datenschutz und nutzungsbasierter Online-Werbung.