Version: 8.25.1Navigation überspringen
97.000 €
481 m² Grundstück
Immowelt logo

Grundstück zum Kauf
97000 €
202 €/m²
481 m² Grundstück

Ruhige Lage: Attraktives Grundstück mit Meerblick und Baugenehmigung

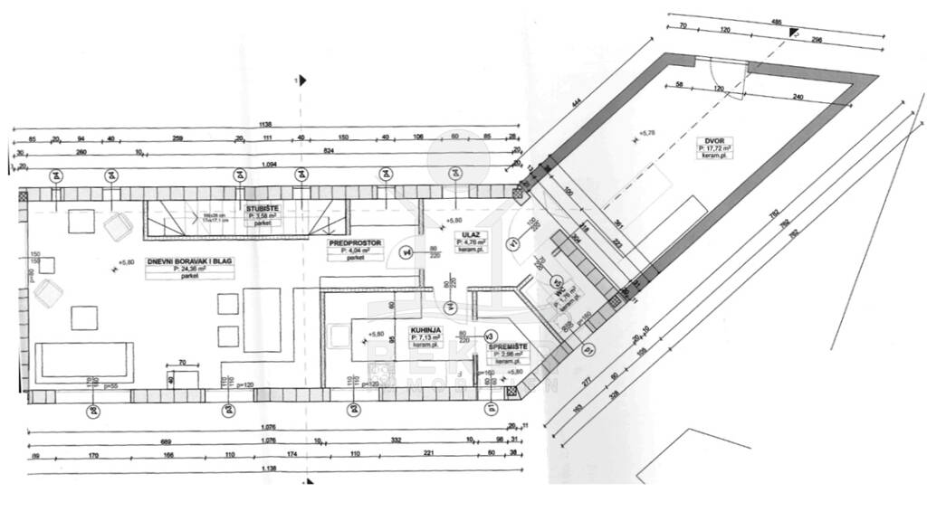
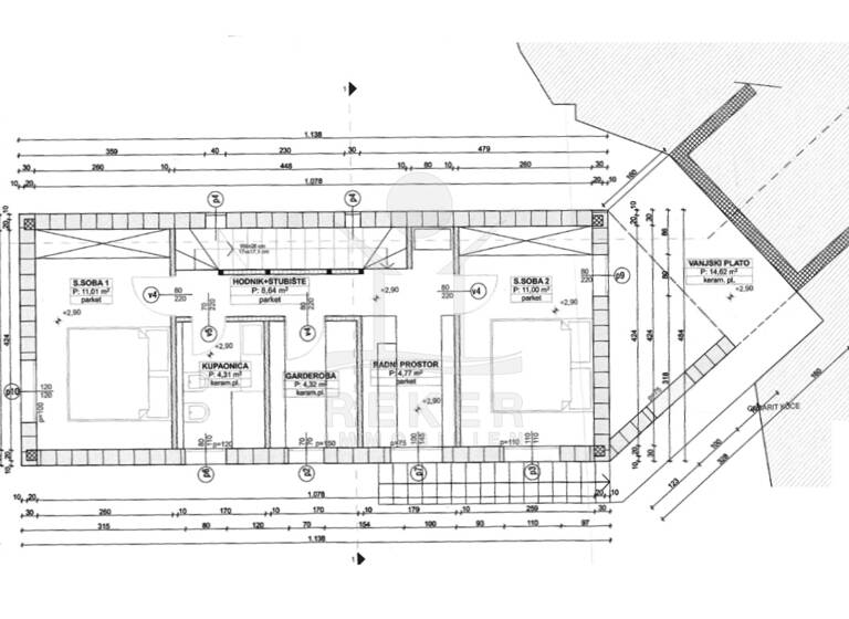
Kurzbeschreibung baugrundstuck-sipan-meerblick-baugenehmigung Objekt Dieses 481 m² große Baugrundstück hat bereits eine Baugenehmigung für ein Einfamilienhaus mit Flachdach, verteilt auf drei Etagen.
Im Untergeschoss ist die Terrasse mit Sommerküche und ein Abstellraum, im
Erdgeschoss zwei Schlafzimmer, ein Badezimmer, ein Arbeitsraum sowie im ersten Stock ein Wohn- Essbreich mit offener Küche, Abstellraum und Gäste-WC mit Haupteingang an der Nordostfassade geplant.
Dank der Hanglage ist der herrliche Meerblick für Sie reserviert!
Tolle Lage in unberührter Natur mit Meerblick!
Für weitere Informationen sprechen Sie uns bitte an!

Merkmale

  • 481 m² Grundstück
  • Meerblick
https://www.reker-immobilien.de/kroatien/baugrundstuck-sipan-meerblick-baugenehmigung_2538?utm_source=ausstattung&utm_medium=txt&utm_campaign=2538
~

Grundrisse

Grundrisse
1 / 2

Realisiere Dein Projekt

Bausubstanz und Energie

Möchtest du Details zum Energieverbrauch?info_energy_calculation-icon
Immowelt logo

Preisdetails

Kaufpreis
97000 €
201,66 €/m²
Provision für Käufer
3,75 % inkl. MwSt. in Kroatien

Lage

address-icon
Sudurad
Der Anbieter hat die genaue Adresse nicht freigegeben

Weitere Services

Lust auf eine Besichtigung?
Eine Frage zur Immobilie?
Nachricht hinzufügen
Mit der Nutzung der oben angegebenen Telefonnummer oder durch Klicken auf „Kontaktieren“ akzeptierst Du die Allgemeinen Nutzungsbedingungen, denen Du jederzeit widersprechen kannst. Weitere Informationen zum Datenschutz

Über den Anbieter

Micin Stanka 28 A, 22211 Vodice
partner badge
Partnerschaft
Herr Heiner Reker
Herr Heiner RekerDein Kontakt
Online-ID: 23JUIBWGFY24
Referenznummer: 2538
Reker Immobilien Doo
title
Reker Immobilien Doo
Bewertung: 4,8 von 5 Sternen
Nachricht hinzufügen
Mit der Nutzung der oben angegebenen Telefonnummer oder durch Klicken auf „Kontaktieren“ akzeptierst Du die Allgemeinen Nutzungsbedingungen, denen Du jederzeit widersprechen kannst. Weitere Informationen zum Datenschutz
Wie zufrieden bist du mit dieser Seite (nicht mit der Immobilie selbst)?