Version: 8.24.0Navigation ĂĽberspringen
329.000 €
3 Zimmer  â€˘  78,4 m²  â€˘  2. Geschoss
Immowelt logo

Wohnung zum Kauf - Erstbezug • provisionsfrei
329000 €
4.199 €/m²
3 Zimmer  â€˘  78,4 m²  â€˘  2. Geschoss

Komfortable 3-Zimmer-Neubauwohnung mit Loggia und Aufzug

In attraktiver Wohnlage von Mötzingen, in der Vollmaringer Straße, entsteht diese hochwertige Neubauwohnanlage mit insgesamt 19 modernen Eigentumswohnungen, verteilt auf drei Mehrfamilienhäuser mit einer gemeinsamen Tiefgarage.

Das Projekt überzeugt durch eine zeitlose Architektur, durchdachte Grundrisse und eine hochwertige Bauausführung. Angeboten werden 2- und 3-Zimmer-Wohnungen mit Wohnflächen von ca. 41 m² bis 112 m², die sowohl Eigennutzern als auch Kapitalanlegern ideale Voraussetzungen bieten.

Alle Wohnungen verfügen über eine Loggia, die Penthouse-Wohnungen im Dachgeschoss über großzügige Dachterrassen. Jede Wohnung ist mit einem Abstellraum ausgestattet - bei den meisten Einheiten angrenzend an die Loggia, bei den Penthouse-Wohnungen direkt von der Wohnung aus zugänglich.

Ein Aufzug verbindet sämtliche Wohnebenen komfortabel mit der Tiefgarage. Die moderne Bauweise, energieeffiziente Technik und eine ansprechende Außenanlage runden dieses attraktive Neubauprojekt ab.

Merkmale

  • 2. Geschoss
  • Personenaufzug
  • Kelleranteil
  • Barrierefrei
  • Badezimmer: Bad mit Dusche, Bad mit Fenster
Die Wohnungen werden in hochwertiger, zeitgemäßer Ausstattung errichtet und erfüllen hohe Ansprüche an Komfort, Qualität und Energieeffizienz:

- Moderne Grundrisse mit offenen Wohn- und Essbereichen
- Loggia bei allen Wohnungen (EG bis OG)
- GroĂźzĂĽgige Dachterrassen bei den Penthouse-Wohnungen (DG)
- Abstellraum je Wohnung (Loggia-angebunden bzw. innenliegend bei DG)
- Aufzug von der Tiefgarage bis in alle Wohnebenen
- Tiefgarage mit komfortabler Zufahrt
- Fußbodenheizung in allen Wohnräumen
- Moderne Sanitärausstattung mit bodengleichen Duschen
- 3-fach verglaste Fenster mit guten Schall- und Wärmeschutzwerten
- Elektrische Rollläden bzw. Raffstores (je nach Planung)
- Energieeffiziente Heiztechnik gemäß aktuellem Gebäudeenergiegesetz
- Gegensprechanlage mit Videofunktion

Grundrisse

Grundrisse
1 / 3

Realisiere Dein Projekt

Bausubstanz und Energie

Der Anbieter hat keine Informationen zum Energieverbrauch bereit gestellt.
  • Baujahr2026
  • Zustand der ImmobilieErstbezug
  • EnergieträgerLuft-/Wasser-Wärmepumpe
Immowelt logo

Preisdetails

Kaufpreis
329000 €
4.198,57 €/m²
Provision für Käufer
provisionsfrei
Geschätzte Gesamtkosten
352.030 €1
Kaufpreis
329.000 €
Notarkosten (1,5%)
4.935 €
Grunderwerbsteuer (5%)
16.450 €
Grundbucheintrag (0,5%)
1.645 €
1Der angezeigte Wert ist eine automatisch berechnete Schätzung von immowelt.
2Bei den Angaben handelt es sich um ortsübliche Werte. Individuelle Kosten können abweichen.

Lage

address-icon
Mötzingen (71159)
Der Anbieter hat die genaue Adresse nicht freigegeben
Die Wohnanlage befindet sich in der Vollmaringer Straße in Mötzingen, einer ruhigen und gewachsenen Wohnlage im Landkreis Böblingen. Mötzingen bietet eine sehr gute Infrastruktur sowie eine hohe Lebensqualität - ideal für Familien, Paare und Berufspendler.

Einkaufsmöglichkeiten für den täglichen Bedarf, Kindergarten, Schule sowie ärztliche Versorgung sind schnell erreichbar. Die Umgebung ist geprägt von Wohnbebauung, Feldern und Naturflächen, die zu Spaziergängen und Freizeitaktivitäten einladen.

Dank der guten Verkehrsanbindung sind die Städte Herrenberg, Böblingen und Stuttgart bequem erreichbar. Die Nähe zur A81 sowie zum S-Bahn-Anschluss in Herrenberg ermöglicht eine schnelle Verbindung in die Region Stuttgart.

Weitere Informationen

Sonstiges Die Wohnung erwerben Sie PROVISIONSFREI direkt vom Bauträger.

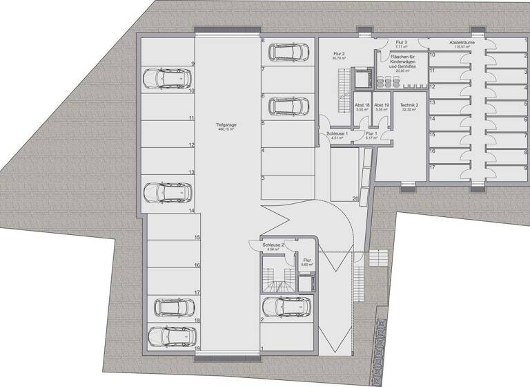
Es sind insgesamt 20 Tiefgaragenstellplätze im Untergeschoss verfügbar. Kaufpreis von 15.000€ bis 25.000 €
Es sind insgesamt 9 Außenstellplätze verfügbar. Der Außenstellplatz kostet je Stellplatz 12.500€ Energiepass Energieausweis wird bei Besichtigung vorgelegt. Stichworte Anzahl der Schlafzimmer: 2, Anzahl der Badezimmer: 1, Anzahl Loggias: 1, Balkon-Terrassen-Fläche: 4,62 m², Bundesland: Baden-Württemberg, 3 Etagen

Weitere Services

Lust auf eine Besichtigung?
Eine Frage zur Immobilie?
Nachricht hinzufĂĽgen
Mit der Nutzung der oben angegebenen Telefonnummer oder durch Klicken auf „Kontaktieren“ akzeptierst Du die Allgemeinen Nutzungsbedingungen, denen Du jederzeit widersprechen kannst. Weitere Informationen zum Datenschutz

Ăśber den Anbieter

Brunnenstr. 14, 72202 Nagold
partner badge
Partnerschaft
Herr Atila Yasa
Herr Atila YasaDein Kontakt
Online-ID: 2mh4m5t
Referenznummer: 4737082
Wohnkraft Immobilien
title
Wohnkraft Immobilien
Nachricht hinzufĂĽgen
Mit der Nutzung der oben angegebenen Telefonnummer oder durch Klicken auf „Kontaktieren“ akzeptierst Du die Allgemeinen Nutzungsbedingungen, denen Du jederzeit widersprechen kannst. Weitere Informationen zum Datenschutz
Wie zufrieden bist du mit dieser Seite (nicht mit der Immobilie selbst)?