Baugrundstücke im B-Plangebiet „Am Feldrain“ in Milmersdorf
Baugrundstücke im B-Plangebiet Nr. 02/1992 „Eigenheimbau“ – Wohngebiet „Am Feldrain“ in Milmersdorf
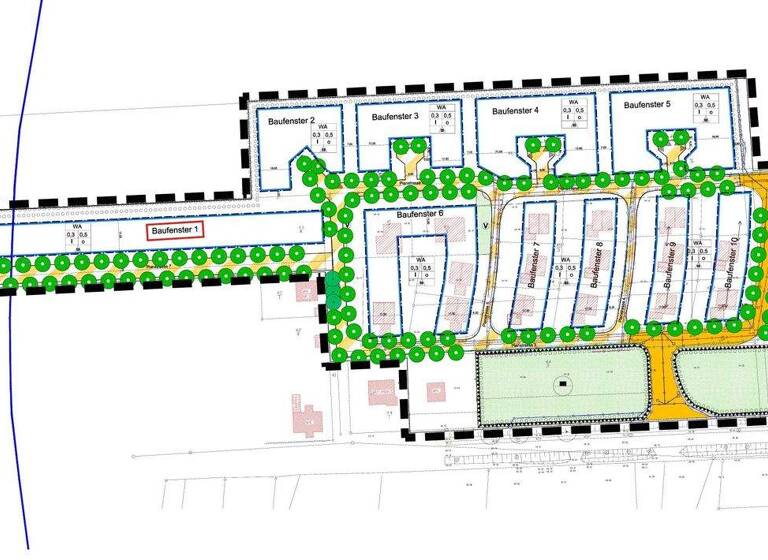
Zum Verkauf stehen attraktive Baugrundstücke im Geltungsbereich des rechtskräftigen Bebauungsplanes Nr. 02/1992 „Eigenheimbau“, Allgemeines Wohngebiet „Am Feldrain“, BAUFENSTER 1 in der Gemeinde Milmersdorf.
Grundstücksgrößen
Die Grundstücke sind flexibel teilbar und bieten Größen von ca. 500 m² bis 1.400 m², abhängig von individuellen Wünschen sowie der objektiv möglichen Flächenaufteilung gemäß Bebauungsplan.
// Art der baulichen Nutzung //
Die Grundstücke befinden sich in einem Allgemeinen Wohngebiet (WA) - auch für Tiny-Häuser geeignet!
// Folgende planungsrechtliche Kennzahlen dienen als Orientierung //
GRZ (Grundflächenzahl): 0,3
GFZ (Geschossflächenzahl): 0,5
Die Bebauung richtet sich nach den Festsetzungen des Bebauungsplanes Nr. 02/1992 „Eigenheimbau“ („Am Feldrain“). Abweichungen sind in Abstimmung mit dem Amt Gerswalde möglich.
// Kaufpreis //
Der Kaufpreis beträgt 102,78 € pro m².
Im Kaufpreis enthalten ist ein Ablösebetrag für die Erschließung in Höhe von 73,78 € pro m².
// Erschließung und Nebenkosten //
Für die Erschließung mit Wasser, Abwasser, Strom, Gas und Telekommunikation sowie die Errichtung von Hausanschlüssen können zusätzliche Kosten anfallen. Auskünfte hierzu erteilen die zuständigen Versorgungsunternehmen.
// Bebauungsverpflichtung //
Es besteht eine vertragliche Verpflichtung:
- Beginn der Bebauung innerhalb von 3 Jahren
- Fertigstellung innerhalb von 5 Jahren
jeweils ab Eigentumsumschreibung.
Merkmale
frei ab sofort
500 m² Grundstück
teilweise erschlossen
Strom, Gas, Telekommunikation, Wasser
Grundrisse
Grundrisse
1 / 1
Realisiere Dein Projekt
Bausubstanz und Energie
Energieausweis
Ein Energieausweis ist für diesen Gebäudetyp nicht notwendig.
Preisdetails
Kaufpreis
51390 €51.390 €
102,78 €/m²
Provision für Käufer
Der Käufer zahlt im Erfolgsfall an die Firma Annika Lipski Immobilien eine Käufer-Maklerprovision in Höhe von 7,14% inklusive 19% Mehrwertsteuer. Die Provision errechnet sich aus dem Kaufpreis und ist fällig am Tag der Beurkundung.
Geschätzte Gesamtkosten
55.059 €1
Kaufpreis
51.390 €
Kaufnebenkosten
3.669 €
2
Provision für Käufer (7,14%)
3.669 €
1Der angezeigte Wert ist eine automatisch berechnete Schätzung von immowelt.
2Bei den Angaben handelt es sich um ortsübliche Werte. Individuelle Kosten können abweichen.
Lage
Am Feldrain, Milmersdorf (17268)
Die hier angebotenen Baugrundstücke liegen im Bebauungsplangebiet "Am Feldrain" Milmersdorf im Baufenster 1.
Milmersdorf ist eine idyllische Gemeinde im Herzen der Uckermark, einer der schönsten Naturlandschaften Brandenburgs. Geprägt von sanften Hügeln, ausgedehnten Wäldern und zahlreichen Seen, bietet der Ort eine hohe Lebensqualität und Ruhe abseits des städtischen Trubels.
Die Gemeinde liegt verkehrsgünstig an der Bundesstraße B109, die eine schnelle Anbindung an die Städte Templin (ca. 10 km) und Prenzlau (ca. 30 km) ermöglicht. Auch Berlin ist über die A11 in etwa 90 Minuten erreichbar.
In Milmersdorf finden sich alle wichtigen Einrichtungen für den täglichen Bedarf, darunter eine Grundschule, eine Kindertagesstätte, Einkaufsmöglichkeiten sowie medizinische Versorgung. Weiterführende Schulen, größere Supermärkte und kulturelle Angebote sind in Templin vorhanden.
Die Region ist besonders attraktiv für Naturliebhaber und Erholungssuchende. Nahegelegene Gewässer laden zum Baden, Angeln und Wassersport ein. Zahlreiche Rad- und Wanderwege durchziehen die malerische Landschaft und machen Milmersdorf zu einem idealen Standort für alle, die ein ruhiges, naturnahes Wohnen schätzen