
VON POLL IMMOBILIEN Hannover Region Süd - Susanne Krausz-Grimsehl
Herr Karsten Grimsehl
004 ···
Nr. anzeigenPreise & Kosten
Provision für Käufer
Käuferprovision beträgt 3,57 % (inkl. MwSt.) des beurkundeten Kaufpreises
Lage
Ihr neues Zuhause befindet sich in einer ruhigen Seitenstraße in Wennigser Mark, einem beliebten Ortsteil von Wennigsen, am Fuße des Deisters gelegen - nur wenige Schritte trennen Sie vom Waldrand!
Die Wennigser Mark besticht nicht nur durch eine äußerst idyllische, sondern auch durch eine strategisch gute Lage, denn...
Das Haus
Kategorie
Reihenmittelhaus
Baujahr
1974
Energie & Heizung
Warum sehe ich diese Anzeige? – Du siehst diese Anzeige basierend auf Ihrer Navigation auf unserer Website und den Suchkriterien, die du verwendet hast.
Energieausweistyp
Bedarfsausweis
Gebäudetyp
Wohngebäude
Baujahr laut Energieausweis
1974
Wesentliche Energieträger
KWK_FOSSIL
Gültigkeit
bis 05.08.2031
Effizienzklasse
D
Endenergiebedarf
122,10 kWh/(m²·a)
Weitere Energiedaten
Haustyp
Massivhaus
Energieträger
Öl
Heizungsart
offener Kamin
Details
Objektbeschreibung
Mit diesem Immobilienangebot bietet Ihnen Von Poll Immobilien Hannover Region Süd ein gepflegtes Reihenmittelhaus in unmittelbarer Nähe zum Deister an. Das im Jahr 1974 erbaute Haus erwartet Sie mit einer Wohnfläche von etwa 100 m² mit einem ca. 135 m² großen Grundstück.
Die Immobilie erstreckt sich über zwei Etagen, die...
Ausstattung
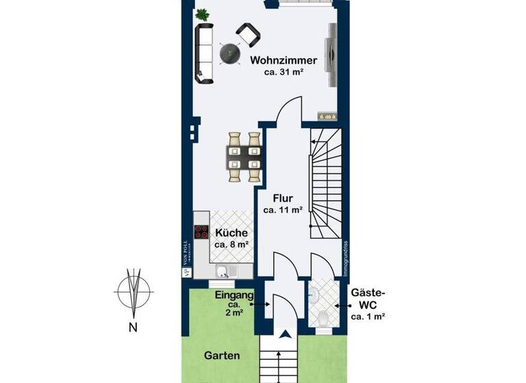
Reihenmittelhaus
Erdgeschoss
- Windfang
- Gäste-WC
- Flur
- Küche
- Wohn-/Esszimmer
Obergeschoss
- 2 Schlafzimmer
- Flur
- Badezimmer mit Wanne und Bidet (2022)
- Abstellraum / Büro
Keller
- Waschkeller / HWR
- Abstellraum
- Gästeraum (mit...
Preisinformation
1 Garagenstellplatz
Weitere Informationen
Sonstiges
Es liegt ein Energiebedarfsausweis vor.
Dieser ist gültig bis 5.8.2031.
Endenergiebedarf beträgt 122.10 kwh/(m²*a).
Wesentlicher Energieträger der Heizung ist KWK fossil.
Das Baujahr des Objekts lt. Energieausweis ist 1974.
Die Energieeffizienzklasse ist D.
GELDWÄSCHE: Als...
Anbieter der Immobilie
VON POLL IMMOBILIEN Hannover Region Süd - Susanne Krausz-Grimsehl
Steinweg 8, 30989 Gehrden
Online-ID: 2m95p5j
Referenznummer: 25285044
Finde Angebote wie dieses
Hier geht es zu unserem Impressum, den Allgemeinen Geschäftsbedingungen, den Hinweisen zum Datenschutz und nutzungsbasierter Online-Werbung.