Version: 8.26.0Navigation überspringen
2.500 €
330 m² Lagerfläche
Immowelt logo

Lagerhalle zur Miete
2.500 €
330 m² Lagerfläche

Exponierte Gewerbeeinheit an der Hauptstraße - 330 m² mit maximaler Werbewirkung

WICHTIGER HINWEIS: Das aktuell bestehende Autohaus bleibt bestehen! Lediglich die Ausstellungsfläche und die Büroräume werden frei. Aufgrund von Konkurrenzklauseln, wäre als Autohaus nur der Vertrieb von Nutz- oder Luxusfahrzeugen gestattet.

Zur Vermietung steht eine großzügige und vielseitig nutzbare Gewerbeeinheit mit rund 330 m² Nutzfläche, bestehend aus einer repräsentativen Ausstellungsfläche sowie angeschlossenen Büroräumlichkeiten. Die Einheit wird derzeit als Autohaus genutzt und kann kurzfristig, zum nächstmöglichen Zeitpunkt, übernommen werden.

Die Vertragsmodalitäten sind flexibel gestaltbar und bieten Raum für individuelle Konzepte.
Sollte der zukünftige Mieter eine Sanierung oder Umgestaltung in Eigeninitiative planen, zeigt sich der Eigentümer entgegenkommend mit mietfreien Zeiträumen. Alternativ können auch Sanierungsmaßnahmen durch den Eigentümer umgesetzt werden - in diesem Fall erfolgt eine Anpassung des Mietpreises nach Abstimmung.

Unabhängig davon ist die Fläche sofort im aktuellen Zustand nutzbar und betriebsbereit.

Raumaufteilung & Nutzungsmöglichkeiten

Die Büroräumlichkeiten sind überwiegend durch Leichtbauwände voneinander getrennt und lassen sich problemlos an neue Nutzungskonzepte anpassen - ideal für individuelle Grundrisse, offene Bürostrukturen oder zusätzliche Besprechungsräume.

Direkt angrenzend befindet sich die bestehende Werkstatt des Autohauses, welche weiterhin in Betrieb bleibt - ebenso das Autohaus selbst. Die derzeit vor dem Gebäude abgestellten Fahrzeuge können nach hinten verlagert werden, sodass die vordere Ausstellungsfläche dem neuen Mieter exklusiv zur Verfügung steht.

Raumaufteilung & Nutzungsmöglichkeiten

Die Büroräumlichkeiten sind überwiegend durch Leichtbauwände voneinander getrennt und lassen sich problemlos an neue Nutzungskonzepte anpassen - ideal für individuelle Grundrisse, offene Bürostrukturen oder zusätzliche Besprechungsräume.

Direkt angrenzend befindet sich die bestehende Werkstatt des Autohauses, welche weiterhin in Betrieb bleibt - ebenso das Autohaus selbst. Die derzeit vor dem Gebäude abgestellten Fahrzeuge können nach hinten verlagert werden, sodass die vordere Ausstellungsfläche dem neuen Mieter exklusiv zur Verfügung steht.

Konditionen - transparent & fair

. Kaltmiete: 2.500 ?€/Monat
. Nebenkostenvorauszahlung: 150?€/Monat
. Kaution: 2 Kaltmieten

Merkmale

  • frei ab sofort
. Ausstellungsfläche vorne: gefliest
. Ausstellungsfläche hinten: gepflastert
. Büroräume: beheizt
. Ausstellungsflächen: nicht beheizt
. Aktuell keine separate Nasszelle, diese kann jedoch ohne größeren Aufwand nachgerüstet werden

Deckenhöhen

. Büroflächen: ca. 3,18 m
. Ausstellung vorne: ca. 2,64 m / 2,32 m (unter Stahlträgern)
. Ausstellung hinten (gepflastert): ca. 2,67 m / 2,35 m (unter Stahlträgern)

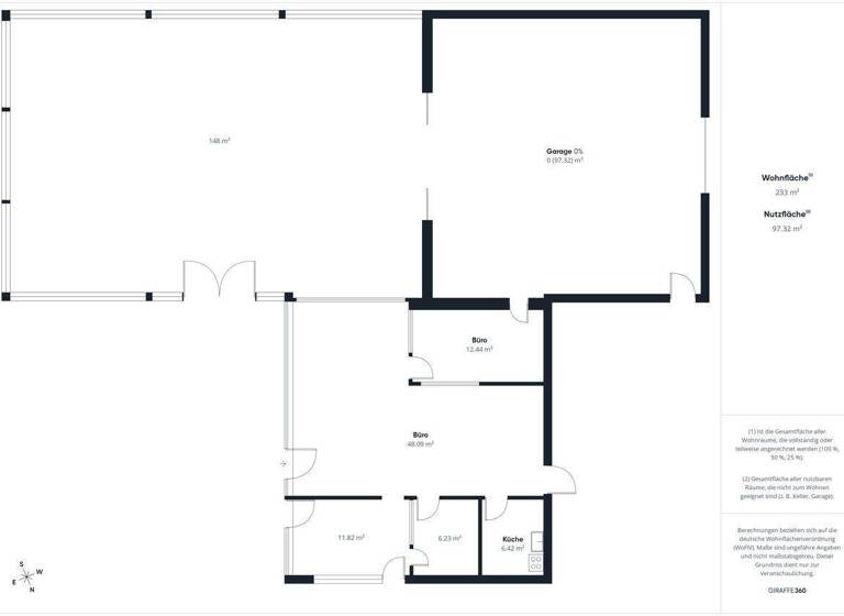
Grundrisse

Grundrisse
1 / 2

Bausubstanz und Energie

Energieausweis

Ein Energieausweis ist für diesen Gebäudetyp nicht notwendig.
  • Baujahr1975
  • Zustand der ImmobilieGepflegt
Immowelt logo

Mietkosten

Nettomiete
2.500 €
Nebenkosten
150 €
Provision für Mieter
Unsere Provision beträgt 2,38 Nettokaltmieten inkl. MwSt.
Unsere Provision beträgt 2,38 Nettokaltmieten inkl. MwSt.
Kaution
5000 €
Weitere Preisinformationen
Nettokaltmiete: 2.500,00 EUR

Lage

address-icon
NeustadtNeustadt am Rübenberge (31535)
Der Anbieter hat die genaue Adresse nicht freigegeben
Makrolage
Neustadt am Rübenberge liegt strategisch günstig in der Region Hannover und verfügt über eine sehr gute Verkehrsanbindung. Die Nähe zu Hannover, Wunstorf sowie zur Bundesstraße B6 und den umliegenden Verkehrsachsen macht den Standort sowohl für lokale als auch überregionale Kunden attraktiv. Die Stadt bietet eine solide wirtschaftliche Struktur mit Handwerk, Handel, Dienstleistung und Industrie - ein Umfeld mit nachhaltigem Entwicklungspotenzial.

Mikrolage
Das Objekt befindet sich in exponierter Lage an der Wunstorfer Straße 60 in Neustadt am Rübenberge, einer stark frequentierten Hauptverkehrsstraße mit hervorragender Sichtbarkeit und Werbewirkung. Die direkte Straßenlage macht die Gewerbeeinheit ideal für Ausstellung, Verkauf, Showroom oder serviceorientierte Nutzungen, bei denen Präsenz und Wahrnehmung entscheidend sind.

Ein zusätzlicher Standortvorteil:
Unmittelbar benachbart wird aktuell ein Bahnübergang neu gebaut, der künftig über einen Kreisverkehr geführt wird. Dies wird den Verkehrsfluss weiter erhöhen und die Lage nochmals deutlich aufwerten - ein klarer Pluspunkt für Frequenz und Sichtbarkeit.

Weitere Informationen

Sonstiges Die dargestellten Grundrisse sind nicht maßstabsgetreu und dienen lediglich der Orientierung. Stichworte Lagerfläche: 330,00 m², Gesamtfläche: 330,00 m²

Weitere Services

Lust auf eine Besichtigung?
Eine Frage zur Immobilie?
Mit einer persönlichen Nachricht hast du bessere Chancen auf eine Antwort.
Mit der Nutzung der oben angegebenen Telefonnummer oder durch Klicken auf „Kontaktieren“ akzeptierst Du die Allgemeinen Nutzungsbedingungen, denen Du jederzeit widersprechen kannst. Weitere Informationen zum Datenschutz

Über den Anbieter

Königstraße 88, 32427 Minden
Herr Max GajfulinDein Kontakt
Online-ID: 262BZMZUJ33G
Referenznummer: 250
Wie zufrieden bist du mit dieser Seite (nicht mit der Immobilie selbst)?