Version: 8.24.0Navigation überspringen
550.000 €
3 Zimmer  •  128 m²  •  590 m² Grundstück
Immowelt logo

Haus zum Kauf
550000 €
4.297 €/m²
3 Zimmer  •  128 m²  •  590 m² Grundstück

Moderne Gewerbeimmobilie mit hochwertiger Wohneinheit - Arbeiten & Wohnen unter einem Dach

Diese vielseitig nutzbare Gewerbeimmobilie mit integrierter Wohneinheit befindet sich in einem gut angebundenen Gewerbegebiet von 24223 Schwentinental, nur wenige Minuten von Kiel entfernt. Das Gebäude wurde 2010 errichtet und kombiniert funktionale Gewerbeflächen mit einer gehoben ausgestatteten Wohnetage - ideal für Unternehmer, die Wohnen und Arbeiten an einem Standort vereinen möchten.

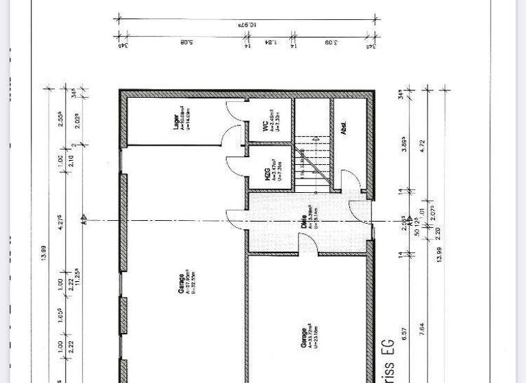
Im Erdgeschoss stehen Ihnen zwei großzügige Gewerbehallen mit insgesamt 102 m² Nutzfläche zur Verfügung - perfekt geeignet für Werkstattbetriebe, Handwerker, Montagefirmen oder Hobbyschrauber. Die Halle bietet Platz für Maschinen, Fahrzeuge oder Material und überzeugt durch eine praktische Zufahrt sowie einen großzügigen Wendehammer direkt vor der Tür.

Die Wohneinheit im Obergeschoss umfasst ca. 128 m² Wohnfläche mit 3 Zimmern, bodentiefen Fenstern und einem eindrucksvoll großen Balkon. Der großzügige Wohnbereich, die moderne Küche, zwei Schlafzimmer sowie zwei Bäder schaffen ein komfortables Wohnambiente oberhalb der Gewerbeflächen. Das Konzept ermöglicht effizientes Arbeiten und entspanntes Wohnen an einem Ort.

Merkmale

  • 590 m² Grundstück
  • Einbauküche
  • 7 Stellplätze: 7 Carports
  • Gäste-WC
  • Balkon
  • Barrierefrei
  • Badezimmer: Badewanne, Bad mit Dusche, Bad mit Fenster
  • Bodenbelag: Fliesen, Kunststoff, Teppich
Die Ausstattung der Immobilie ist hochwertig und durchdacht. Die Wohnräume sind mit PVC-, Teppich- und Fliesenböden ausgestattet und bieten dank großer Fenster viel Tageslicht. Die Wärmepumpe sorgt für energieeffiziente Wärmeversorgung.

Die Immobilie verfügt über zwei Badezimmer, zwei zusätzliche WCs mit Pissoir, einen großzügigen Wohnraum, zwei Schlafzimmer, sowie eine versteckte Vorratskammer. Besonders hervorzuheben ist die zentrale Staubsaugeranlage, die überdurchschnittliche Deckenhöhe von 3,12 m, mehr als 120 Steckdosen im gesamten Gebäude sowie eine installierte PV-Anlage, die die Energiekosten spürbar reduziert.

Die Halle bietet ausgezeichnete Nutzbarkeit für verschiedenste Gewerke. Das große Carport mit drei Stellplätzen sowie zusätzliche Stellflächen für vier Fahrzeuge auf der Auffahrt runden das Angebot ab. Der großzügige Balkon bietet Raum zum Entspannen nach getaner Arbeit.

Grundrisse

Grundrisse
1 / 2

Realisiere Dein Projekt

Bausubstanz und Energie

Energieausweis

C
  • Baujahr2010
  • Zustand der ImmobilieGepflegt
  • EnergieträgerElektro
Immowelt logo

Preisdetails

Kaufpreis
550000 €
4.296,88 €/m²
Provision für Käufer
7,14% vom Kaufpreis inkl. MwSt.
Weitere Preisinformationen
7 Carportplätze
Geschätzte Gesamtkosten
616.385 €1
Kaufpreis
550.000 €
Notarkosten (1,5%)
8.250 €
Grunderwerbsteuer (6,5%)
35.750 €
Provision für Käufer (3,57%)
19.635 €
Grundbucheintrag (0,5%)
2.750 €
1Der angezeigte Wert ist eine automatisch berechnete Schätzung von immowelt.
2Bei den Angaben handelt es sich um ortsübliche Werte. Individuelle Kosten können abweichen.

Lage

address-icon
RaisdorfSchwentinental (24223)
Der Anbieter hat die genaue Adresse nicht freigegeben
Die Immobilie befindet sich im Gewerbegebiet von Schwentinental, in einem ruhigen Wendehammer mit optimaler Anfahrbarkeit. Trotz der gewerblichen Ausrichtung ist die Lage angenehm ruhig und überzeugt durch ihre direkte Nähe zur Landeshauptstadt Kiel.

Schwentinental zählt zu den wirtschaftlich wachsenden Gemeinden rund um Kiel und überzeugt durch eine hervorragende Infrastruktur. Einkaufsmöglichkeiten, Baumärkte, Handwerksbetriebe und große Gewerbeansiedlungen liegen in unmittelbarer Umgebung. Die Anbindung an die B76, B202 und die A1/A21 ermöglicht schnellen Zugang in alle Richtungen - ideal für Handwerksbetriebe, Montagedienste und Unternehmen mit regionalem Einsatzradius.

Weitere Informationen

Sonstiges Der Maklervertrag mit uns und/oder unserem Beauftragten kommt durch die Beauftragung der Maklertätigkeit in Textform (z.B. E-Mail mit Bestätigung der gewollten Inanspruchnahme) zustande. Die Höhe der Courtage richtet sich nach den ab dem 23.12.2020 in Kraft getretenen gesetzlichen Regelungen zur Teilung der Maklercourtage. Hiernach wird die Courtage für den Käufer mit insgesamt 7,14 % des Kaufpreises einschließlich Umsatzsteuer bei notariellem Vertragsabschluss verdient und fällig. Die Höhe der Bruttocourtage unterliegt einer Anpassung bei Steuersatzänderung. [...] Grunderwerbssteuer, Notar- und Gerichtskosten trägt der Käufer. Alle Angaben sind ohne Gewähr und basieren ausschließlich auf Informationen, die uns von unserem Auftraggeber übermittelt wurden. Wir übernehmen keine Gewähr für die Vollständigkeit, Richtigkeit und Aktualität dieser Angaben. Zwischenverkauf bleibt vorbehalten. Sollte das von uns nachgewiesene Objekt bereits bekannt sein, teilen Sie uns dies bitte unverzüglich mit. Die Weitergabe dieses Exposés an Dritte ohne unsere Zustimmung löst gegebenenfalls Courtage- bzw. Schadensersatzansprüche aus. Im Übrigen gelten die beigefügten allgemeinen Geschäftsbedingungen für die Rechtsbeziehung zwischen Ihnen und Andrea von Harten Immobilien. Stichworte Carport vorhanden, Stellplatz vorhanden, Anzahl der Schlafzimmer: 2, Anzahl der Badezimmer: 2, Anzahl Balkone: 1, Balkon-Terrassen-Fläche: 20,25 m², Bundesland: Schleswig-Holstein, 2 Etagen, modernisiert: 2025, Distanz zum Flughafen: 18.4, Distanz zum Hauptbahnhof: 2.68, Distanz zum Bus: 0.21

Weitere Services

Lust auf eine Besichtigung?
Eine Frage zur Immobilie?
Nachricht hinzufügen
Mit der Nutzung der oben angegebenen Telefonnummer oder durch Klicken auf „Kontaktieren“ akzeptierst Du die Allgemeinen Nutzungsbedingungen, denen Du jederzeit widersprechen kannst. Weitere Informationen zum Datenschutz

Über den Anbieter

Eulenkrugstraße 66, 22359 Hamburg
partner badge
Partnerschaft
Herr Uwe TeschDein Kontakt
Online-ID: 2mgpd5n
Referenznummer: AVH-1539
Andrea von Harten Immobilien GmbH & Co. KG
Andrea von Harten Immobilien GmbH & Co. KG
Bewertung: 4,2 von 5 Sternen
Nachricht hinzufügen
Mit der Nutzung der oben angegebenen Telefonnummer oder durch Klicken auf „Kontaktieren“ akzeptierst Du die Allgemeinen Nutzungsbedingungen, denen Du jederzeit widersprechen kannst. Weitere Informationen zum Datenschutz
Wie zufrieden bist du mit dieser Seite (nicht mit der Immobilie selbst)?