Version: 8.24.0Navigation überspringen
AGL Massivhaus Projektbau GmbH
423.265 €
4 Zimmer  •  80 m²  •  417 m² Grundstück  •  frei ab 20.12.2026

Bungalow zum Kauf - Erstbezug • provisionsfrei
423265 €
5.291 €/m²
4 Zimmer  •  80 m²  •  417 m² Grundstück  •  frei ab 20.12.2026

Ihr Zuhause im Grünen - Leipzig ganz nah

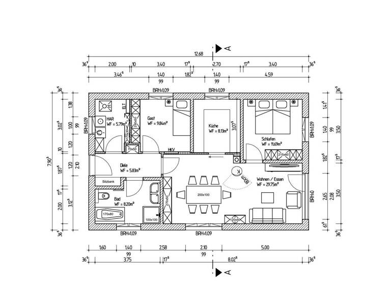
Wenn Sie auf der Suche nach einem energieeffizienten, komfortablen und barrierearmen Zuhause auf einer Ebene sind, wird Sie dieser moderne Bungalow begeistern. Das durchdachte Raumkonzept bietet Wohnen ohne Treppen und damit höchsten Wohnkomfort – ideal für Senioren oder Paare, die sich frühzeitig für die Zukunft absichern möchten. Herzstück des Hauses ist der großzügige Wohn- und Essbereich mit offener Küche. Hier genießen Sie Helligkeit, kurze Wege und eine angenehme Wohnatmosphäre. Das geräumige Schlafzimmer bietet ausreichend Platz und Rückzugsmöglichkeiten. Ein zusätzliches Gästezimmer eignet sich ideal für Besuch von Familie und Enkeln oder kann flexibel als Hobby- oder Arbeitszimmer genutzt werden. Das moderne Badezimmer überzeugt mit einer ebenerdigen Dusche sowie einer komfortablen Badewanne – so genießen Sie maximale Bewegungsfreiheit und entspannte Wohlfühlmomente. Die Diele sorgt für einen freundlichen Empfangsbereich mit guten Stellmöglichkeiten. Der Hauswirtschaftsraum bietet praktischen Platz für Waschmaschine, Trockner und zusätzliche Abstellmöglichkeiten – alles bequem auf einer Ebene erreichbar. Besonders hervorzuheben ist die energieeffiziente Bauweise mit moderner Wärmepumpentechnik, die für niedrige Betriebskosten und ein nachhaltiges Wohnklima sorgt. Sie erhalten ein bezugsfertiges Haus mit hochwertiger Ausstattung und Materialien namhafter deutscher Markenhersteller. Das Umfeld ist geprägt von gepflegten Einfamilien- und Doppelhäusern und bietet eine ruhige, angenehme Wohnatmosphäre. Ein Zuhause, das Komfort, Sicherheit und Zukunftsfähigkeit perfekt miteinander verbindet.

Merkmale

  • frei ab 20.12.2026
  • 417 m² Grundstück
  • Kein Keller
  • 1 WC
  • Glasfaser-Anschluss
  • Nicht möbliert
  • Barrierefrei
  • Badezimmer: Badewanne, Bad mit Dusche

Grundrisse

Grundrisse
1 / 5

Realisiere Dein Projekt

Bausubstanz und Energie

Energieausweis

A+
  • Baujahr2026
  • Zustand der ImmobilieErstbezug
  • HaustypNiedrigenergiehaus
  • HeizungsartFußbodenheizung
  • EnergieträgerElektro, Luft-/Wasser-Wärmepumpe

Preisdetails

Kaufpreis
423265 €
5.290,81 €/m²
Provision für Käufer
provisionsfrei
Geschätzte Gesamtkosten
455.010 €1
Kaufpreis
423.265 €
Notarkosten (1,5%)
6.349 €
Grunderwerbsteuer (5,5%)
23.280 €
Grundbucheintrag (0,5%)
2.116 €
1Der angezeigte Wert ist eine automatisch berechnete Schätzung von immowelt.
2Bei den Angaben handelt es sich um ortsübliche Werte. Individuelle Kosten können abweichen.

Lage

address-icon
An der Gartenstadt 11Taucha (04425)
Die Lage bietet eine perfekte Kombination aus Natur und urbanem Leben. Diese Lage vereint somit die Vorzüge einer naturnahen Umgebung mit einer ausgezeichneten Infrastruktur. Ideal für Familien und Naturliebhaber! Die Gartenstadt Taucha - Ihr neues Zuhause in der Natur und nah genug an Leipzig. Dieses einzigartige Wohnquartier bietet Baugrundstücke in unterschiedlichen Größen, die perfekt auf Ihre Bedürfnisse zugeschnitten sind. Das Baugebiet befindet sich in Taucha und ist für seine familienfreundliche Atmosphäre bekannt. In unmittelbarer Nähe finden sich alle wesentlichen Einrichtungen, die den Alltag erleichtern, wie Schulen, Kindergärten, Einkaufsmöglichkeiten sowie Ärzte und Apotheken. Die Lage bietet eine ideale Kombination aus städtischem Komfort und Nähe zur Natur. Man kann die Schönheit der Natur genießen, ohne auf wichtige Annehmlichkeiten verzichten zu müssen. Die S-Bahn und Straßenbahn und die Bushaltestelle sind zu Fuß gut zu erreichen. Die hervorragende Verkehrsanbindung ermöglicht es Ihnen, schnell und bequem sowohl das Stadtzentrum von Leipzig als auch die umliegenden Regionen zu erreichen.

Weitere Informationen

Wir beraten Sie auch gern vor Ort am Grundstück oder besichtigen mit Ihnen unser Haus Becrux. Bitte vereinbaren Sie einen Termin unter 0341 / 863 893 78 . Weiter Informationen zur Gartenstadt finden Sie auch auf www.gartenstadt-taucha.de.

Weitere Services

Lust auf eine Besichtigung?
Eine Frage zur Immobilie?
Nachricht hinzufügen
Mit der Nutzung der oben angegebenen Telefonnummer oder durch Klicken auf „Kontaktieren“ akzeptierst Du die Allgemeinen Nutzungsbedingungen, denen Du jederzeit widersprechen kannst. Weitere Informationen zum Datenschutz

Über den Anbieter

Katzstraße 1 B, 04289 Leipzig
partner badge
Partnerschaft
Frank WiedenhöftDein Kontakt

Weitere Unterlagen

Online-ID: 2nyr45p
AGL Massivhaus Projektbau GmbH
AGL Massivhaus Projektbau GmbH
Nachricht hinzufügen
Mit der Nutzung der oben angegebenen Telefonnummer oder durch Klicken auf „Kontaktieren“ akzeptierst Du die Allgemeinen Nutzungsbedingungen, denen Du jederzeit widersprechen kannst. Weitere Informationen zum Datenschutz
Wie zufrieden bist du mit dieser Seite (nicht mit der Immobilie selbst)?