Das Bauprojekt "Pröllhofstrasse N6" ist nur wenige Gehminuten vom Ortszentrum von Oberalm entfernt. Somit sind Einkaufsmöglichkeiten, kulturelle Aktivitäten und öffentliche Einrichtungen nur einen kurzen Fußweg entfernt.
Nah. Fern.
Ebenso rasch ist man bei der S-Bahn, um schnell in alle Richtungen zu gelangen oder man geht zur nächsten Bushaltestelle. Hier finden jedenfalls Naturliebhaber Ihren Ausgleich, ohne auf die Annehmlichkeiten des nahe gelegenen Ortszentrums verzichten zu müssen. Oberalm ist ein erstklassiger Standort, der auch über die Autobahn einfach zu erreichen ist.
Der Zukunft gewachsen
Photovoltaik und eine Luftwärmepumpe sorgen für einen minimalen CO2 -Fußabdruck.
Durchdacht geschnitten
Ob 2-, 3- oder 4-Zimmer Wohnung - kompakte Grundrisse bieten Wohnungen für jeden Bedarf. Zudem verfügen alle Wohnungen über eine Außenfläche. In der Tiefgarage ist nicht nur Platz für Autos, sondern auch für Fahrräder. Bei Bedarf kann auch das E-Auto in den TG-Plätzen geladen werden.
WOHNUNGEN
Wohnungen gesamt: 6
Wohnungsgrößen: ca. 60 m² bis 112 m²
Lichte Raumhöhe: ca. 2,50 m
AUSSTATTUNG
Boden: Parkett, Fliesen/Feinsteinzeug
Sonnenschutz: Rollläden
Heizung/Kühlung: Fußbodenheizung, Luftwärmepumpe
Lüftung: Abluftventilatoren in Bädern, WCs und Abstellflächen
Manuelle Lüftung: Fensterlüftung
MOBILITÄT
Pkw-Stellplätze: 12
E-Mobility: Jeder Stellplatz ist auf Kundenwunsch mit einer E-Ladestation aufrüstbar
Fahrradabstellplätze: Großer Fahrradraum in der Tiefgarage
Öffentlicher Verkehr: ca. 500 Meter zur S-Bahn, ca. 400 Meter zum Bus.
Merkmale
Erdgeschoss
voll erschlossen
Personenaufzug
Bad mit Fenster
Terrasse
Garage
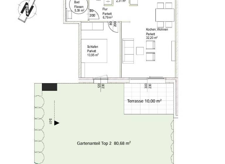
Grundrisse
Grundrisse
1 / 1
Realisiere Dein Projekt
Bausubstanz und Energie
Heizwärmebedarf (HWB)
B
Gesamtenergieeffizienz (fGEE)
A+
Zustand der ImmobilieNeubau, Massivhaus, Erstbezug
Preisdetails
Kaufpreis
520000 €520.000 €
8.573,78 €/m²
Provision für Käufer
provisionsfrei; Provision bezahlt der Abgeber.
Weitere Preisinformationen
1 Garagenstellplatz
Lage
Oberalm (5411)
Oberalm ist eine malerische Gemeinde im Salzburger Land im südlichen Teil des Salzachtals, etwa 15 Kilometer von der Stadt Salzburg entfernt. Die Region ist von einer beeindruckenden Berglandschaft umgeben, insbesondere vom Tennen Gebirge, das den südlichen Horizont prägt. Die idyllische Lage zwischen Alpen und Flusstal macht Oberalm zu einem attraktiven Ziel für Naturfreunde, Wanderer und Radfahrer. Die Gemeinde hat etwa 2.800 Einwohner und besteht größtenteils aus ländlichen Siedlungen, was ihr einen ruhigen Charakter verleiht. Oberalm zeichnet sich durch traditionelle Bauweise mit charakteristischen Bauernhöfen und Häusern im alpinen Stil aus. Zahlreiche Wander- und Radwege sind sowohl für Anfänger als auch für erfahrene Sportler geeignet, besonders entlang der Salzach und in den umliegenden Alpen. Die Nähe zur Stadt Salzburg sorgt für eine gute Verkehrsanbindung mit Auto und öffentlichen Verkehrsmitteln. Oberalm ist ideal für Menschen, die eine naturnahe Umgebung suchen und gleichzeitig schnell in der Kultur- und Festspielstadt Salzburg sein möchten. Die Region ist außerdem für ihre Gastfreundschaft, ihr Brauchtum und zahlreiche Veranstaltungen bekannt. Zusammengefasst verbindet Oberalm Natur, Ruhe und die Nähe zu Salzburg und ist für Erholungssuchende und Aktivurlauber gleichermaßen attraktiv.