Version: 8.24.0Navigation überspringen
Engel & Völkers Rostock, Warnemünde & Waren
759.000 €
4 Zimmer  •  132 m²

Wohnung zum Kauf
759000 €
5.750 €/m²
4 Zimmer  •  132 m²

Luxuriöse 4-Zimmer-Wohnung mit eigenem Garten im Rostocker Bahnhofsviertel

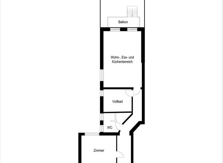
Diese exklusive 4-Zimmer-Wohnung befindet sich im Hochparterre eines im Jahr 1909 errichteten Mehrfamilienhauses und ist in den Jahren 2021-2022 mit viel Liebe zum Detail vollständig saniert worden. Das Gebäude präsentiert sich in einem sehr gepflegten und hochwertigen Zustand und vereint historischen Charme mit modernem Wohnkomfort. Im Zuge der Sanierungsarbeiten wurden unter anderem die Fassade, der Kellerbereich, der Hausflur, die Wohnungseingangstüren und Stuckelemente sowie die Elektroinstallationen erneuert. Auch die Außenanlagen erhielten eine liebvolle Umgestaltung und fügen sich harmonisch in das Gesamtbild ein. Die großzügige Wohnfläche von 132 m² verteilt sich auf drei individuell nutzbare Zimmer und einen lichtdurchfluteten Wohn- Ess- und Küchenbereich mit einer hochwertigen Einbauküche der Marke SieMatic mit Miele Geräten. Das moderne Vollbad und ein separates Gäste-WC ergänzen das Raumangebot. Ein besonderes Highlight ist der Balkon mit direktem Zugang zu dem eigenen Gartenbereich, welcher mit einer gepflasterten Terrasse und schönen Sitzgelegenheiten einen perfekten Rückzugsort zum Entspannen bietet. Der Boden ist raumentsprechend mit stilvollem Parkett und Fliesen belegt. Die Beheizung erfolgt über Fernwärme. Ein Hauswirtschaftsraum innerhalb der Wohnung und zwei große dazugehörige Kellerabteile bieten zusätzlichen Stauraum. Ein gemeinschaftlich genutzter Fahrradkeller steht den Bewohnern ebenfalls zur Verfügung und rundet dieses schöne Angebot ab.

Merkmale

  • Einbauküche, offene Küche
  • Gäste-WC
  • Balkon
  • Gartenmitbenutzung
  • Badezimmer: Badewanne, Bad mit Dusche, Bad mit Fenster
  • Bodenbelag: Fliesen, Parkett

Grundrisse

Grundrisse
1 / 1

Realisiere Dein Projekt

Bausubstanz und Energie

Energieausweis

D
  • Baujahr1909
  • EnergieträgerFernwärme
MediumRectangleTop

Preisdetails

Kaufpreis
759000 €
5.750 €/m²
Provision für Käufer
Siehe Weitere Informationen
Geschätzte Gesamtkosten
846.816 €1
Kaufpreis
759.000 €
Notarkosten (1,5%)
11.385 €
Grunderwerbsteuer (6%)
45.540 €
Provision für Käufer (3,57%)
27.096 €
Grundbucheintrag (0,5%)
3.795 €
1Der angezeigte Wert ist eine automatisch berechnete Schätzung von immowelt.
2Bei den Angaben handelt es sich um ortsübliche Werte. Individuelle Kosten können abweichen.

Lage

address-icon
StadtmitteRostock (18055)
Der Anbieter hat die genaue Adresse nicht freigegeben
Die norddeutsche Hansestadt Rostock zieht sich etwa 20 km am Lauf der Warnow bis zur Ostsee entlang. Die Hansestadt hat heute etwa 210.000 Einwohner und ist nach Einwohnerzahl und Fläche die größte Stadt des Landes Mecklenburg-Vorpommern. Schifffahrt und Schiffbau, Fischfang und der Tourismus bestimmen das wirtschaftliche Profil der Stadt, welche sich immer stärker Technologie orientierten Industriezweigen öffnet. Stetige Unternehmensansiedlungen und -Erweiterungen haben die Attraktivität der Hansestadt in den letzten Jahren weiterhin gesteigert. Diese positive wirtschaftliche Entwicklung spiegelt sich in der gestiegenen Einwohner- und Studentenzahl wider. Durch die Universität Rostock mit ihrem breit gefächerten Angebot, das Fraunhofer- und Max-Planck-Institut sowie das Technologiezentrum ist die Hansestadt ein Standort mit Innovationspotenzial. Die Wohnung selbst befindet sich im Rostocker "Bahnhofsviertel", einer sehr beliebten und exklusiven Innenstadtlage welches ein von Villen und hochwertigen Mehrfamilienhäusern gezeichnetes Stadtviertel ist. Mit ruhigen Straßenzügen ist das Bahnhofsviertel auch für Familien ein attraktives Wohnviertel, welches unweit vom direkten Stadtzentrum liegt. Nicht nur durch die verkehrsgünstigen Anbindungen wie Bus, Straßen- und S-Bahn ist diese Wohngegend sehr begehrenswert. Sämtliche Infrastruktureinrichtungen sind in der Umgebung vorhanden. Wohneigentum im Bahnhofsviertel ist trotz der in den vergangenen Jahren solide gestiegenen Preise sehr attraktiv.

Weitere Informationen

Sonstiges Courtagepassus Der Makler-Vertrag mit uns und/oder unserem Beauftragten kommt durch die Bestätigung der Inanspruchnahme unserer Maklertätigkeit in Textform zustande, wie z.B. insbesondere die Unterschrift des Suchkundenvertrages und/oder des Objekt-Exposés. Die Höhe der Courtage richtet sich nach den gesetzlichen Regelungen zur Teilung der Maklercourtage. Hiernach wird die Courtage für beide Parteien (Eigentümer und Käufer) in Höhe von jeweils 3 % zuzüglich Umsatzsteuer in geltender Höhe, derzeit also insgesamt 3,57 % des Kaufpreises einschließlich 19 % gesetzl. Umsatzsteuer bei notariellem Vertragsabschluss verdient und fällig. Die Höhe der Bruttocourtage unterliegt einer Anpassung bei Steuersatzänderung. Grunderwerbssteuer, Notar- und Gerichtskosten trägt der Käufer. HINWEISE: Alle Angaben sind ohne Gewähr und basieren ausschließlich auf Informationen, die uns von unserem Auftraggeber übermittelt wurden. Wir übernehmen keine Gewähr für die Vollständigkeit, Richtigkeit und Aktualität dieser Angaben. Zwischenverkauf bleibt vorbehalten. Sollte das von uns nachgewiesene Objekt bereits bekannt sein, teilen Sie uns dieses bitte unverzüglich mit. Die Weitergabe dieses Exposees an Dritte ohne unsere Zustimmung löst gegebenenfalls Courtage- bzw. Schadensersatzansprüche aus. Im Übrigen gelten unsere Allgemeinen Geschäftsbedingungen. Wir stehen Ihnen mit weiteren Informationen zum Objekt und zum Eigentümer sowie für Besichtigungen gern zur Verfügung. Heizungsart: Heizkoerper

Weitere Services

Lust auf eine Besichtigung?
Eine Frage zur Immobilie?
Nachricht hinzufügen
Mit der Nutzung der oben angegebenen Telefonnummer oder durch Klicken auf „Kontaktieren“ akzeptierst Du die Allgemeinen Nutzungsbedingungen, denen Du jederzeit widersprechen kannst. Weitere Informationen zum Datenschutz

Über den Anbieter

Lange Straße 9, 18055 Rostock
partner badge
Partnerschaft
Frau Jana Blaschka
Frau Jana BlaschkaDein Kontakt
Keine Telefonnummer hinterlegt
Keine Telefonnummer hinterlegt
Online-ID: 2n4fy55
Referenznummer: W-04775N
Engel & Völkers Rostock, Warnemünde & Waren
title
Engel & Völkers Rostock, Warnemünde & Waren
Bewertung: 4 von 5 Sternen
Nachricht hinzufügen
Mit der Nutzung der oben angegebenen Telefonnummer oder durch Klicken auf „Kontaktieren“ akzeptierst Du die Allgemeinen Nutzungsbedingungen, denen Du jederzeit widersprechen kannst. Weitere Informationen zum Datenschutz
MediumRectangleTop
MediumRectangleBottom
MediumRectangleTop
Wie zufrieden bist du mit dieser Seite (nicht mit der Immobilie selbst)?