Version: 8.25.1Navigation überspringen
1.300.000 €
14 Zimmer  •  500 m²  •  450.000 m² Grundstück
Immowelt logo

Bauernhaus zum Kauf
1300000 €
2.600 €/m²
14 Zimmer  •  500 m²  •  450.000 m² Grundstück

Semproniano - Landgut mit 45 Hektar in herrlicher Panoramalage, sehr gepflegt | Immobilie Toskana

Antikes Bauernhaus aus dem 18.Jh., restauriert 2008, 45 Hektar Land, Schwimmbad, 8 Hektar umzäunter Park rund um das Haus, Nebengebäude 60 m², Panoramablick bis zum Meer.

Das Bauernhaus liegt auf einem Hügel in der Maremma mit einem 360° offenen Panorama und Blick bis zum Meer.

Insgesamt verfügt das Bauernhaus über 8 Schlafzimmer und 7 Bäder und ist derzeit in 5 unabhängige Wohnungen aufgeteilt, die mit wenigen Eingriffen zu einer einzigen Wohneinheit oder beliebig kombiniert werden können.

Zusätzlich zu den Kochnischen und Wohnzimmern in jeder der 5 Wohnungen verfügt das Haus über eine geräumige Küche und 2 weitere Wohnzimmer.

Die Außenanlagen bieten Veranden, zwei Schuppen für Werkzeuge, 2 Zwinger, einen Hühnerstall mit 60 m², einen Holzbackofen und einen Pool mit 10x4 Meter

Der Garten rund um das Haus ist sehr gepflegt und mit einer automatischen Bewässerung ausgestattet, eine Zisterne steht ebenfalls zur Verfügung.

Das Land mit 45 Hektar besteht aus ca. 18 Hektar Ackerland und 27 Hektar Wald.

Es gibt 70 Olivenbäume und viele Obstbäume, während der Saison können Sie auch Steinpilze und Trüffel finden.

Das Grundstück grenzt an einen Naturpark und den Fluss Albegna und liegt
Höhe 450m über NN.

Mehr Informationen und Grundrisse erhalten Sie gerne auf Anfrage.

Weitere und ähnliche Angebote finden Sie auf unserer Homepage www.italien-hauskauf.de

Merkmale

  • 450.000 m² Grundstück
  • Swimmingpool

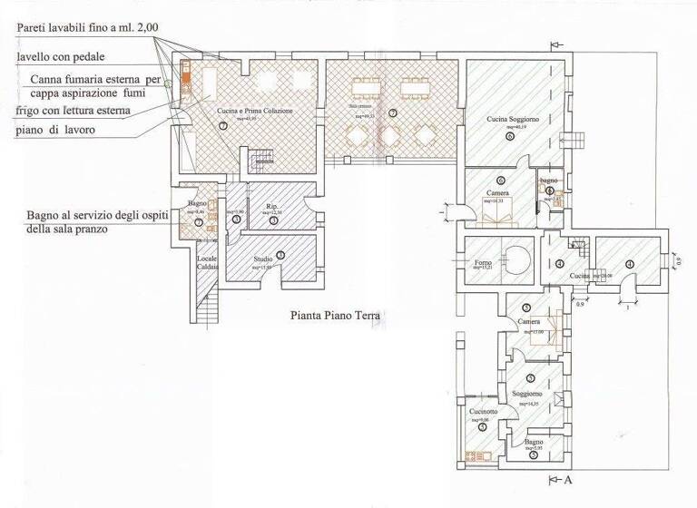
Grundrisse

Grundrisse
1 / 2

Realisiere Dein Projekt

Bausubstanz und Energie

Möchtest du Details zum Energieverbrauch?info_energy_calculation-icon
  • Zustand der ImmobilieGepflegt
Immowelt logo

Preisdetails

Kaufpreis
1300000 €
2.600 €/m²
Provision für Käufer
f.d. Käufer 3,66 % inkl. MwSt. inkl. MwSt.

Lage

address-icon
PanoramablickSemproniano (58055)
Semproniano, Grosseto, Toskana.

Entfernungen:

Die nächstgelegenen Orte mit allen Dienstleistungen sind Saturnia und Semproniano in ca. 7 km Entfernung.

Das Tufi-Gebiet von Sorano, Sovana und Pitigliano 30 bis 40 km.

Tyrrhenisches Meer 50 km,
Flughafen Rom 160 km,
Pisa 200 km.

Weitere Informationen

Stichworte Anzahl der Schlafzimmer: 8, Anzahl der Badezimmer: 7

Weitere Services

Lust auf eine Besichtigung?
Eine Frage zur Immobilie?
Nachricht hinzufügen
Mit der Nutzung der oben angegebenen Telefonnummer oder durch Klicken auf „Kontaktieren“ akzeptierst Du die Allgemeinen Nutzungsbedingungen, denen Du jederzeit widersprechen kannst. Weitere Informationen zum Datenschutz

Über den Anbieter

Tal 44, 80331 München
partner badge
10 Jahre Partnerschaft
Frau Nicole Siedersberger-KingDein Kontakt
Online-ID: 26142UHZSK5V
Referenznummer: IT-266T-KA
Italien Hauskauf
Italien Hauskauf
Bewertung: 5 von 5 Sternen
Nachricht hinzufügen
Mit der Nutzung der oben angegebenen Telefonnummer oder durch Klicken auf „Kontaktieren“ akzeptierst Du die Allgemeinen Nutzungsbedingungen, denen Du jederzeit widersprechen kannst. Weitere Informationen zum Datenschutz
Wie zufrieden bist du mit dieser Seite (nicht mit der Immobilie selbst)?