
Finest Properties Hannover GmbH
Herr Christopher Grein
+49 ···
Nr. anzeigenPreise & Kosten
Provision für Käufer
3,57 % inkl. MwSt.
Lage
Dieses moderne Reihenendhaus befindet sich in einer begehrten Wohnlage von Wennigsen (Deister) - einer charmanten Gemeinde am Rande von Hannover. Die Umgebung zeichnet sich durch ihre ruhige, grüne Atmosphäre aus und bietet gleichzeitig eine hervorragende Anbindung an das städtische Leben.
Die Wohngegend ist geprägt von...
Das Haus
Kategorie
Reihenendhaus
Baujahr
2021
Bezug
01.11.2026
Energie & Heizung
Warum sehe ich diese Anzeige? – Du siehst diese Anzeige basierend auf Ihrer Navigation auf unserer Website und den Suchkriterien, die du verwendet hast.
Energieausweistyp
Bedarfsausweis
Gebäudetyp
Wohngebäude
Wesentliche Energieträger
Fernwärme
Gültigkeit
16.11.2025 bis 15.11.2035
Effizienzklasse
B
Endenergiebedarf
70,00 kWh/(m²·a)
Weitere Energiedaten
Energieträger
Fernwärme
Heizungsart
Fußbodenheizung
Details
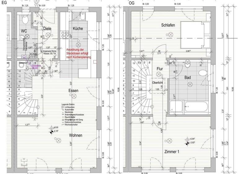
Objektbeschreibung
In begehrter Wohnlage von Wennigsen (Deister) bietet dieses moderne Reihenendhaus ein neuwertiges und komfortables Wohnumfeld. Das 2021 erbaute Haus liegt in einer ruhigen Anliegerstraße eines jungen Neubaugebiets, umgeben von Einfamilienhäusern und modernen Mehrfamilienhäusern. Der ÖPNV ist bequem fußläufig...
Ausstattung
- Fußbodenheizung
- Einbauküche gegen Abstand
- Parkett-/Fliesenböden
- Bodentiefe Fenster
- Tageslichtbad mit bodentiefer, großer Dusche
- Doppelwaschtisch
- Gäste-WC
- Lichtkuppel im Dach
- Elektrische Außenjalousien
- Belüftungssystem
- Carport
- Fernwärme
Preisinformation
1 Carportplatz
Weitere Informationen
Sonstiges
Für nähere Informationen zu diesem Objekt steht Ihnen Herr Grein unter der Mobilfunknummer 0172-6743140 gerne zur Verfügung. Um eine Verzögerung bei der Versendung des Exposés zu vermeiden, bitten wir Sie bei Ihrer Anfrage, Ihre vollständige Adresse, Telefonnummer sowie Ihre E-Mail-Adresse zu...
Anbieter der Immobilie
Finest Properties Hannover GmbH
Annenstraße 1, 30171 Hannover
Online-ID: 2mssr5z
Referenznummer: KHV_513
Finde Angebote wie dieses
Hier geht es zu unserem Impressum, den Allgemeinen Geschäftsbedingungen, den Hinweisen zum Datenschutz und nutzungsbasierter Online-Werbung.