RESIDENZA AMBRA AM ARCO DELLA GINESTRA - NEUES PRESTIGEOBJEKT IN LIGNANO
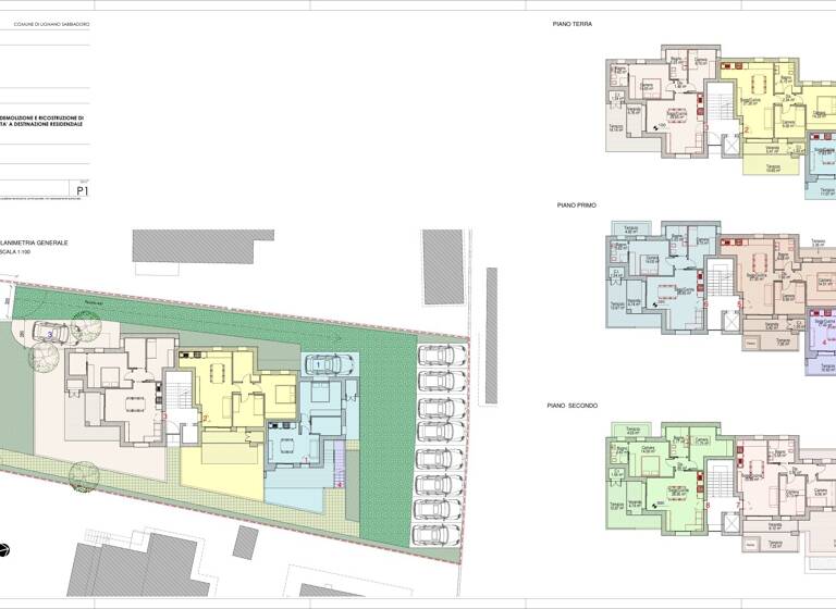
Ein neues Prestigeprojekt in Lignano Pineta ! Dieses Gebäude im Herzen von Lignano Pineta, umgeben von viel Grün in einer ruhigen Gegend, wird durch Abriss eines Altbestandes und Neuerrichtung auf einer Fläche von ca. 1000 m² entwickelt. Der neue Wohnkomplex besteht aus 8 Wohneinheiten, die nach den höchsten Qualitäts- und Ausstattungsstandards errichtet werden, um um die Bedürfnisse einer immer anspruchsvolleren Kundschaft voll und ganz zu erfüllen. Die Wohnungstypen sind Folgende: Zweizimmerwohnung mit ca. 55/60 m2 - Dreizimmerwohnung mit 1-2 Bädern mit 95/105 m2 - Vierzimmer-Dachgeschosswohnung mit 3 Doppelschlafzimmern und 2 Badezimmer. Jede Einheit wird bis ins kleinste Detail sehr hochwertig ausgestattet und verfügt über einen bewohnbaren Terrassenbereich, abschließbare Veranden, großes Badezimmer mit Fenster, Fußbodenheizung, Klimaanlage, Gartenflächen im Erdgeschoss, überdachten Parkplätzen und Kellerabteil.
Großes Augenmerk wird auf die Energieeffizienz des Gebäudes in der Höchstklasse A4 mit Photovoltaik, schallisolierten Umgebungen und auf die Qualität der Ausführung gelegt. Der angezeigte Preis bezieht sich nur auf eine der verschiedenen, verfügbaren Wohneinheiten. Es besteht die Möglichkeit des Sisma-Bonus-Steuerabzuges !
Ihr italienisches Traumdomizil wartet: Entdecken Sie viele weitere Angebote auf unserer Webseite - https://www.immoi.at/
Hinweis gemäß Energieausweisvorlagegesetz: Ein Energieausweis wurde vom Eigentümer bzw. Verkäufer, nach unserer Aufklärung über die generell geltende Vorlagepflicht, sowie Aufforderung zu seiner Erstellung noch nicht vorgelegt. Daher gilt zumindest eine dem Alter und der Art des Gebäudes entsprechende Gesamtenergieeffizienz als vereinbart. Wir übernehmen keinerlei Gewähr oder Haftung für die tatsächliche Energieeffizienz der angebotenen Immobilie.
Der Vermittler ist als Doppelmakler tätig.
Merkmale
Terrasse
Grundrisse
Grundrisse
1 / 1
Realisiere Dein Projekt
Bausubstanz und Energie
Der Anbieter hat keine Informationen zum Energieverbrauch bereit gestellt.
Baujahr2023
Zustand der ImmobilieNeubau
HeizungsartFußbodenheizung
Preisdetails
Kaufpreis
380000 €380.000 €
3.619,05 €/m²
Provision für Käufer
Bitte beachte, das Angebot kann bei Vertragsabschluss die Zahlung einer Provision beinhalten. Weitere Informationen erhältst Du vom Anbieter.