Version: 8.26.0Navigation überspringen
650.000 €
11 Zimmer  •  258 m²  •  736 m² Grundstück
Immowelt logo

Mehrfamilienhaus zum Kauf
650000 €
2.519 €/m²
11 Zimmer  •  258 m²  •  736 m² Grundstück

Solide, großzügig und ruhig gelegen.

Dieses gepflegte Zweifamilienhaus befindet sich in ruhiger Wohnlage von Gütersloh-Avenwedde und bietet vielseitige Nutzungsmöglichkeiten - ideal für Familien, Mehrgenerationenwohnen oder als Kombination aus Eigennutzung und Vermietung.

Das Haus mit 238m² ist zur Hälfte unterkellert und bietet somit zusätzliche praktische Nutz- und Abstellflächen. Eine Garage steht ebenfalls zur Verfügung und ergänzt das Platzangebot.

Die Erdgeschosswohnung überzeugt durch eine moderne und komfortable Ausstattung. In der gesamten Wohnung sorgen Fliesenböden mit Fußbodenheizung für ein angenehmes Wohnklima. Neue Türen und Fenster unterstreichen den gepflegten Zustand der Immobilie.

Das Herzstück der Wohnung bildet der großzügige Wohnbereich mit Kamin, der besonders in der kühleren Jahreszeit für eine gemütliche Atmosphäre sorgt. Die offene und moderne Küche ist harmonisch in den Wohnbereich integriert und bietet direkten Zugang zu einer von zwei Terrassen, die zu entspannten Stunden im Freien einladen. Ergänzt wird das Raumangebot durch ein modernes Duschbad sowie ein separates Gäste-WC, was zusätzlichen Komfort für Bewohner und Gäste bietet.

Die Wohnung im Dachgeschoss ist von der Grundfläche identisch, aber anders aufgeteilt als unten.

Dank der ruhigen Lage in einem gewachsenen Wohngebiet von Avenwedde profitieren Sie von einer angenehmen Wohnatmosphäre bei gleichzeitig guter Anbindung an die Infrastruktur von Gütersloh.

Diese komplett vermietete Immobilie bietet viel Potenzial und eignet sich ideal für Käufer, die großzügiges Wohnen in ruhiger Lage zu schätzen wissen oder ihr Kapital richtig anlegen wollen.

Merkmale

  • Bezug: nach Absprache
  • vermietet
  • 736 m² Grundstück
  • Keller
  • offener Kamin
  • Terrasse
  • Garage
  • Kabelanschluss
... auf einen Blick:

. ruhige Wohnlage
. 2 Terrassen
. Garage
. großer Teilkeller
. Fliesenboden im Erdgeschoss
. Kamin im Wohnzimmer

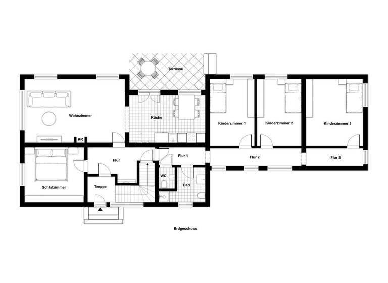
Grundrisse

Grundrisse
1 / 3

Bausubstanz und Energie

Energieausweis

F
  • Baujahr1966
  • HeizungsartFußbodenheizung
  • EnergieträgerGas
Immowelt logo

Preisdetails

Kaufpreis
650000 €
2.519,38 €/m²
Provision für Käufer
3,57 % inkl. der gesetz. MwSt.
Weitere Preisinformationen
1 Garagenstellplatz
Geschätzte Gesamtkosten
728.455 €1
Kaufpreis
650.000 €
Notarkosten (1,5%)
9.750 €
Grunderwerbsteuer (6,5%)
42.250 €
Provision für Käufer (3,57%)
23.205 €
Grundbucheintrag (0,5%)
3.250 €
1Der angezeigte Wert ist eine automatisch berechnete Schätzung von immowelt.
2Bei den Angaben handelt es sich um ortsübliche Werte. Individuelle Kosten können abweichen.

Lage

address-icon
InnenstadtGütersloh (33335)
Der Anbieter hat die genaue Adresse nicht freigegeben
Die Immobilie befindet sich in einer ruhigen und gewachsenen Wohnlage im beliebten Gütersloher Stadtgebiet. Die Umgebung ist geprägt von gepflegten Einfamilienhäusern, viel Grün und einer angenehmen Nachbarschaft. Einkaufsmöglichkeiten, Schulen, Kindergärten sowie Ärzte sind in wenigen Minuten erreichbar. Auch die Gütersloher Innenstadt ist schnell zu erreichen und bietet zahlreiche Restaurants, Cafés und Freizeitmöglichkeiten.

Die gute Verkehrsanbindung ermöglicht zudem eine schnelle Erreichbarkeit der umliegenden Städte sowie der Autobahn. Eine attraktive Lage für Familien, Paare und alle, die ruhiges Wohnen mit guter Infrastruktur verbinden möchten.

Weitere Informationen

Sonstiges Konnten wir Ihr Interesse wecken? Wir freuen uns über Ihre Kontaktaufnahme! Einfach unter "Anbieter kontaktieren" klicken. Bitte geben Sie stets Ihre vollständigen Daten an, insbesondere Name, Anschrift und Telefonnummer, sodass wir Sie für den Exposéversand und die Planung der Besichtigungstermine berücksichtigen können.
Anfragen ohne Ihre vollständigen Daten werden nicht bearbeitet.

Da wir die Termine für eine Besichtigung mit größter Sorgfalt planen, bitten wir um Verständnis, dass Termine ausschließlich per E-Mail vereinbart werden können. Um fair und gerecht gegenüber jedem unserer Interessenten zu sein, ist dies unumgänglich.
Durch Ihre Anfrage über dieses Immobilienportal sind Sie automatisch auf unserer exklusiven Interessentenliste, sodass wir Sie zu unseren Besichtigungsterminen einladen können.

Die Objektbeschreibung beruht ganz oder zum Teil auf Angaben des Eigentümers. Für die Richtigkeit oder Vollständigkeit übernehmen wir keine Gewähr. Stichworte Nutzfläche: 79,00 m², Anzahl der Schlafzimmer: 6, Anzahl der Badezimmer: 2, Anzahl der separaten WCs: 1, Anzahl Terrassen: 2, 1 Etagen, modernisiert

Weitere Services

Lust auf eine Besichtigung?
Eine Frage zur Immobilie?
Nachricht hinzufügen
Mit der Nutzung der oben angegebenen Telefonnummer oder durch Klicken auf „Kontaktieren“ akzeptierst Du die Allgemeinen Nutzungsbedingungen, denen Du jederzeit widersprechen kannst. Weitere Informationen zum Datenschutz

Über den Anbieter

Barkeystraße 30, 33330 Gütersloh
partner badge
Partnerschaft
Herr Marcel Liebetrau
Herr Marcel LiebetrauDein Kontakt
Online-ID: 26QNIDYTPPQY
Referenznummer: 226/26
Wie zufrieden bist du mit dieser Seite (nicht mit der Immobilie selbst)?