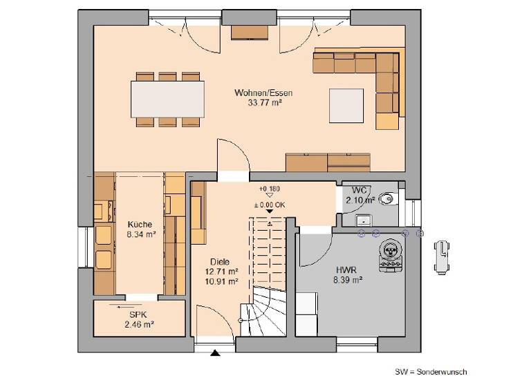
Wohngefühl pur! Die Stadtvilla begeistert die gesamte Nachbarschaft und die stolzen Bewohner fühlen sich wohl. Der großzügige Wohnbereich mit Couch und TV geht über in den Essbereich. Von hier gelangen Sie in die Küche mit zwei Zeilen. Perfekt gemacht wird der Stauraum mit einer angrenzenden Speisekammer. Zum Erdgeschoss gehören auch ein Hauswirtschaftraum und ein Gäste-WC.
Das Obergeschoss des Architektenhauses erreichen Sie über die Treppe. Diese führt in zwei Kinderzimmer, ein Elternschlafzimmer und das geräumige Familienbad.
Dieses Haus wird nach Ihren individuellen Wünschen geplant und ausgestattet!
+ Schlüsselfertiges Massivhaus im Sinne der Ausstattungsbeschreibung "Easy" + Inklusive Bodenplatte
Beste Markenausstattung in jedem Kern-Haus:
+ Zimmermannsmäßiger Dachstuhl aus Konstruktionsvollholz + Dacheindeckung mit Betondachsteinen von Braas + Hochwertiger Kunstharz-Außenputz für eine langlebige Fassade + Vollständige Badausstattung von Villeroy & Boch mit Badewanne und flacher Duschwanne + Fliesen von Villeroy & Boch in Bad und WC + Haustür mit 3-fach-Sicherheitsverriegelung + Erstklassige Innentüren der Marke Herholz + Fenster mit 3-Scheiben-Wärmeschutzverglasung und Rollläden + Stahl-Holz-Treppe mit individueller Farbgestaltungsmöglichkeit + Elektroausstattung inklusive Klingelanlage + Rauchmelder für Ihre Sicherheit + Alle Leistungen aus einer Hand + Alle Planungs- und Architektenleistungen + Einsatz regionaler Handwerksbetriebe + Individuelle Anpassung auf Ihre Bedürfnisse + Auf Wunsch mit Keller erhältlich + Auf Wunsch mit weiteren Energietechniken erhältlich
Grundrisse
Grundrisse
1 / 2
Realisiere Dein Projekt
Bausubstanz und Energie
Energieausweis
Der Anbieter hat keine Daten zum Energieausweis hinterlegt.
Baujahr2025
Zustand der ImmobilieNeubau, Projektiert
HeizungsartZentralheizung: Fußbodenheizung
Preisdetails
Kaufpreis
374900 €374.900 €
2.861,83 €/m²
Provision für Käufer
provisionsfrei
Geschätzte Gesamtkosten
401.144 €1
Kaufpreis
374.900 €
Kaufnebenkosten
26.244 €
2
Notarkosten (1,5%)
5.624 €
Grunderwerbsteuer (5%)
18.745 €
Grundbucheintrag (0,5%)
1.875 €
1Der angezeigte Wert ist eine automatisch berechnete Schätzung von immowelt.
2Bei den Angaben handelt es sich um ortsübliche Werte. Individuelle Kosten können abweichen.
Lage
Gotha (99867)
Der Anbieter hat die genaue Adresse nicht freigegeben
Gotha ist nicht nur eine der geschichtsträchtigsten Städte in Deutschland, sondern auch ein moderner Wirtschafts-, Wohn- und Lebensstandort. Wenn Sie also noch auf der Suche sind nach einem Mittelpunkt Ihres Lebens, dann sind Sie auf dieser Seite ganz richtig. Von Ihrem neuen Zuhause ist es nur ein Katzensprung in das nächste Abenteuer, denn in lärmdämmenden Bäumen und Büschen eingebettet liegt der gut angebundene Gothaer Bahnhof. In die andere Richtung kommen auch Kinder und Natur- und Kulturliebhaber komplett auf ihre Kosten: In nur 500m Entfernung liegt der Naturlehrpfad "Kleiner Seeberg". Etwas unterhalb befindet sich dann auch eines der örtlichen Highlights, der Tierpark mit Streichelgehege, der jährlich viele Kinder und Erwachsene auch von außerhalb begeistert. Mit Bus und Bahn erreichen Sie innerhalb weniger Minuten die ansehnliche Innenstadt. Kulturträchtig und modern - so lässt sich das innerste Leben Gothas beschreiben. Die Stadt verfügt über einige Kindertagesstätten und alle Schulformen sind vertreten. Gotha kann ein Ort für eine ganze Lebenszeit sein.
Weitere Informationen
Sonstiges
Kern-Haus
Kern-Haus baut individuelle und massive Architektenhäuser zu einem attraktiven Preis-Leistungs-Verhältnis - und das bereits mit einer Erfahrung seit 1980.
Maximale Sicherheit bei Kern-Haus: + 10 Jahre Gewährleistung auf die wesentlichen Bauleistungen + Bis zu 24 Monate Festpreisbindung + 50 Jahre Gewährleistung auf das DuoTherm-Mauerwerk + Verbindliche Bauzeit + Zahlung nach Baufortschritt
Preise und Auszeichnungen von Kern-Haus: - German Brand Award in den Jahren 2018 und 2021 - Hausbau Design Award: Sieger in den Jahren 2017, 2018, 2019, 2020, 2021, 2022 und 2023 - Deutscher Traumhauspreis: Sieger in den Jahren 2014, 2015, 2016 und 2018 und Silber 2017, 2020 und 2021 - Mittelstandspreis "Top 100" in den Jahren 2014, 2016, 2018, 2020 und 2022 - German Design Award im Jahr 2018
Weitere Informationen
Der gezeigte Preis versteht sich inklusive Grundstück und exklusive der Baunebenkosten.
Ihre Ansprechpartnerin Katrin Klein vom Kern-Haus-Team in Erfurt freut sich darauf Ihre Fragen zu beantworten. Jetzt anrufen: 0361 / 551450
Kern-Haus in Erfurt - https://www.kern-haus.de/erfurt/
Weitere Architektenhäuser - https://www.kern-haus.de/haeuser
Stichworte
Stellplatz vorhanden, Anzahl der Schlafzimmer: 3, Anzahl der separaten WCs: 1