Version: 8.24.0Navigation überspringen
469.000 €
10 Zimmer  •  190 m²  •  2.500 m² Grundstück
Immowelt logo

Einfamilienhaus zum Kauf
469000 €
2.468 €/m²
10 Zimmer  •  190 m²  •  2.500 m² Grundstück

Gepflegtes Einfamilienhaus in idyllischer Feldrandlage

Dieses großzügige Anwesen präsentiert sich als wahres Juwel für Liebhaber von Raum, Komfort und Naturverbundenheit. Auf einem weitläufigen Grundstück erhebt sich ein gepflegtes Wohnhaus mit insgesamt zehn Zimmern, das mit seiner zeitlosen Architektur und der harmonischen Einbettung in die umgebende Landschaft sofort beeindruckt.

Bereits beim Betreten des Anwesens spürt man die besondere Atmosphäre - der parkähnlich angelegte Garten mit altem Baumbestand bietet nicht nur Privatsphäre, sondern auch eine malerische Kulisse zu jeder Jahreszeit. Das Grundstück grenzt unmittelbar an Felder, was den Blick in die Weite und ein außergewöhnlich ruhiges Wohnerlebnis ermöglicht.

Das Haus selbst überzeugt durch seine durchdachte Raumaufteilung und den sehr gepflegten Zustand. Vier helle Schlafzimmer bieten reichlich Platz für Familie, Gäste oder ein Homeoffice. Zwei stilvolle Badezimmer sowie ein separates Gäste-WC sorgen für hohen Wohnkomfort. Besonders angenehm ist die Fußbodenheizung, die im gesamten Haus für wohlige Wärme sorgt. Elektrische Rollläden und teilweise edle Parkettböden unterstreichen die hochwertige Ausstattung.

Das großzügige Wohnzimmer öffnet sich zur sonnigen Terrasse, von der aus sich der Blick in den weitläufigen Garten genießen lässt - perfekt für gesellige Stunden, Grillabende oder entspannte Momente im Grünen. Vom Garten aus ist auch die separate Souterrain-Wohnung zugänglich, die sich ideal als Gästebereich, Büro oder Einliegerwohnung nutzen lässt.

Abgerundet wird das Angebot durch zwei Carport-Stellplätze und eine mögliche Ausbaureserve im Dachboden, die zusätzlichen Raum für individuelle Ideen bietet.

Diese Immobilie vereint Großzügigkeit, gepflegtes Ambiente und eine Lage von unvergleichlicher Ruhe - ein Zuhause für Menschen, die das Besondere suchen und den Einklang von Natur und Wohnkomfort zu schätzen wissen.

Merkmale

  • Bezug: nach Absprache
  • 2.500 m² Grundstück
  • Keller
  • 5 Stellplätze: 2 Carports, 3 Außen-Stellplätze
  • Gäste-WC
  • Balkon
  • Garten
  • Terrasse

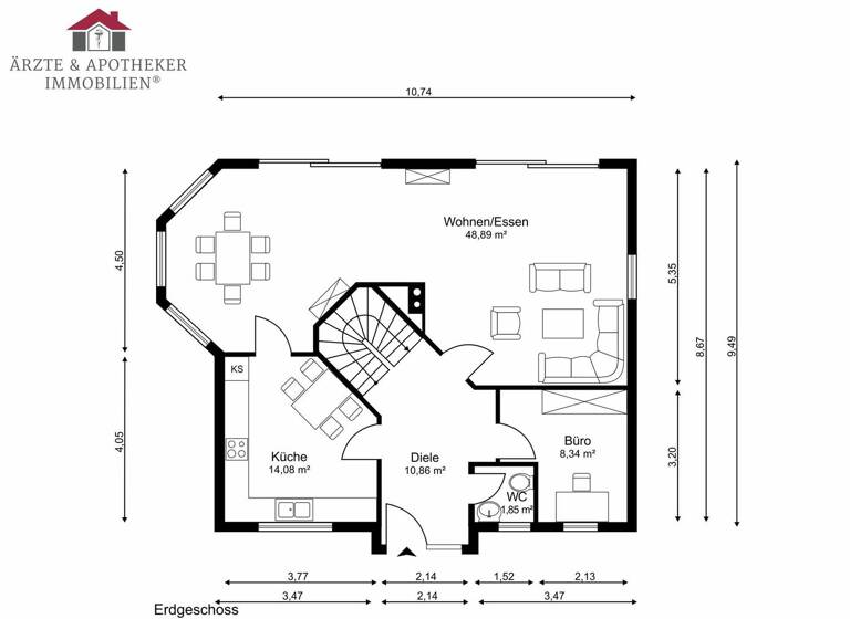
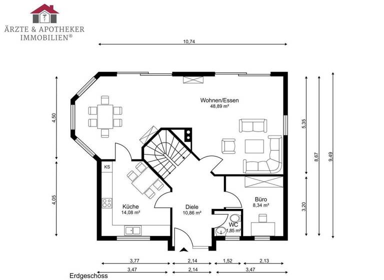
Grundrisse

Grundrisse
1 / 3

Virtueller Rundgang

3D tour

Realisiere Dein Projekt

Bausubstanz und Energie

Energieausweis

D
  • Baujahr1999
  • Zustand der ImmobilieGepflegt
  • EnergieträgerÖl
Immowelt logo

Preisdetails

Kaufpreis
469000 €
2.468,42 €/m²
Provision für Käufer
3,57 % inkl. MwSt.
Weitere Preisinformationen
2 Carportplätze
3 Stellplätze
Geschätzte Gesamtkosten
525.608 €1
Kaufpreis
469.000 €
Notarkosten (1,5%)
7.035 €
Grunderwerbsteuer (6,5%)
30.485 €
Provision für Käufer (3,57%)
16.743 €
Grundbucheintrag (0,5%)
2.345 €
1Der angezeigte Wert ist eine automatisch berechnete Schätzung von immowelt.
2Bei den Angaben handelt es sich um ortsübliche Werte. Individuelle Kosten können abweichen.

Lage

address-icon
Gorspen-VahlsenPetershagen / Gorspen-Vahlsen (32469)
Der Anbieter hat die genaue Adresse nicht freigegeben
In einer ruhigen, gewachsenen Wohnsiedlung am Rande von Petershagen befindet sich dieses charmante Zuhause in besonders idyllischer Lage. Umgeben von gepflegten Ein- und Zweifamilienhäusern, Feldern und grünen Weiten, vermittelt das Umfeld sofort ein Gefühl von Geborgenheit und ländlicher Ruhe. Hier wohnt man fernab vom hektischen Stadtleben und genießt dennoch die Annehmlichkeiten einer gut entwickelten Infrastruktur.

Der nahegelegene Ortskern bietet alles, was man für den täglichen Bedarf benötigt - von Einkaufsmöglichkeiten über Bäckereien bis hin zu kleinen, familiengeführten Geschäften. Schulen, Kindergärten und medizinische Einrichtungen sind bequem erreichbar und machen die Lage ideal für Familien, Paare und Menschen, die eine ausgewogene Mischung aus Natur und Alltagskomfort suchen.

Die Umgebung lädt zu Spaziergängen und Radtouren durch die reizvolle Landschaft der Weserniederung ein. Weite Felder, kleine Wälder und der Flusslauf der Weser prägen das landschaftliche Bild und schaffen ein harmonisches, naturnahes Wohngefühl. Gleichzeitig ist die Verkehrsanbindung ausgezeichnet: Über die umliegenden Landstraßen und Bundeswege erreicht man die umliegenden Stadtzentren von Petershagen, Minden und Nienburg in kurzer Zeit.

Diese Lage vereint ländliche Idylle mit moderner Lebensqualität - ein idealer Ort für alle, die Ruhe, Natur und ein gepflegtes Wohnumfeld schätzen, ohne auf gute Erreichbarkeit und Nahversorgung verzichten zu wollen.

Weitere Informationen

Sonstiges Vielen Dank für Ihr Interesse an der von uns angebotenen Immobilie.

Bitte haben Sie Verständnis dafür, dass wir unseren Auftraggebern Diskretion zugesagt haben und Sie daher um die Angabe Ihrer vollständigen Kontaktdaten inkl. Ihrer Telefonnummer bitten müssen.

Gern senden wir Ihnen anschließend ein Exposé zu.
Folgen Sie uns auf Instagram unter @auaimmo! Erfahren Sie von neuen Objekten, wie z.B. von der "Immobilie der Woche" oder profitieren Sie von unseren Tipps und Tricks für Eigentümer und Suchende. Stichworte Nutzfläche: 100,00 m², Anzahl der Schlafzimmer: 4, Anzahl der Badezimmer: 2, Anzahl der separaten WCs: 1, Anzahl Balkone: 1, Anzahl Terrassen: 2 Sonstiges/Wohnen: Einliegerwohnung

Weitere Services

Lust auf eine Besichtigung?
Eine Frage zur Immobilie?
Nachricht hinzufügen
Mit der Nutzung der oben angegebenen Telefonnummer oder durch Klicken auf „Kontaktieren“ akzeptierst Du die Allgemeinen Nutzungsbedingungen, denen Du jederzeit widersprechen kannst. Weitere Informationen zum Datenschutz

Über den Anbieter

Lindenstr. 29, 21335 Lüneburg
partner badge
6 Jahre Partnerschaft
Frau Dagmar KönigDein Kontakt
Online-ID: 2nbya5p
Referenznummer: 252695-9
ÄRZTE & APOTHEKER IMMOBILIEN
ÄRZTE & APOTHEKER IMMOBILIEN
Bewertung: 4,5 von 5 Sternen
Nachricht hinzufügen
Mit der Nutzung der oben angegebenen Telefonnummer oder durch Klicken auf „Kontaktieren“ akzeptierst Du die Allgemeinen Nutzungsbedingungen, denen Du jederzeit widersprechen kannst. Weitere Informationen zum Datenschutz
Wie zufrieden bist du mit dieser Seite (nicht mit der Immobilie selbst)?