
Andreas Vogt - Bauplanung -Beratung - Verkauf - Immobilien
Herr Andreas Vogt
+49 ···
Nr. anzeigenPreise & Kosten
Provision für Käufer
provisionsfrei
Lage
Es handelt sich um ein sonniges, schönes Grundstück im Ortsteil Freihalden. Das Grundstück selbst hat ca. 632 m² zzgl. 50 % Anteil an der Zufahrt welcher ca. 80,5 m² entspricht.
Bahnhof (Augsburg - Ulm): ca. 800 m
Kindergarten ca. 250 m
Getränkemarkt / KFZ Werkstatt ca...
Das Haus
Kategorie
Einfamilienhaus
Baujahr
2025
Bezug
2025
Energie & Heizung
Warum sehe ich diese Anzeige? – Du siehst diese Anzeige basierend auf Ihrer Navigation auf unserer Website und den Suchkriterien, die du verwendet hast.
Weitere Energiedaten
Haustyp
Holzhaus
Heizungsart
Fußbodenheizung, Luft-/Wasser-Wärmepumpe
Details
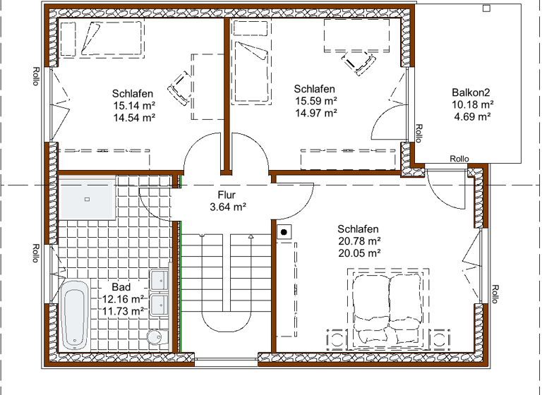
Objektbeschreibung
Bei dieser Planung handelt es sich um ein Holzhaus auf Bodenplatte. (Carport gegen Aufpreis)
Dieses Beispielhaus wurde folgendermaßen ausgestattet.
- Kombihaus (EG Ständerbauweise mit Putzfassade, OG Blockbau)
- Bodenplatte
- hochwertige Holz-/Alu Fenster mit Thermoplus 3-fach Verglasung,
- elektrische...
Weitere Informationen
Tiroler Holzhaus
Tradition in Perfektion. Wir setzten bewusst auf hochwertiges Handwerk. Jedes Tiroler Holzhaus wird ausschließlich nach den Bedürfnissen unserer Kunden gefertigt. Die hohe Ausführungsqualität jedes Tiroler Holzhauses garantiert ein wertbeständiges Objekt das auch noch den nachfolgenden Generationen viel...
Anbieter der Immobilie
Andreas Vogt - Bauplanung -Beratung - Verkauf - Immobilien
Bgm.-Bals-Str. 5, 86492 Egling a.d.Paar
Online-ID: 2frv55e
Finde Angebote wie dieses
Hier geht es zu unserem Impressum, den Allgemeinen Geschäftsbedingungen, den Hinweisen zum Datenschutz und nutzungsbasierter Online-Werbung.