Version: 8.24.0Navigation überspringen
ohne-makler.net - Immobilien selbst vermarkten
349.000 €
3 Zimmer  •  87 m²  •  3. Geschoss

Wohnung zum Kauf • provisionsfrei
349000 €
4.011 €/m²
3 Zimmer  •  87 m²  •  3. Geschoss

Altbauwohnung Jakomini

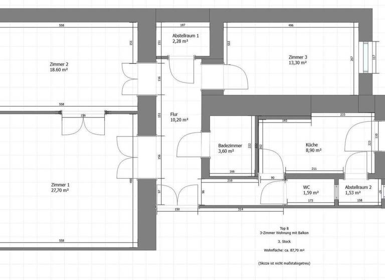
Jedes der 3 Zimmer ist getrennt begehbar, die beiden großen Räume sind zusätzlich mit einer Doppeltüre verbunden. Es gibt 2 Abstellräume, 1 Badezimmer und einen kleinen Wirtschaftsbalkon mit Blick auf den Garten im Innenhof.
Die Wohnung ist sehr hell, da im 3. Stock gelegen. Das darüberliegende Dachgeschoß wurde saniert und neu ausgebaut.
Der Wohnung ist ein Kellerabteil zugewiesen, es besteht die Möglichkeit der Mitbenützung eines gemeinsamen kleine Gartens im Innenhof.

Merkmale

  • Bezug: sofort
  • 3. Geschoss
  • Kelleranteil
  • Balkon
  • Bodenbelag: Parkett, Laminat
Balkon, Keller, Parkett, Laminat

Bemerkungen:
Die Wohnung ist teilmöbliert, es befinden sich derzeit Elektroöfen in den Wohnräumen. Im Haus besteht sowohl die Möglichkeit an das bestehende Gas- oder Fernwärmenetz anzuschließen.

Grundrisse

Grundrisse
1 / 2

Realisiere Dein Projekt

Bausubstanz und Energie

Der Anbieter hat keine Informationen zum Energieverbrauch bereit gestellt.
  • Zustand der Immobilierenovierungsbedürftig / sanierungsbedürftig
  • EnergieträgerElektro
MediumRectangleTop

Preisdetails

Kaufpreis
349000 €
4.011,49 €/m²
Provision für Käufer
provisionsfrei; keine Provision, courtagefrei

Lage

address-icon
Pestalozzistraße 28JakominiGraz (8010)
Die Wohnung befindet sich direkt hinter dem beliebten Augartenpark im sanierten Altbau in zentraler, ruhiger Lage. In wenigen Gehminuten erreicht man die Grazer Innenstadt, den Jakominiplatz sowie zahlreiche Geschäfte und Lokale.
Infrastruktur (im Umkreis von 5 km):
Apotheke, Lebensmittel-Discount, Allgemeinmediziner, Kindergarten, Grundschule, Hauptschule, Realschule, Gymnasium, Gesamtschule, Öffentliche Verkehrsmittel

Weitere Informationen

Sonstiges Heizungsart: Sonstiges (s. Text)
Energieträger: Strom
Energieausweis nicht vorhanden


ohne-makler (OM) ist weder Anbieter noch Vermittler der Immobilie. OM betreibt eine Plattform für Immobilieneigentümer, die unter anderem die gleichzeitige Veröffentlichung einzelner Inserate auf mehreren Immobilienportalen ermöglicht. Die Inhalte dieser Inserate werden ausschließlich von Dritten verantwortet. Für die Richtigkeit, Vollständigkeit oder Rechtmäßigkeit der Angaben übernimmt OM keine Haftung. Hinweise auf mögliche Rechtsverstöße können jederzeit gemeldet werden und werden nach Prüfung umgehend bearbeitet. Stichworte Nutzfläche: 87,00 m², Anzahl der Badezimmer: 1, Anzahl Balkone: 1, Bundesland: Steiermark

Weitere Services

Lust auf eine Besichtigung?
Eine Frage zur Immobilie?
Nachricht hinzufügen
Mit der Nutzung der oben angegebenen Telefonnummer oder durch Klicken auf „Kontaktieren“ akzeptierst Du die Allgemeinen Nutzungsbedingungen, denen Du jederzeit widersprechen kannst. Weitere Informationen zum Datenschutz

Über den Anbieter

Humboldtstr. 25 A, 21509 Glinde
partner badge
Partnerschaft
Privat vom EigentümerDein Kontakt
Keine Telefonnummer hinterlegt
Keine Telefonnummer hinterlegt
Online-ID: 2n42e5m
Referenznummer: 431327
ohne-makler.net - Immobilien selbst vermarkten
ohne-makler.net - Immobilien selbst vermarkten
Bewertung: 4 von 5 Sternen
Nachricht hinzufügen
Mit der Nutzung der oben angegebenen Telefonnummer oder durch Klicken auf „Kontaktieren“ akzeptierst Du die Allgemeinen Nutzungsbedingungen, denen Du jederzeit widersprechen kannst. Weitere Informationen zum Datenschutz
MediumRectangleTop
MediumRectangleBottom
MediumRectangleTop
Wie zufrieden bist du mit dieser Seite (nicht mit der Immobilie selbst)?