Version: 8.24.0Navigation ĂĽberspringen
210.000 €
2 Zimmer  â€˘  48,9 m²  â€˘  1. Geschoss
Immowelt logo

Wohnung zum Kauf - Erstbezug
210000 €
4.293 €/m²
2 Zimmer  â€˘  48,9 m²  â€˘  1. Geschoss

Heimat neu gedacht - moderne 2-Zimmer-Eigentumswohnungen im Herzen von Karsbach

Heimat neu gedacht - stilvoll, barrierefrei & zukunftsfähig

Im Herzen von Karsbach entsteht ein modernes Neubauprojekt mit sechs komfortablen Eigentumswohnungen.
Hier finden Senioren, die in ihrem vertrauten Umfeld bleiben möchten, ein barrierefreies
Zuhause fĂĽr ein neues Lebenskapitel. Gleichzeitig bietet das Projekt auch kleinen Familien
und Singles ein komfortables Wohnumfeld mit hoher Lebensqualität.

Das gesamte Gebäude wird energieeffizient und nachhaltig errichtet. Eine Wärmepumpenheizung
und zeitgemäße Wärmedämmung sorgen für niedrige Energiekosten und ein gutes Gefühl.

Dieses Bauvorhaben ist mehr als nur ein Ort zum Wohnen. Es ist ein Ort zum Bleiben. FĂĽr Menschen,
die ihre Wurzeln schätzen.

Merkmale

  • 1. Geschoss
  • Personenaufzug
  • AuĂźen-Stellplatz
  • Balkon

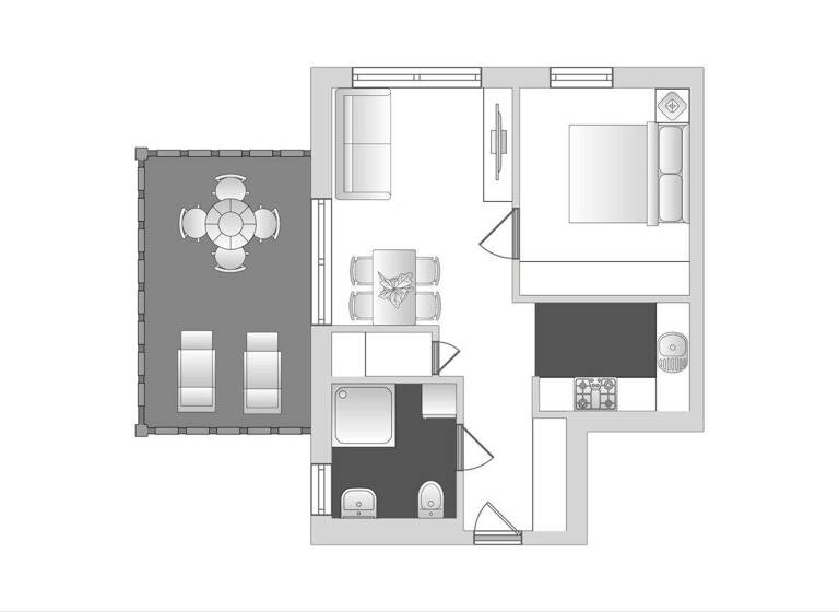
Grundrisse

Grundrisse
1 / 1

Realisiere Dein Projekt

Bausubstanz und Energie

Energieausweis

Ein Energieausweis ist für diesen Gebäudetyp nicht notwendig.
  • Baujahr2026
  • Zustand der ImmobilieErstbezug
  • HeizungsartFuĂźbodenheizung
  • EnergieträgerLuft-/Wasser-Wärmepumpe
Immowelt logo

Preisdetails

Kaufpreis
210000 €
4.292,72 €/m²
Preis pro Stellplatz
7500 €
Provision für Käufer
keine Käuferprovision!
Weitere Preisinformationen
1 Stellplatz, Miete: 7.500,00 EUR
Geschätzte Gesamtkosten
229.047 €1
Kaufpreis
210.000 €
Notarkosten (1,5%)
3.150 €
Grunderwerbsteuer (3,5%)
7.350 €
Provision für Käufer (3,57%)
7.497 €
Grundbucheintrag (0,5%)
1.050 €
1Der angezeigte Wert ist eine automatisch berechnete Schätzung von immowelt.
2Bei den Angaben handelt es sich um ortsübliche Werte. Individuelle Kosten können abweichen.

Lage

address-icon
Karsbach (97783)
Der Anbieter hat die genaue Adresse nicht freigegeben
Die charmante Gemeinde Karsbach, mit ca. 1.680 Einwohnern, liegt idyllisch im unterfränkischen Landkreis Main-Spessart, eingebettet in eine sanft hügelige Landschaft mit Feldern, Wiesen und kleinen Wäldern. Hier genießen Sie das ruhige Leben auf dem Land - und profitieren gleichzeitig von einer guten Anbindung an die umliegenden Städte.

Trotz der naturnahen Lage ist Karsbach bestens erreichbar: Über die nahegelegene B27 sowie die Autobahn A7 (Anschlussstelle Hammelburg oder Gramschatzer Wald) sind Würzburg, Schweinfurt oder Fulda schnell erreicht. Auch Karlstadt in ca. 13 km und Gemünden in ca. 8 km mit Bahnanschluss, weiterführenden Schulen und Einkaufsmöglichkeiten befinden sich in adäquater Entfernung. Der nächste Bahnhof liegt im benachbarten Gemünden am Main - mit direkter Verbindung nach Würzburg und Frankfurt.

Karsbach selbst bietet eine angenehme Infrastruktur für den Alltag: Ein Kindergarten mit liebevoller Betreuung ist vor Ort vorhanden, ebenso eine Bankfiliale, sowie ein reges Vereinsleben. Grundschüler besuchen die Grundschule in der Nachbargemeinde Gössenheim, ca. 2,7 km entfernt. Die umliegende Natur lädt zu ausgedehnten Spaziergängen, Fahrradtouren oder einfach nur zum Durchatmen ein.

Weitere Informationen

Sonstiges Wohnung 3 im 1. Obergeschoss:
- 2 Zimmer, ca. 48,92 m² Wohnfläche
- Wohnen/Essen/Kochen, Schlafen, Tageslichtbad mit Dusche und Waschmaschinenanschluss, Abstellraum
- 1 zusätzliches Kellerabteil im Erdgeschoss
- Balkon
-Es ist 1 Außenstellplatz für die Wohnung zu einem Preis von 7.500,- € vorgesehen. Stichworte Anzahl der Badezimmer: 1, Anzahl Balkone: 1, 3 Etagen

Weitere Services

Lust auf eine Besichtigung?
Eine Frage zur Immobilie?
Nachricht hinzufĂĽgen
Mit der Nutzung der oben angegebenen Telefonnummer oder durch Klicken auf „Kontaktieren“ akzeptierst Du die Allgemeinen Nutzungsbedingungen, denen Du jederzeit widersprechen kannst. Weitere Informationen zum Datenschutz

Ăśber den Anbieter

Rechtenbacher Str. 11, 97816 Lohr a. Main
partner badge
Partnerschaft
Frau Sophie MehrlichDein Kontakt
Online-ID: 2m22h53
Referenznummer: ID-1302_3
Raiffeisen Immobilien-Dienstleistungs GmbH
Raiffeisen Immobilien-Dienstleistungs GmbH
Bewertung: 4,6 von 5 Sternen
Nachricht hinzufĂĽgen
Mit der Nutzung der oben angegebenen Telefonnummer oder durch Klicken auf „Kontaktieren“ akzeptierst Du die Allgemeinen Nutzungsbedingungen, denen Du jederzeit widersprechen kannst. Weitere Informationen zum Datenschutz
Wie zufrieden bist du mit dieser Seite (nicht mit der Immobilie selbst)?