Dachgeschosswohnung mit Dachterrasse und Grünblick
Moderne Dachgeschosswohnung mit privater Dachterrasse in Wien-Hernals - Nachhaltig wohnen mit Weitblick
Im Herzen von Hernals - einem der gefragtesten Bezirke Wiens - entsteht das Neubauprojekt Ferchergasse mit insgesamt 30 hochwertigen Eigentumswohnungen. Die Lage überzeugt durch die Nähe zum Wienerwald ebenso wie zur Wiener Innenstadt und bietet damit urbanes Wohnen mit Erholungsfaktor.
Das Projekt steht für zukunftsorientiertes, nachhaltiges Wohnen: Eine Photovoltaikanlage am Dach und energieeffiziente Vollwärmeschutzfassade unterstreichen den Fokus auf Klimaschutz und zeitgemäße Architektur.
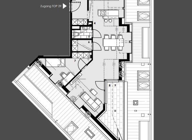
Highlights der Wohnung im Dachgeschoss:
- Helle Wohnküche mit integriertem Essbereich - Zwei Zimmer mit flexibler Nutzung - Modern ausgestattetes Badezimmer und separates WC - Praktischer Abstellraum - Loggia/Terrasse auf Wohnebene mit direktem Zugang - Private Dachterrasse im 3. Dachgeschoss mit Ausblick
Die Dachgeschosswohnung vereint intelligente Grundrissplanung mit hochwertigen Ausstattungsmerkmalen und punktet durch großzügige Freiflächen in ruhiger Lage. Ob als Eigenheim oder Investment - diese Immobilie erfüllt alle Ansprüche modernen Wohnens in Wien.
Merkmale
Bezug: sofort
2. Geschoss
Terrasse
Loggia
Diese hochwertig ausgestattete Eigentumswohnung im beliebten 17. Bezirk überzeugt durch durchdachte Planung, eine funktionale Raumaufteilung und langlebige Materialien - ideale Voraussetzungen für modernen Wohnkomfort in Wien.
Ausstattungshighlights der Wohnung: - Eichenparkett in allen Wohnräumen - Hochwertiges Feinsteinzeug in Bad und WC - Fußbodenheizung für angenehmes Raumklima - Fenster mit 3-fach-Isolierverglasung (außer Dachflächenfenster) - Waschmaschinenanschluss im Badezimmer - Eigenes Kellerabteil für zusätzlichen Stauraum
Weitere Vorteile der Wohnanlage: - Personenaufzug für barrierearmen Zugang - Energieeffiziente Photovoltaikanlage am Dach - Vollwärmeschutzfassade zur Reduktion der Heizkosten - Fahrrad- und Kinderwagenabstellräume für mehr Alltagstauglichkeit
Mit dieser Ausstattung bietet die Wohnung ein attraktives Gesamtpaket für alle, die modernes Wohnen mit Nachhaltigkeit und Komfort verbinden möchten - ideal für Eigennutzer oder Anleger in Wien-Hernals.
Grundrisse
Grundrisse
1 / 1
Virtueller Rundgang
Video
Realisiere Dein Projekt
Bausubstanz und Energie
Heizwärmebedarf (HWB)
A
Gesamtenergieeffizienz (fGEE)
Der Anbieter hat keine Daten zum Energieausweis hinterlegt.
Baujahr2022
Zustand der ImmobilieErstbezug
HeizungsartFußbodenheizung
EnergieträgerFernwärme
Preisdetails
Kaufpreis
765000 €765.000 €
9.075 €/m²
Provision für Käufer
3 % des Kaufpreises zzgl. 20% USt.
Lage
Wien (1170)
Der Anbieter hat die genaue Adresse nicht freigegeben
Die Wohnung befindet sich im 17. Bezirk Wiens in verkehrsgünstiger Lage. Die S45 sowie die Straßenbahnlinien 2 und 43 sind in wenigen Minuten erreichbar und bieten eine direkte Verbindung ins Stadtzentrum, zur Universität Wien und zum AKH.
Einkaufsmöglichkeiten, Apotheken, Schulen und Kindergärten befinden sich in direkter Umgebung und garantieren eine hervorragende Nahversorgung.
Naherholungsgebiete wie der Wienerwald, der Schwarzenbergpark oder das Kongressbad sind schnell erreichbar und bieten hohe Lebensqualität.
Die geplante U5-Anbindung macht die Lage zusätzlich zukunftssicher und steigert das Immobilienpotenzial nachhaltig.
Weitere Informationen
Sonstiges
Wir weisen darauf hin, dass unser Unternehmen mit der Vermarktung dieses und weiterer Projekte vom Auftraggeber beauftragt ist und wir daher verpflichtet sind, auf das dadurch gegebene "wirtschaftliche Naheverhältnis" hinzuweisen.
Stichworte
Freifläche: 38,44 m², Anzahl der Schlafzimmer: 2, Anzahl der Badezimmer: 1, Anzahl der separaten WCs: 1, Anzahl Terrassen: 1, Anzahl Loggias: 1, Balkon-Terrassen-Fläche: 29,09 m², Bundesland: Wien