Version: 8.24.0Navigation überspringen
174.000 €
5 Zimmer  •  120 m²  •  2.720 m² Grundstück
Immowelt logo

Doppelhaushälfte zum Kauf
174000 €
1.450 €/m²
5 Zimmer  •  120 m²  •  2.720 m² Grundstück

Geräumiges Reihenhaus in der Nähe des Stadtzent...

Eine gepflegte Doppelhaushälfte in Form von Asunto Oy, die auch für größere Familien an der Grenze von Pilkon-Käpykanka geeignet ist, nur etwa 3 km vom Joensuu-Markt entfernt. Die Lage ist ausgezeichnet: Eine Schule, ein Geschäft, eine Universität, ein Golfplatz sowie die vielfältigen Dienstleistungen und Outdoor-Aktivitäten des Stadtzentrums befinden sich alle in der Nähe.

Die Wohnung ist bezugsfertig und befindet sich durchgehend in einem sehr sauberen Zustand. Es wurde in verschiedenen Phasen aktualisiert, um den heutigen Wohnbedürfnissen gerecht zu werden, wodurch das Ensemble sorglos und modern wirkt.

Das Haus ist hell und funktionell eingerichtet und bietet vier Schlafzimmer sowie komfortable Wohnbereiche auf zwei Etagen. Ein Lagerkamin und eine Luftwärmepumpe erhöhen den Wohnkomfort und verbessern die Energieeffizienz. Die verglaste Terrasse dient als praktischer zusätzlicher Raum und bietet zum Beispiel eine hervorragende Kulisse für die Bewirtung von Sommergästen.

Stauräume sind außergewöhnlich reichlich vorhanden: drei begehbare Schränke, geräumige Schränke, ein warmer Bastelraum/Lagerraum und ein geteilter Schuppen neben der Garage. Für das Laden eines Elektroautos steht Strom zur Verfügung.

Das Objekt wurde am 22.1.2026 einer Tauglichkeitsprüfung unterzogen. Der Bericht ist beim Broker erhältlich.

Merkmale

  • 1 Geschoss
  • 2.720 m² Grundstück
  • Terrasse
  • Bad mit Dusche
  • Bodenbelag: Fliesen, Linoleum

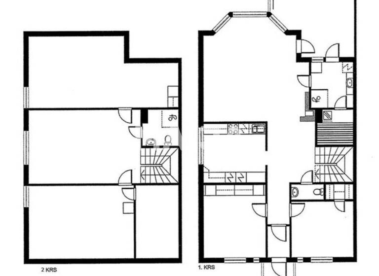
Grundrisse

Grundrisse
1 / 1

Realisiere Dein Projekt

Bausubstanz und Energie

Der Anbieter hat keine Informationen zum Energieverbrauch bereit gestellt.
  • Baujahr1985
  • HeizungsartOfen
  • EnergieträgerElektro, Luft-/Wasser-Wärmepumpe
Immowelt logo

Preisdetails

Kaufpreis
174000 €
1.450 €/m²
Provision für Käufer
Bitte beachte, das Angebot beinhaltet bei Vertragsabschluss die Zahlung einer Provision. Weitere Informationen erhältst Du vom Anbieter.
Weitere Preisinformationen
Besichtigungstermin: 08.03.2026 00:00:00

Lage

address-icon
Torpantie 18Joensuu (80130)

Weitere Informationen

Stichworte Garage vorhanden, Gesamtfläche: 140,00 m², Anzahl der Schlafzimmer: 4, Anzahl der Badezimmer: 2, Anzahl Terrassen: 1, Flurstück: Pilkko, Bundesland: North Karelia, 2 Etagen, modernisiert: Other 2016, Other 2015, Other 2013, Heating 2012, Other 2011, Expansion 2004, Expansion 1998

Weitere Services

Lust auf eine Besichtigung?
Eine Frage zur Immobilie?
Nachricht hinzufügen
Mit der Nutzung der oben angegebenen Telefonnummer oder durch Klicken auf „Kontaktieren“ akzeptierst Du die Allgemeinen Nutzungsbedingungen, denen Du jederzeit widersprechen kannst. Weitere Informationen zum Datenschutz

Über den Anbieter

maija.ioMaklerbüro
Elimäenkatu 17-19, 00510 HELSINKI
partner badge
Partnerschaft
Pentti HyttinenDein Kontakt
Online-ID: 2nea55j
Referenznummer: 672745
maija.io
Nachricht hinzufügen
Mit der Nutzung der oben angegebenen Telefonnummer oder durch Klicken auf „Kontaktieren“ akzeptierst Du die Allgemeinen Nutzungsbedingungen, denen Du jederzeit widersprechen kannst. Weitere Informationen zum Datenschutz
Wie zufrieden bist du mit dieser Seite (nicht mit der Immobilie selbst)?