
Brinkmeier & Liebelt GmbH & Co. KG
Frau Sandra Brüggemann
+49 ···
Nr. anzeigenPreise & Kosten
Provision für Käufer
Die zu zahlende Maklerprovision beträgt für den Käufer 2,975 % inkl. der gesetzlichen MwSt. auf den Kaufpreis, verdient und zahlbar bei Vertragsabschluss.
Lage
. gute beliebte und zentrumsnahe Ortslage von Schwarzenbek
. die direkte Umgebung ist geprägt von einer ansprechenden Wohnbebauung
. die Innenstadt und der Bahnhof sind fußläufig in wenigen Minuten gut zu erreichen
. die Stadt Schwarzenbek bietet ihren ca. 17.000 Einwohnern eine hervorragende Infrastruktur mit...
Das Haus
Kategorie
Einfamilienhaus
Baujahr
1953
Bezug
sofort oder nach Vereinbarung
Energie & Heizung
Warum sehe ich diese Anzeige? – Du siehst diese Anzeige basierend auf Ihrer Navigation auf unserer Website und den Suchkriterien, die du verwendet hast.
Energieausweistyp
Verbrauchsausweis
Gebäudetyp
Wohngebäude
Baujahr laut Energieausweis
1953
Wesentliche Energieträger
Öl
Gültigkeit
16.10.2025 bis 16.05.2035
Effizienzklasse
D
Endenergieverbrauch
114,20 kWh/(m²·a) - Warmwasser enthalten
Weitere Energiedaten
Energieträger
Öl
Heizungsart
offener Kamin, Zentralheizung
Details
Objektbeschreibung
. massiv konventionelle Bauweise
. ein Vollgeschoss mit voll ausgebautem Obergeschoss
. klassisches Satteldach mit harter Pfanneneindeckung
. hell gestrichene Putzfassade
. ältere isolierverglaste Holzfenster - teilweise mit elektrischen Rollläden davor
. die Beheizung der Immobilie erfolgt über eine...
Ausstattung
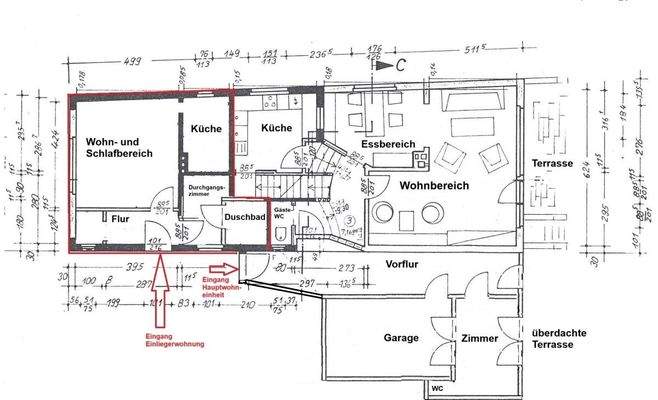
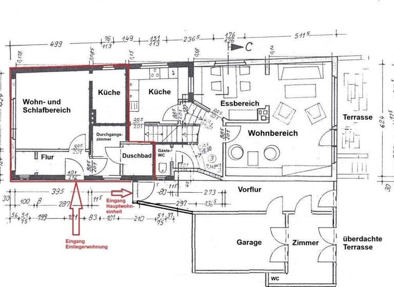
. die Immobilie wurde ca. 1953 gebaut und ab 1966 umfangreich erweitert, aus- und angebaut - zuletzt wurde sie als Einfamilienhaus mit Einliegerwohnung genutzt
. das große Haus verfügt über zwei separate Eingänge - einer zur Haupteinheit, einer zur Einliegerwohnung
Hauptwohnung
. der Eingangsbereich der...
Weitere Informationen
Provision
Die zu zahlende Maklerprovision beträgt für den Käufer 2,975 % inkl. der gesetzlichen MwSt. auf den Kaufpreis, verdient und zahlbar bei Vertragsabschluss.
Sonstiges
Dieses große Einfamilienhaus mit Einliegerwohnung befindet sich in guter und zentraler Ortslage von Schwarzenbek. Es besticht durch seinen...
Anbieter der Immobilie
Brinkmeier & Liebelt GmbH & Co. KG
Lauenburger Str. 10, 21493 Schwarzenbek
Online-ID: 2mpc85r
Referenznummer: 1516
Finde Angebote wie dieses
Hier geht es zu unserem Impressum, den Allgemeinen Geschäftsbedingungen, den Hinweisen zum Datenschutz und nutzungsbasierter Online-Werbung.