NEUER PREIS!!! EINZIEHEN & WOHLFÜHLEN - Helle 3-Zimmer-Wohnung mit Terrasse und Parkplatz
OBJEKT
Die Wohnung befindet sich im Obergeschoss eines Mehrfamilienhauses und überzeugt durch ihre großzügige Wohnfläche von ca. 111 m² sowie die herrliche Terrasse mit rund 13 m², die zusätzlichen Wohnkomfort im Freien bietet.
Der durchdachte Grundriss schafft helle, freundliche Räume mit viel Platz für individuelle Gestaltung.
Besonders hervorzuheben ist die umfassende Sanierung im Jahr 2010: Das Gebäude wurde damals nahezu vollständig erneuert - vom Dach über die Fassade bis hin zu den Fenstern. Dadurch präsentiert sich die Immobilie heute in einem modernen, hochwertigen Zustand.
Ein Kfz-Stellplatz direkt vor dem Haus sorgt für bequemes Parken. Zudem stehen weitere Gästeparkplätze zur Verfügung.
FAST FACTS
- Ca. 111 m² Wohnfläche
- Begehrte Lage in Enns
- Eigener Parkplatz & Gästeparkplätze
- Fußbodenheizung
- 2010 umfassend erneuert/errichtet
- Großzügiger Grundriss
- Nähe zur Enns - ideal für Freizeit und Erholung
LAGE
Die Wohnung liegt in einer sehr beliebten Wohngegend von Enns.
Die Umgebung bietet zahlreiche Möglichkeiten für Spaziergänge, Sport und Erholung. Einkaufsmöglichkeiten, Schulen, Kindergarten sowie öffentliche Verkehrsmittel sind in wenigen Minuten erreichbar.
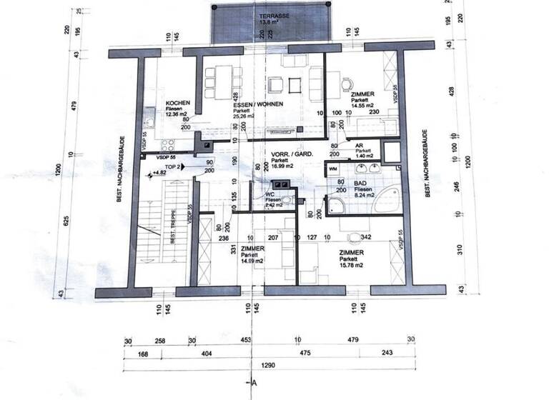
RAUMAUFTEILUNG
Vorraum / Garderobe - 16,99 m² - Großzügiger Eingangsbereich
Ess- / Wohnbereich - 25,26 m² - Heller, offener Raum für Essen und Wohnen
Küche - 12,36 m² - Ausreichend Platz für Einbaugeräte und Arbeitsflächen
Zimmer 1 - 14,55 m² - Ideal als Schlafzimmer oder Arbeitszimmer
Zimmer 2 - 14,99 m² - Nutzbar als Schlaf- oder Kinderzimmer
Zimmer 3 - 15,78 m² - Großes Schlafzimmer oder multifunktionaler Raum
Bad - 8,24 m² - Mit Dusche/Badewanne
WC - 2,42 m² - Separates WC
Abstellraum - 1,40 m² - Praktischer Stauraum
Terrasse - 13,8 m² - Sonnig, direkt vom Wohnbereich aus zugänglich
WICHTIGE INFORMATION
Der Energieausweis ist bereits beauftragt und wird nachgereicht.
BESICHTIGUNG
Überzeugen Sie sich selbst von den Vorzügen dieser Wohnung und vereinbaren Sie einen Termin.
Wir freuen uns darauf, Ihnen Ihr zukünftiges Zuhause in Enns präsentieren zu dürfen!
RECHTLICHES
Gemäß FAGG (Fern- und Auswärtsgeschäfte-Gesetz) und VRUG (Verbraucherrechte-Richtlinie-Umsetzungsgesetz) können Besichtigungstermine ausschließlich nach Erhalt einer schriftlichen Anfrage mit vollständigen Kontaktdaten vereinbart werden. Gleiches gilt für die Bekanntgabe der genauen Adresse und weiterer Informationen.
Unbedingt erforderlich sind:
-Vor- und Nachname
-aktuelle Meldeadresse (Hauptwohnsitz)
-Telefonnummer
-E-Mail-Adresse
Sämtliche Angaben stammen von den Eigentümern sowie von externen Stellen. Für deren Richtigkeit sowie für Irrtum, Satz- und Druckfehler übernehmen wir keine Haftung.
Infrastruktur / Entfernungen
Gesundheit
Arzt <1.000m
Apotheke <1.000m
Klinik <2.000m
Kinder & Schulen
Schule <1.000m
Kindergarten <1.000m
Nahversorgung
Supermarkt <500m
Bäckerei <1.000m
Einkaufszentrum <2.000m
Sonstige
Bank <1.000m
Geldautomat <1.500m
Post <1.500m
Polizei <1.000m
Verkehr
Bus <500m
Autobahnanschluss <500m
Bahnhof <2.000m
Angaben Entfernung Luftlinie / Quelle: OpenStreetMap