Sonnige Wohnung mit Südbalkon, Parkett und hoher Wohnqualität im Max-Kraus-Quartier
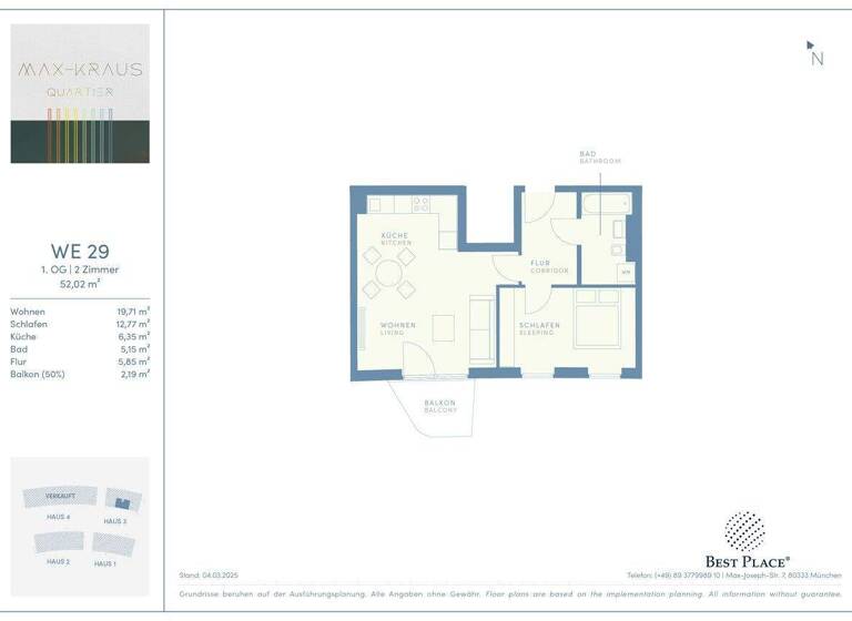
Jetzt ist der ideale Zeitpunkt für ein nachhaltiges Investment: Diese stilvolle 2-Zimmer-Wohnung im 1. Obergeschoss des MAX-KRAUS-QUARTIERS vereint attraktive Renditeperspektiven mit überzeugenden Erwerbskonditionen. Auf ca. 52,02 m² entfaltet sich ein großzügig konzipierter Wohn-, Koch- und Essbereich, der zeitgemäße Wohnqualität auf hohem Niveau vermittelt.
Das elegant ausgestattete Bad mit Badewanne, ein sonniger Südbalkon sowie erlesene Ausstattungsmerkmale wie Parkettboden, Fußbodenheizung und hochwertige Markensanitärobjekte schaffen ein Wohnambiente mit nachhaltiger Vermietbarkeit - ein klarer Mehrwert aus Investorensicht.
Dank KfW-55-Energieeffizienz, der gefragten Lage mit exzellenter Anbindung an Flughafen und München sowie der Projektqualität des erfahrenen bayerischen Familienunternehmens Firmengruppe Schrobenhauser, investieren Sie hier in eine Immobilie mit Substanz, Stabilität und langfristigem Wertentwicklungspotenzial.
Merkmale
1. Geschoss
Personenaufzug
Kelleranteil
.Offener Wohn-, Koch- und Essbereich .Badezimmer mit Badewanne .Echtholz-Parkett und Fußbodenheizung .Sanitärausstattung von Markenherstellern .Balkon in Südausrichtung .Kellerabteil
Grundrisse
Grundrisse
1 / 1
Realisiere Dein Projekt
Bausubstanz und Energie
Energieausweis
A
Zustand der ImmobilieErstbezug
HeizungsartFußbodenheizung
EnergieträgerFernwärme
Preisdetails
Kaufpreis
419000 €419.000 €
8.054,59 €/m²
Provision für Käufer
provisionsfrei
Geschätzte Gesamtkosten
442.045 €1
Kaufpreis
419.000 €
Kaufnebenkosten
23.045 €
2
Notarkosten (1,5%)
6.285 €
Grunderwerbsteuer (3,5%)
14.665 €
Grundbucheintrag (0,5%)
2.095 €
1Der angezeigte Wert ist eine automatisch berechnete Schätzung von immowelt.
2Bei den Angaben handelt es sich um ortsübliche Werte. Individuelle Kosten können abweichen.
Lage
Max-Kraus-Straße 17, Erding (85435)
Erding ist vor allem für eine Marke berühmt: Das Erdinger Weißbier gehört zu den bekanntesten und erfolgreichsten Bier-Spezialitäten Bayerns. Es wird ausschließlich in Erding gebraut. Und das bereits seit 1886. Heute ist es die größte deutsche Weißbierbrauerei in Familienbesitz. Und seit 2019 ist Jürgen Klopp ihr Markenbotschafter. So bayerisch wie das Weißbier ist auch Erding: Den prachtvollen Fassaden der Innenstadt sieht man Erdings Bedeutung als repräsentative Herzogstadt noch an. Ihre farbenfrohe Gestaltung macht das Stadtbild freundlich und einladend. Auf dem Erdinger Bauernmarkt werden vor allem Produkte aus dem Umland angeboten - oft sogar von den Erzeugern selbst. Weiteres Highlight ist der Schrannenplatz mit der denkmalgeschützten Schrannenhalle. Hier ist Erdings pulsierende Mitte. Und das imposante Landshuter Tor wird auch Schöner Turm genannt. Hier flanieren auf den Plätzen und Gassen Bewohner und Besucher, genießen das vielfältige Angebot der Erdinger Geschäfte, Cafés und Gaststätten. Nur wenige Minuten entfernt lädt die Therme Erding mit ihrer einzigartigen Kombination aus tropischer Badelandschaft, großzügigem Saunaparadies und vielfältigen Wellnessangeboten zu Erholung auf höchstem Niveau ein. Das Max-Kraus-Quartier liegt nur wenige Minuten westlich der Innenstadt. Schnell erreichbar sind Supermarkt, Getränkemarkt und der S-Bahnhof Erding, wo die S2 ins Zentrum von München abfährt. Ebenfalls schnell mit dem Auto ist der Flughafen München erreichbar. Im direkten Wohnumfeld geht es ruhig und beschaulich zu. Es gibt Spielplätze und alles ist schnell mit dem Fahrrad erreichbar. In der Freizeit bietet die Umgebung zahlreiche Ausflugsziele. Entscheiden Sie sich für das Beste aus Stadt und Land.
Weitere Informationen
Sonstiges
Mehr Investitionsvorteil mit der 5 % degressiven AfA! Nutzen Sie höhere Abschreibungen in den ersten Jahren, senken Sie Ihre Steuerlast und sichern Sie sich mehr Liquidität für neue Investitionen. Jetzt clever profitieren!
Entdecken Sie ausgewähltes Wohnen in unserer exklusiv gestalteten Musterwohnung in der Max-Kraus-Straße 23, 85435 Erding. Freitags von 13:30 bis 15:30 Uhr sowie samstags von 14:00 bis 16:00 Uhr bieten wir Ihnen die Gelegenheit, Ausstattung, Raumgefühl und Details in ruhiger Atmosphäre persönlich zu erleben. Bitte beachten Sie, dass die Musterwohnung an Feiertagen geschlossen ist. Wir freuen uns darauf, Sie individuell begrüßen zu dürfen.
Stichworte
Tiefgarage vorhanden, vermietbare Fläche: 52,02 m², Bundesland: Bayern, 2 Etagen, Wohnungsnr.: WE 29