Version: 8.24.1Navigation überspringen
339.253 €
3 Zimmer  •  150,9 m²  •  2. Geschoss
Immowelt logo

Penthouse zum Kauf - Erstbezug
339253 €
2.248 €/m²
3 Zimmer  •  150,9 m²  •  2. Geschoss

Penthouse mit Meerblick und beeindruckender Dachterrasse von 68,81 m²

Kurzbeschreibung wohnung-sukosan-neubau-fussbodenheizung Objekt Über den Dingen wohnen: Meerblick, Sonne, Stil. Die Dachterrasse mit 68,81 m² Fläche krönt dieses Penthouse und schafft ein Ambiente, das jeden Tag besonders macht.

Merkmale

  • 2. Geschoss
  • Außen-Stellplatz
  • Meerblick
  • voll klimatisiert
https://www.reker-immobilien.de/kroatien/wohnung-sukosan-neubau-fussbodenheizung_9465?utm_source=ausstattung&utm_medium=txt&utm_campaign=9465
~

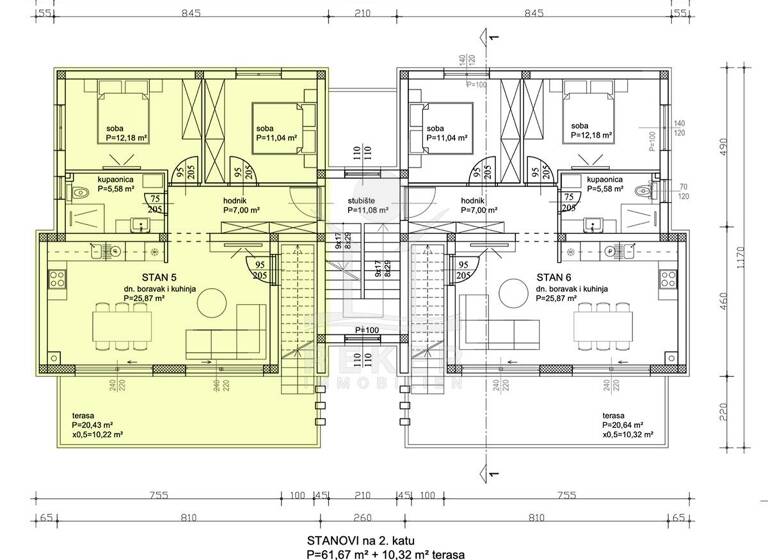
Grundrisse

Grundrisse
1 / 2

Realisiere Dein Projekt

Bausubstanz und Energie

Der Anbieter hat keine Informationen zum Energieverbrauch bereitgestellt.
  • Baujahr2026
  • Zustand der ImmobilieErstbezug
  • HeizungsartFußbodenheizung
Immowelt logo

Preisdetails

Kaufpreis
339253 €
2.248,05 €/m²
Provision für Käufer
3,75 % inkl. MwSt. in Kroatien
Weitere Preisinformationen
1 Stellplatz

Lage

address-icon
Sukosan (23206)
Der Anbieter hat die genaue Adresse nicht freigegeben
In Sukosan, einem beliebten Küstenort in Dalmatien, entsteht ein modernes Wohnhaus, nur 250 Meter vom Meer entfernt. Die südwestliche Ausrichtung sorgt für helle Räume und angenehme Sonnenstunden am Nachmittag. Das Umfeld ist ruhig, grün und vermittelt ein Gefühl von Leichtigkeit. Ein Ort, an dem Wohnen und Erholung selbstverständlich zusammenfinden.

Das kompakte Gebäude umfasst sechs Wohneinheiten, jeweils zwei pro Etage. Klare Linien und moderne Architektur bestimmen den Stil. Der Bau schreitet planmäßig voran, die Fertigstellung ist bis spätestens 15. März 2026 vorgesehen. Jede Wohnung verfügt über einen eigenen Parkplatz direkt vor dem Haus.

Weitere Informationen

Stichworte Stellplatz vorhanden, Süd-West-Balkon/Terrasse, Anzahl der Schlafzimmer: 2, Anzahl der Badezimmer: 1, 1 Etagen, Distanz zur nächsten Einkaufsmöglichkeit: 1.00, Distanz zum Flughafen: 13.00

Weitere Services

Lust auf eine Besichtigung?
Eine Frage zur Immobilie?
Nachricht hinzufügen
Mit der Nutzung der oben angegebenen Telefonnummer oder durch Klicken auf „Kontaktieren“ akzeptierst Du die Allgemeinen Nutzungsbedingungen, denen Du jederzeit widersprechen kannst. Weitere Informationen zum Datenschutz

Über den Anbieter

Micin Stanka 28 A, 22211 Vodice
partner badge
Partnerschaft
Herr Heiner Reker
Herr Heiner RekerDein Kontakt
Online-ID: 25U4Q3HYANHK
Referenznummer: 9465
Reker Immobilien Doo
title
Reker Immobilien Doo
Bewertung: 4,8 von 5 Sternen
Nachricht hinzufügen
Mit der Nutzung der oben angegebenen Telefonnummer oder durch Klicken auf „Kontaktieren“ akzeptierst Du die Allgemeinen Nutzungsbedingungen, denen Du jederzeit widersprechen kannst. Weitere Informationen zum Datenschutz
Wie zufrieden bist du mit dieser Seite (nicht mit der Immobilie selbst)?