Version: 8.22.6Navigation überspringen
486.000 €
4 Zimmer  •  97 m²  •  730 m² Grundstück
Immowelt logo

Einfamilienhaus zum Kauf
486000 €
5.010 €/m²
4 Zimmer  •  97 m²  •  730 m² Grundstück

Modernes Anwesen in Ruhelage

Zum Vorverkauf steht ein moderne, sonnigess Einfamilienhaus in Ruhelage.
Das Grundstück ist nach Süden ausgerichtet und bietet somit optimale Sonnenlage.
Das Haus befindet sich in einem Verbund und besitzt daher eine exclusive private Zufahrt. Am Eigengrund befinden sich auch zwei KFZ-Parkplätze.
Das Haus wird in modernster Bauweise errichtet und verfügt natürlich über aktuelle, zeitgerechte Materialien und Installationen.
Beheizt wird das Haus durch eine Fußbodenheizung mit Luftwärmepumpe.
Der angegebene Kaufpreis beinhaltet eine belagsfertige Übergabe. Sollte eine schlüsselfertige Übergabe gewünscht sein, ist dies mit dem Bauträger zu vereinbaren.
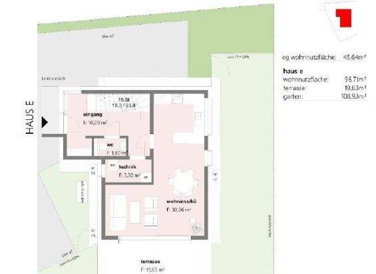
Das Gebäude selbst gliedert sich in:

EG
Eingangsbereich mit Vorraum, Garderobe und Stiegenhaus
einem separaten Gäste WC
einem Technikraum
eine über 30m² große Wohnküche bietet ausreichend Platz auch für größere Familien

OG
Hier befinden sich ein Flur
separates WC
ein großes Badezimmer
ein Hauptschlafzimmer
und zwei Kinder/Gästezimmer

vom Flur gelangt man auch auf den Dachboden, welcher größzügig Platz bietet.

Die Planung ist auf ein helles Wohnkonzept ausgelegt, welches jedoch auch genügend Schatten bietet, um zu starke Sonneneinstrahlung besonders im Sommer unterbindet.

Merkmale

  • 730 m² Grundstück
  • Gäste-WC

Grundrisse

Grundrisse
1 / 4

Realisiere Dein Projekt

Bausubstanz und Energie

Der Anbieter hat keine Informationen zum Energieverbrauch bereit gestellt.
  • Baujahr2023
  • Zustand der ImmobilieProjektiert
  • HeizungsartFußbodenheizung
  • EnergieträgerLuft-/Wasser-Wärmepumpe
Immowelt logo

Preisdetails

Kaufpreis
486000 €
5.010,31 €/m²
Provision für Käufer
3% zzgl. MwSt.

Lage

address-icon
Steinabrückl (2752)
Der Anbieter hat die genaue Adresse nicht freigegeben
Wöllersdorf-Steinabrückl ist eine Marktgemeinde im Bezirk Wiener Neustadt-Land in Niederösterreich mit ca. 4810 Einwohnern

Straße: Die Gemeinde wird von der Süd Autobahn (A2) durchquert, die von Wien bis zur Staatsgrenze zu Italien bei Arnoldstein führt und in Wöllersdorf eine Anschlussstelle ("Wöllersdorf/Wr. Neustadt-Nord") hat. Durch das Ortsgebiet von Wöllersdorf und Feuerwerksanstalt verläuft die Gutensteiner Straße (B21), die von Wiener Neustadt nach Mariazell führt. Ein Seitenast (B21a) verläuft am Rande des Ortsgebiets von Steinbrückl nach Felixdorf, wo sie in die Wiener Neustädter Straße (B17) einmündet.

Eisenbahn: Mit der Gutensteiner Bahn ist die Gemeinde seit 1. September 1877 durch die Eisenbahn erschlossen.

Weitere Informationen

Sonstiges ***ACHTUNG*** Unbedingt beachten !!
Aufgrund der Vereinbarung mit den Immobilieneigentümern sind wir dazu verpflichtet die vollständigen Adressdaten eines Interessenten zu hinterlegen, bevor wir detaillierte Objektinformationen weitergeben dürfen.
Bitte teilen Sie uns daher Ihren Namen, Ihre derzeitige Anschrift, E-Mailadresse und eine Telefonnummer mit.
Wir werden Ihnen die gewünschten Informationen dann umgehend zukommen lassen.
Sollten wir oben angeführte Informationen nicht erhalten, können wir Ihre Anfrage leider nicht bearbeiten.

Der Auftraggeber wurde über die Informationspflicht betreffend Energieausweiskennzahl informiert. Der Energieausweis wir nachgerreicht.

**Unsere Kompetenz ist Ihr Vorteil**
Wir bieten Ihnen ein Rundumservice bis hin zur Vertragserstellung, Treuhandabwicklung und natürlich Grundbuchseintragung.
Sie ersparen sich viele Wege und finden bei uns alles unter einem Dach.

Angegebene Daten und Maße wurden uns vom Eigentümer bzw. aus den Branchenüblichen Datenquellen entnommen.
Wir übernehmen keinerlei Haftung für nicht von uns vermessenen Flächen, bzw. Daten welche durch Unterlagen belegt werden können.
Es gelten ausschließlich die Angaben, welche in einem Kauf- Mietvertrag angegeben werden.
Der Makler steht mit dem vermittelnden Dritten in einem wirtschaftlichen Naheverhältnis. Stichworte Anzahl der Schlafzimmer: 3, Anzahl der Badezimmer: 1, 2 Etagen

Weitere Services

Lust auf eine Besichtigung?
Eine Frage zur Immobilie?
Nachricht hinzufügen
Mit der Nutzung der oben angegebenen Telefonnummer oder durch Klicken auf „Kontaktieren“ akzeptierst Du die Allgemeinen Nutzungsbedingungen, denen Du jederzeit widersprechen kannst. Weitere Informationen zum Datenschutz

Über den Anbieter

Anton Rauch Strasse 6, 2525 GÜNSELSDORF
partner badge
6 Jahre Partnerschaft
Frau Zsuzsanna Bodola
Frau Zsuzsanna BodolaDein Kontakt
Online-ID: 2nmtd5h
Referenznummer: 4722
MyReal Immobilien GmbH
title
MyReal Immobilien GmbH
Nachricht hinzufügen
Mit der Nutzung der oben angegebenen Telefonnummer oder durch Klicken auf „Kontaktieren“ akzeptierst Du die Allgemeinen Nutzungsbedingungen, denen Du jederzeit widersprechen kannst. Weitere Informationen zum Datenschutz
Wie zufrieden bist du mit dieser Seite (nicht mit der Immobilie selbst)?