Version: 8.26.0Navigation überspringen
229.000 €
446 m² Grundstück
Immowelt logo

Grundstück zum Kauf
229000 €
513 €/m²
446 m² Grundstück

Baugrundstück für Doppelhaushälfte in guter Lage von Großhansdorf

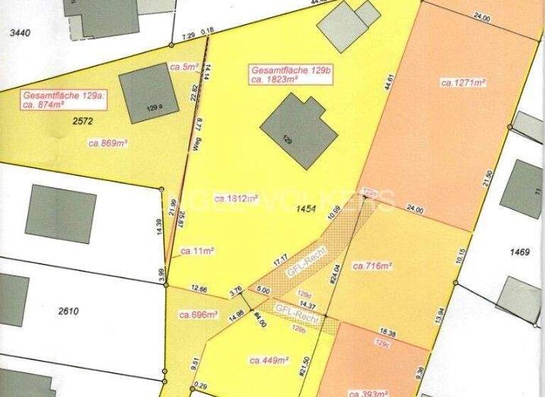
Die insgesamt vier Grundstücke werden ohne Bauträgerbindung zu den genannten Preisen verkauft. Das hier inserierte Grundstück liegt an der südlichen Grundstücksgrenze des insgesamt gut 5.000 m² großen Grundstückes, welches für die geplanten Neubauten bereits in kleinere Flurstücke parzelliert wurde. Mit ca. 446 m² Grundstück ist es das kleinere der beiden real geteilten Doppelhausgrundstücke. Die gemeinsame Zufahrt wird über eine gemeinsame, verkehrsberuhigte Zuwegung, abgehend von der Hauptstraße ermöglicht. Die Käufer zahlen die Kosten für die Zuwegung (Zuwegung für Pkw, Parkplätze und Fußwege) und die Ver- und Entsorgungsleitungen ab Übergabeschacht auf deren jeweiligen Grundstücken, zuzügl. einem Erschließungsbeitrag in Höhe von 3.500.-€, da alle Anschlußleitungen bereits auf das Grundstück geführt sind. Die aktuellen Eigentümer übernehmen die Kosten des unteren Zufahrtsweges von der Hansdorfer Landstrasse inkl. Wendeplatz am Stein. Die Fertigstellung des Endbelages ist für Ende 2027 geplant, wenn die jeweils angeschlossenen Häuser fertiggestellt sein sollten.

Der aktuelle Bebauungsplan gibt folgende Kriterien vor:
- Reines Wohngebiet mit eingeschossiger offener Bauweise
- WR I
- max. 2 WE/Einzel- und Doppelhäuser
- GRZ: 0,3

Es gilt der Bebauungsplan 25 der Gemeinde Großhansdorf
(keine Gewähr auf Richtigkeit. Quelle:
Link für B 25
https://pubweb.itv-stormarn.de/gis/plaene/Grosshan_BPL_25.jpg
Link 1. Änderung
https://pubweb.itv-stormarn.de/gis/plaene/Grosshan_BPL_25_01Ae.jpg)

Ihnen sagt dieses Grundstück zu? Dann freuen wir uns sehr über Ihren Anruf zur Absprache eines Besichtigungstermins vor Ort. Begehungen sind ausschließlich in Begleitung eines Mitarbeiters von Engel & Völkers gestattet.

Merkmale

  • Bezug: nach Absprache
  • 446 m² Grundstück
  • voll erschlossen

Grundrisse

Grundrisse
1 / 4
Immowelt logo

Preisdetails

Kaufpreis
229000 €
513,45 €/m²
Provision für Käufer
3,57 % inkl. gesetzl. MwSt.
Geschätzte Gesamtkosten
237.175 €1
Kaufpreis
229.000 €
Provision für Käufer (3,57%)
8.175 €
1Der angezeigte Wert ist eine automatisch berechnete Schätzung von immowelt.
2Bei den Angaben handelt es sich um ortsübliche Werte. Individuelle Kosten können abweichen.

Lage

address-icon
Großhansdorf (22927)
Der Anbieter hat die genaue Adresse nicht freigegeben
Die Waldgemeinde Großhansdorf liegt nordöstlich vor den Toren der Hansestadt Hamburg und grenzt direkt an Ahrensburg. Dank der U-Bahn-Linie U1, die Großhansdorf mit der Hamburger Innenstadt verbindet, ist die Gemeinde hervorragend an das öffentliche Verkehrsnetz angebunden.

Großhansdorf zeichnet sich durch eine reizvolle, waldreiche Landschaft, eine familienfreundliche Infrastruktur und eine gehobene Wohnqualität aus.
Für den täglichen Bedarf stehen mehrere Einkaufsviertel, ein Wochenmarkt mit regionalen Produkten, Dienstleister sowie Gastronomiebetriebe zur Verfügung. Ein vielfältigeres Einkaufs- und Kulturangebot findet sich im nahen Ahrensburg.

Medizinisch ist die Gemeinde bestens versorgt: Neben Ärzten aller Fachrichtungen befinden sich hier die renommierte LungenClinic Großhansdorf mit internationalem Ruf, die Park-Klinik Manhagen (Orthopädie) sowie eine spezialisierte Augenklinik.

Familien profitieren von einem breiten Bildungsangebot - alle Schulformen sowie mehrere Kindertagesstätten sind im Ort vorhanden und sicher erreichbar.
In der Freizeit bietet Großhansdorf zahlreiche Möglichkeiten: Ob Joggen, Radfahren oder Wandern in der Natur, Reitställe, Golfplätze oder Sportvereine - hier kommen Jung und Alt auf ihre Kosten.

Verkehrstechnisch ist Großhansdorf hervorragend angebunden: Die Autobahn A1 liegt direkt vor der Tür und ermöglicht schnelle Verbindungen - z.?B. in ca. 25 Minuten nach Hamburg oder in ca. 50 Minuten an die Ostseeküste. Auch die Autobahnen A20, A21 und A24 sind schnell erreichbar. Der nächste U-Bahnhof ist fußläufig in 12 Minuten zu erreichen.

Weitere Informationen

Sonstiges Der Makler-Vertrag mit uns kommt durch die Bestätigung der Inanspruchnahme unserer Maklertätigkeit in Textform zustande, wie z.B. insbesondere die Unterschrift des Suchkundenvertrages und/oder des Objekt-Exposés. Die Höhe der Courtage richtet sich nach den ab dem 23.12.2020 in Kraft getretenen gesetzlichen Regelungen zur Teilung der Maklercourtage. Hiernach wird die Courtage regelmäßig für beide Parteien (Eigentümer und Käufer) in Höhe von 3 % zuzüglich Umsatzsteuer in jeweils geltender Höhe, also insgesamt 3,57 % des Kaufpreises einschließlich Umsatzsteuer bei notariellem Vertragsabschluss verdient und fällig. Die Höhe der Bruttocourtage unterliegt einer Anpassung bei Steuersatzänderung. Grunderwerbssteuer, Notar- und Gerichtskosten trägt der Käufer. Stichworte GRZ: 0.3, Bundesland: Schleswig-Holstein, Distanz zum Flughafen: 27.43, Distanz zum Hauptbahnhof: 2.88, Distanz zum Bus: 0.37

Weitere Services

Lust auf eine Besichtigung?
Eine Frage zur Immobilie?
Nachricht hinzufügen
Mit der Nutzung der oben angegebenen Telefonnummer oder durch Klicken auf „Kontaktieren“ akzeptierst Du die Allgemeinen Nutzungsbedingungen, denen Du jederzeit widersprechen kannst. Weitere Informationen zum Datenschutz

Über den Anbieter

Rathausplatz 35, 22926 Ahrensburg
partner badge
6 Jahre Partnerschaft
Firma ENGEL & VÖLKERS Ahrensburg
Firma ENGEL & VÖLKERS AhrensburgDein Kontakt
Online-ID: 26W5NBK29CVS
Referenznummer: W-047CTG
Wie zufrieden bist du mit dieser Seite (nicht mit der Immobilie selbst)?