
Sperr & Zellner Immobilien GmbH
Herr Thomas Schneider
004 ···
Nr. anzeigenPreise & Kosten
Provision für Käufer
2,38 % Käuferprovision inkl. 19 % MwSt. inkl. MwSt.
Lage
Die Stadt Dorfen bietet als zweitgrößte Stadt mit mehr als 15.000 Einwohner im Landkreis Erding eine lückenlose Versorgung. Ärztliche Praxen in allen Bereichen, sowie ein Alten- & Pflegeheim und ein Krankenhaus sind vorhanden.
Außerdem bietet der familienfreundliche Ort auch sämtliche Freizeitmöglichkeiten unter...
Die Wohnung
Bezug
sofort
Derzeitige Nutzung
vermietet
Wohnanlage
Energie & Heizung
Warum sehe ich diese Anzeige? – Du siehst diese Anzeige basierend auf Ihrer Navigation auf unserer Website und den Suchkriterien, die du verwendet hast.
Energieausweistyp
Verbrauchsausweis
Gebäudetyp
Wohngebäude
Baujahr laut Energieausweis
1986
Wesentliche Energieträger
ERDGAS_LEICHT
Gültigkeit
bis 24.08.2031
Effizienzklasse
E
Endenergieverbrauch
151,30 kWh/(m²·a)
Weitere Energiedaten
Energieträger
Gas
Heizungsart
Zentralheizung
Details
Objektbeschreibung
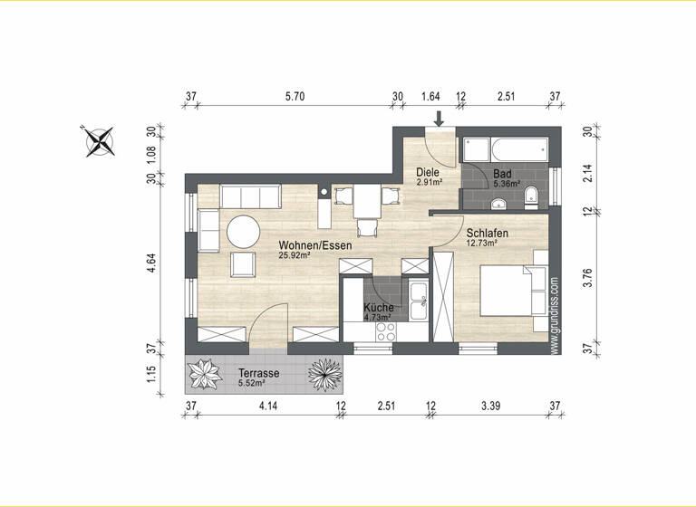
Nahe des charmanten Stadtzentrums von Dorfen gelegen, präsentiert sich diese gepflegte 2-Zimmer-Wohnung im Erdgeschoss eines Achtparteienhauses aus dem Jahr 1985 als ideale Kombination aus Lage, Komfort und Funktionalität. Auf ca. 52?m² Wohnfläche entsteht ein angenehmes Wohnambiente, das sowohl für Eigennutzer als auch für...
Ausstattung
Wohnung:
- Separate Küche mit Einbauküche und Fenster
- Heller Wohn- und Essbereich mit Zugang zur Terrasse
- Sonnige, nach Süden ausgerichtete Terrasse
- Bodenbeläge: Fliesen und Laminat
- Holzfenster + Holztüren
- Kurzfristig vermietet
- Achtfamilienhaus
- Außenstellplatz vor Terrasse
-...
Preisinformation
1 Stellplatz, Kaufpreis: 10.000,00 EUR
Weitere Informationen
Sonstiges
Gerne übersenden wir Ihnen ein ausführliches Exposé mit zahlreichen Fotos und Außenansichten - bitte teilen Sie uns hierzu noch Ihren Namen, Ihre Anschrift und Ihre Festnetz-/Mobilnummer mit - vielen Dank!
Sperr & Zellner Immobilien GmbH
Büro Dorfen: Büro...
Anbieter der Immobilie
Sperr & Zellner Immobilien GmbH
Haager Strasse 16 , 84405 Dorfen
Online-ID: 2kmy95p
Referenznummer: K3718
Finde Angebote wie dieses
Hier geht es zu unserem Impressum, den Allgemeinen Geschäftsbedingungen, den Hinweisen zum Datenschutz und nutzungsbasierter Online-Werbung.