

Luttmann-Immobilien UG (haftungsbeschränkt)
Herr Michael Luttmann
083 ···
Nr. anzeigenPreise & Kosten
Provision für Käufer
Zuzüglich Courtage in Höhe von 3,57% inklusive gesetzlicher Umsatzsteuer
Lage
Die Gemeinde Seeg im Kreis Ostallgäu (Bayern) ist ein sehr beliebter Ferienort unmittelbar vor den ersten Ausläufern der Allgäuer Alpen (Höhe ca. 853 m ü. NN) in der Nähe von Pfronten, Füssen und den Königsschlössern von König Ludwig II in Hohenschwangau.
Trotz der paradiesischen Lage erreichen Sie den Ort schnell und...
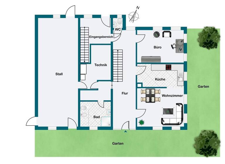
Das Haus
Kategorie
Bauernhaus
Baujahr
1880
Bezug
2026
Energie & Heizung
Warum sehe ich diese Anzeige? – Du siehst diese Anzeige basierend auf Ihrer Navigation auf unserer Website und den Suchkriterien, die du verwendet hast.
Energieausweistyp
Bedarfsausweis
Gebäudetyp
Wohngebäude
Baujahr laut Energieausweis
1880
Wesentliche Energieträger
Holz, Thermische Solaranlage
Gültigkeit
seit 18.11.2019
Effizienzklasse
F
Endenergiebedarf
199,00 kWh/(m²·a)
Details
Objektbeschreibung
Das Anwesen wurde vor etwa 150 Jahren erbaut und befindet sich im Außenbereich. Das dazugehörige Grundstück umfasst rund 0,5 Hektar.
Das Haupthaus wurde in den Jahren 2014/2015 umfassend renoviert und ist derzeit an ein sehr sympathisches älteres Ehepaar vermietet. Das Mietverhältnis besteht bis Ende 2026. Der Auszug...
Weitere Informationen
Sonstiges
Bei einem Gespräch mit dem LRA Ostallgäu im April 2019 wurde die Gestaltungsmöglichkeiten bereits erörtert. Danach ist es wünschenswert, dass der Baukörper der Scheune als solcher auch im Ausbauzustand als Holzbaukörper mit Verschalung sichtbar bleibt. Die Fenster werden deshalb mit einer vorgesetzten - ggf...
Anbieter der Immobilie
Luttmann-Immobilien UG (haftungsbeschränkt)
Allgäuer Str. 1, 87459 Pfronten

Online-ID: 2k7a957
Referenznummer: 23-02-16
Finde Angebote wie dieses
Hier geht es zu unserem Impressum, den Allgemeinen Geschäftsbedingungen, den Hinweisen zum Datenschutz und nutzungsbasierter Online-Werbung.