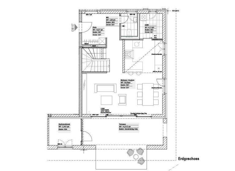
5-Zimmer Terrassenwohnung (Top GM 07)
Wohnen
In einer der exklusivsten Wohngegenden, in München-Bogenhausen, entstehen elf Wohnungen der gehobenen Klasse. Das wunderschöne Grundstück mit altem Baumbestand bietet viel Privatsphäre, in einer durch Villen geprägten Wohngegend.
Genießen Sie die besondere Lebensqualität in Laufweite zum Englischen Garten und zur Isar, sowie den hohen Freizeitwert.
Durch Kombination aus klassischer Architektur, hochwertiger Ausstattung und nachgefragter Lage bietet das Mehrfamilienhaus das passende Ambiente für einen anspruchsvollen Lebensstil.
Wohnqualität
Das nach Südwest ausgerichtete Gebäude besticht durch seine villenartige Architektur und großzügige Grundrisse von 45 bis 155 m². Die weitläufigen, privaten Gartenanteile in den Erdgeschosswohnungen, umlaufende Balkone im Obergeschoss und die übergroßen Terrassen im Dachgeschoss sind das Highlight dieses Objekts. Bodentiefe Fenster lassen viel Sonne in die Räume strahlen, die gehobene Grundausstattung lässt keine Wünsche offen.
Ausstattungsqualität
Schon in der Grundrissplanung wurde jedem Quadratmeter besondere Aufmerksamkeit und Leidenschaft gewidmet. Herzstück sind die nach Süden ausgerichteten Wohn-, Ess- und Kochbereiche mit einem großzügigen Blick ins Grüne. Komfortable Schlafbereiche - teilweise mit en-suite-Bädern und angrenzenden Ankleidezimmern - sowie stilvolle Badezimmer, die an ein privates Spa erinnern, runden das durchdachte Wohnkonzept ab.
Qualitätsmerkmale Ihrer neuen Wohnung sind:
. Durchdachte Grundrisse für mehr Wohnqualität
. Großzügige Terrassen sowie private Gärten
. Fußbodenheizung mit Einzelraumregelung
. Echtholzparkett für das besondere Wohngefühl
. Bodentiefe Fenster für mehr Tageslicht
. Hochwertiges, großformatiges Feinsteinzeug in Küche und Bad
. Gegensprechanlage mit Video
. Hauseigene Tiefgarage mit PKW-Einzelstellplätzen
Lage
Keine Stadt in Deutschland bietet so viel Lebensqualität wie München. Maßgeblich hierfür ist nicht nur der hohe Freizeitwert aus zahlreichen, malerischen Seen und der nahegelegenen Alpenregion, sondern auch eine Vielzahl an unschlagbaren Eigenschaften, wie hervorragende Infrastruktur sowie vielfältige Kultur und Kulinarik.
Der Stadtteil Bogenhausen zählt zu den attraktivsten Wohngegenden in München. Die besondere Lebensqualität zeichnet sich durch den beruhigten Charakter, gepaart mit exklusiven Wohnlagen, einer perfekte Infrastruktur und einem hohen Freizeitwert aus.
Einkaufsmöglichkeiten, Schulen, Kindergärten und Ärzte sind ausreichend vorhanden, die Verkehrsanbindung nach München mit den öffentlichen Verkehrsmitteln ist ideal und in wenigen Gehminuten erreichbar.