*** PREISSENKUNG! Sanierungsbedürftiges 2-FH mit Ausbaupotenzial in guter Lage von Fahrenzhausen ***
AUSBAUFÄHIGES 2-FAMILIENHAUS IN SCHÖNER UND RUHIGER LAGE VON FAHRENZHAUSEN (ORTSTEIL GROßNÖBACH)
Das hier zum Verkauf stehende Zweifamilienhaus auf einem großen Grundstück (845 m²) befindet sich in guter Lage von Großnöbach, einem Ortsteil von Fahrenzhausen, und wurde im Jahr 1970 in solider Massivbauweise errichtet. Das in Hanglage erbaute Gebäude wurde 1984 um einen Treppenhausanbau erweitert und zeitgleich das Dachgeschoss ausgebaut. Im Jahr 2018 erfolgte eine komplette Modernisierung des Erdgeschosses.
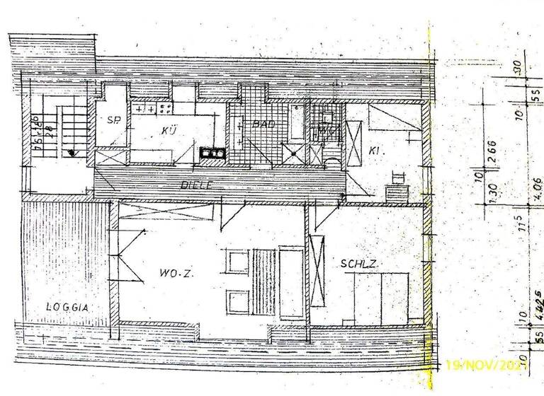
Die heutige Nutzung besteht aus jeweils einer 3-Zimmerwohnung im Erdgeschoss und im Dachgeschoss, beide mit Küche, Badezimmer und Speisekammer bzw. Gäste-WC. Im Erdgeschoss schließt sich an das Wohnzimmer eine geräumige Terrasse mit Blick in den Garten an, im Dachgeschoss lädt eine großzügige West-Loggia zum Verweilen im Freien ein.
Als weitere Vorzüge sind der umlaufende große Garten mit einem schönen Teich sowie der weite Blick in die Ebene zu nennen. Das Nutzungsangebot wird durch 2 Garagen (jeweils mit Grube) und einem Schuppen ergänzt.
Insgesamt umfasst das Gebäude eine Wohnfläche von insgesamt ca. 200 m² und bietet damit viel Platz für verschiedene Nutzungsformen wie zum Beispiel für 2 Mietwohnungen oder auch als Mehrgenerationenhaus an. Energetisch wird es über die Gasleitung und eine kleine Solarenergieanlage versorgt.
Ausgehend vom Gesamtzustands des Wohngebäudes sollte eine Generalsanierung oder alternativ eine Neubebauung in Erwägung gezogen werden. Im Zuge einer notwendigen Sanierung können die Grundrisse der beiden bestehenden flexibel verändert und somit individuelle Wohnräume nach Bedarf geschaffen werden.
Bei einer Neubebauung stellt das Grundstück in seiner Lage und Ausrichtigung eine perfekte Grundlage für neue Wohnformen dar und bietet vielfältige Möglichkeiten an. Als baurechtliche Vorgabe ist hierbei eine Nachbarbebauung nach §34 BauGB maßgeblich. Für ein bereits projektiertes Bauvorhaben von 4 Reihenhäusern mit jeweils ca. 120m² Wohnfläche liegt aktuell eine Baugenehmigung vor. Die geplanten Wohneinheiten erstrecken sich dabei jeweils über 2 Vollgeschosse sowie Dach- und Kellergeschoss.
Die Nachbarschaft besteht vorwiegend aus Einfamilienhäusern bzw. Doppelhaushälften und kann als ländlich geprägt, ruhig sowie familienfreundlich bezeichnet werden. Sie bietet neben der notwendigen Infrastruktur auch eine sehr gute Verkehrsanbindung. Ein Supermarkt, ein Discounter, eine Bäckerei und eine Kindertagesstätte sind fußläufig erreichbar, über die Bundesstraße B13 bzw. die nahe gelegene A92 ist ein schneller Anschluss an den Norden der Landeshauptstadt München sowie an das Umland und den Fernverkehr gewährleistet.
Laden Sie sich nach einer kurzen Eingabe Ihrer Kontaktdaten das Exposé herunter und vereinbaren Sie einen individuellen Besichtigungstermin, um sich vor Ort selbst ein Bild vom vielversprechenden Potenzial dieses Immobilienangebots zu machen!
Merkmale
Bezug: sofort
845 m² Grundstück
Keller
4 Stellplätze: 2 Garagen, 2 Außen-Stellplätze
Gäste-WC
Terrasse
Alle Ausstattungsmerkmale und Highlights auf einen Blick:
* voll erschlossenes Hanggrundstück in guter Lage (ca. 845m²) * Zweifamilienhaus mit zwei 3-Zimmerwohnungen (jeweils ca. 100m² WF) + 2 Garagen + Schuppen * Terrasse im Erdgeschoss und Loggia im Dachbeschoss * großer umlaufender Garten mit schönem Teich * durch Hanglage weitläufiger und unverbaubarer Ausblick * vorliegende Baugenehmigung für Neubau (4 Reihenhäusern mit jeweils ca. 120m² WF) * ideale Verkehrsanbindung durch Bundesstraße B13 und Autobahnanschluss A92 * optimale Anbindung an den Flughafen München (15 Min. Fahrzeit mit PKW) * gute Infrastruktur und familienfreundliche Nachbarschaft * Supermarkt, Discounter, Bäckerei und Kindertagesstätte fußläufig erreichbar
Grundrisse
Grundrisse
1 / 3
Realisiere Dein Projekt
Bausubstanz und Energie
Der Anbieter hat keine Informationen zum Energieverbrauch bereit gestellt.
Baujahr1970
Zustand der ImmobilieMassivhaus, renovierungsbedürftig / sanierungsbedürftig
HeizungsartZentralheizung
EnergieträgerÖl
Preisdetails
Kaufpreis
1095000 €1.095.000 €
5.475 €/m²
Provision für Käufer
3,57 % (inkl. MwSt.)
Weitere Preisinformationen
2 Stellplätze 2 Garagenstellplätze
Geschätzte Gesamtkosten
1.194.316 €1
Kaufpreis
1.095.000 €
Kaufnebenkosten
99.316 €
2
Notarkosten (1,5%)
16.425 €
Grunderwerbsteuer (3,5%)
38.325 €
Provision für Käufer (3,57%)
39.091 €
Grundbucheintrag (0,5%)
5.475 €
1Der angezeigte Wert ist eine automatisch berechnete Schätzung von immowelt.
2Bei den Angaben handelt es sich um ortsübliche Werte. Individuelle Kosten können abweichen.
Lage
Bergfeld, Fahrenzhausen / Großnöbach (85777)
Der Anbieter hat die genaue Adresse nicht freigegeben
Das angebotene Wohnbaugrundstück befindet sich in Fahrenzhausen, einer lebendigen Gemeinde mit ca. 5.000 Einwohnern im nördlichen Umland der Landeshauptstadt München. Die Lage kombiniert in idealer Weise ein Leben in ländlicher und ruhiger Umgebung mit stadtnaher Erreichbarkeit. Direkt vor Ort befinden sich alle Einrichtungen des täglichen Bedarfs wie Supermärkte, Ärzte, Apotheke, Gaststätten, Kindergärten und eine Grundschule. Die Nähe zur Bundesstraße B13 sowie zur Autobahn A92 ermöglichen eine schnelle Anbindung an den Münchner Norden, zum Flughafen und zu den umliegenden Gemeinden. Diese sind auch mit dem Fahrrad oder Bus gut erreichbar.
Die Region ist bekannt für ihre malerische Landschaft und bietet eine ruhige, entspannte Atmosphäre. Die Nähe zur Natur, geprägt von weitläufigen Wiesen und Wäldern, lädt zu ausgedehnten Spaziergängen und Erholung im Freien ein. Zu den vielfältigen Freizeitmöglichkeiten gehört ein reichhaltiges Sportangebot mit Fußball- und Tennisverein, Reitställen im nahen Umfeld und der beliebte Golfplatz Gut Häusern in ca.15 Kilometer Entfernung.
Entfernungen zum Objekt:
- S-Bahn-Anschluss Lohhof (S1) - ca. 8?Min. Fahrtzeit (PKW) - Flughafen München (MUC) - ca. 15?Min. Fahrtzeit (PKW) - München Nord (Unteschleißheim, Karlsfeld etc.) - ca. 10-15?Min. Fahrtzeit (PKW) - Bavarian International School (Haimhausen) - ca. 5?Min. Fahrtzeit (PKW)
Weitere Informationen
Sonstiges
Bei Kauf verpflichtet sich der Käufer/die Käuferin an den Makler der ORANGE Immobilienagentur München - hier die ImmoFit GmbH (GF Magnus Brunckhorst, selbst. Immobilienmakler) - nach Abschluss eines notariellen Kaufvertrags eine Vermittlungsprovision in der angegebenen Höhe zu leisten. Durch eine Exposé-Anfrage werden die Vermittlungsvereinbarung und die Anerkennung der fälligen Maklerprovision im Falle des Zustandekommens eines Kaufvertrags bestätigt. Alle Objektangaben stammen von den Eigentümern, der Makler übernimmt hierfür keine Haftung.
Objektanfragen über die Immobilienportale können nur mit Angabe der vollständigen Adresse und einer Telefonnummer bearbeitet werden. Jeder Kooperationspartner der ORANGE Immobilienagentur ist als selbständiger Immobilienmakler ein rechtlich eigenständiges Unternehmen und handelt somit auf eigene Rechnung und Verantwortung.
Aufsichtsbehörde: IHK München und Oberbayern, Max-Joseph-Str. 2, 80333 München
Stichworte
Anzahl der Schlafzimmer: 4, Anzahl der Badezimmer: 2, Anzahl der separaten WCs: 2, Anzahl Terrassen: 1, Kellerfläche: 100,00 m², 2 Etagen
Sonstiges/Wohnen: Dachboden