Denkmalschutz!! Ausbaufähiges Bauernhaus in nördlicher Stadtrandlage !!!
- Denkmalgeschützter Teil eines Bauernhofes - im 19. Jahrhundert wurde dieser Teil als "Wohnstallhaus" genutzt - die Wohn- Nutzfläche incl. auszubauenden Dachboden beträgt ca. 600m², ohne Dachboden ca. 406 m² - Wegerechte / Grunddienstbarkeit (Geh- und Fahrtrecht) sind notariell gesichert - alle öffentlichen Medien liegen bis zur Grundstücksgrenze an - das Objekt ist nicht bewohnt - Stellplätze für PKW können im Grundstück Platz finden und z.B. per Carport errichtet werden
Angaben zum Energieausweis: Das Objekt steht unter Denkmalschutz und ist daher von der Energieausweispflicht befreit.
Merkmale
Bezug: ab sofort oder nach Vereinbarung
860 m² Grundstück
Terrasse
Denkmalschutz-Afa
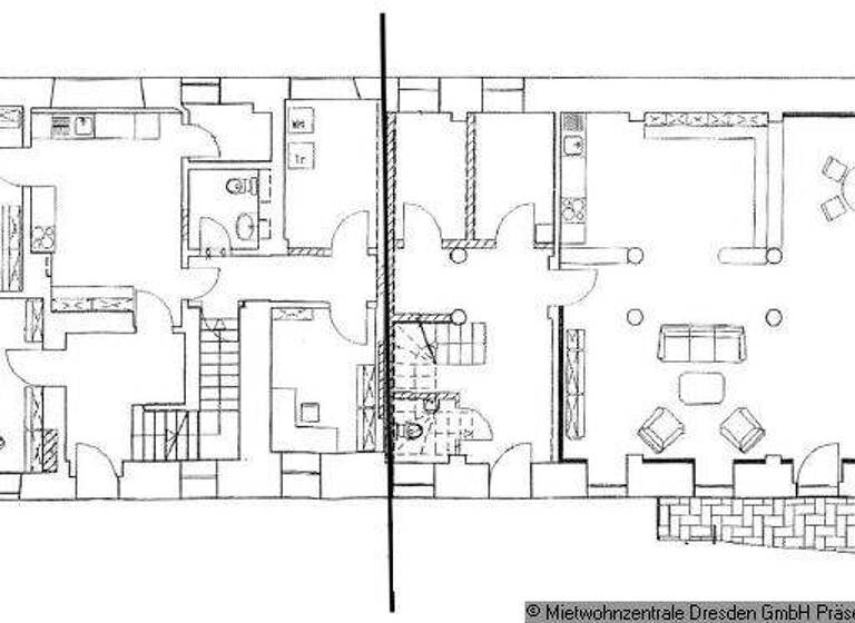
- das Objekt ist momentan in einem unsanierten bzw. im Fassaden- und Dachbereich teilsanierten Zustand - die Fenster wurden bereits komplett ersetzt - eine Bauplanung lag vor über 10 Jahren für 2 Doppelhaushälften (siehe beiliegenden Grundriss) vor - beide DHH können seitlich mit Terrasse versehen werden - es können z. B. auch Wohnungen errichtet werden; ein Treppenhaus ist vorhanden - das Dachgeschoß (mit ca. 200m² Nutzfläche) steht als Ausbaureserve zusätzlich zur Verfügung
Grundrisse
Grundrisse
1 / 2
Realisiere Dein Projekt
Bausubstanz und Energie
Der Anbieter hat keine Informationen zum Energieverbrauch bereit gestellt.
Baujahr1870
Zustand der ImmobilieAltbau (bis 1945), renovierungsbedĂĽrftig / sanierungsbedĂĽrftig
Preisdetails
Kaufpreis
199000 €199.000 €
490,15 €/m²
Provision für Käufer
3,57 %
Geschätzte Gesamtkosten
221.029 €1
Kaufpreis
199.000 €
Kaufnebenkosten
22.029 €
2
Notarkosten (1,5%)
2.985 €
Grunderwerbsteuer (5,5%)
10.945 €
Provision für Käufer (3,57%)
7.104 €
Grundbucheintrag (0,5%)
995 €
1Der angezeigte Wert ist eine automatisch berechnete Schätzung von immowelt.
2Bei den Angaben handelt es sich um ortsübliche Werte. Individuelle Kosten können abweichen.
Lage
Borsberg, Dresden (01328)
Der Anbieter hat die genaue Adresse nicht freigegeben
- nordöstlich von Dresden - ca. 10 Kilometer bis ins Stadtzentrum
Das Gebäude befindet sich am Rande der Landeshauptstadt Dresden oberhalb des Stadtteiles Pillnitz inmitten eines reizvollen Naturschutzgebietes. In der Nähe befindet sich das weltberühmte Schloss Pillnitz mit seinen Parkanlagen, die Borsberghänge sowie die idyllischen Wanderwege im Friedrichsgrund.
copyright by Mietwohnzentrale Dresden GmbH
Weitere Informationen
Sonstiges
- Das Kaufobjekt ist für den Käufer mit 3,57 % vom notariel beurkundeten Gesamtkaufpreis provisionspflichtig.
- Hohe steuerliche Abschreibungsmöglichkeiten laut § 7i des EStg auf den Anteil der Sanierungskosten für Anleger möglich.
- weitere Angebote finden Sie unter www.mietwohnzentrale-dd.de
Stichworte
Nutzfläche: 600,00 m², Anzahl Terrassen: 2, Bundesland: Sachsen, 2 Etagen