Version: 8.24.0Navigation überspringen
Immobilienbüro Kühn GmbH  Co. KG, Komplimentär: Immobilienbüero Kühn Verwaltungs GmbH
45.000 €
3 Zimmer  •  62,1 m²  •  2. Geschoss

Wohnung zum Kauf
45000 €
725 €/m²
3 Zimmer  •  62,1 m²  •  2. Geschoss

Schöne 3-Raum-Wohnung in Oelsnitz/V., 2. OG. Leerstehend!

Das Objekt wurde um 1900 erbaut und 1999 umfassend saniert. Es steht unter Denkmalschutz.

Das Ensemble, in dem das Haus sich befindet, wird von der Denkmalbehörde als "einheitliche Gruppe von historisierenden und stadtbildprägenden Klinkerbauten" bezeichnet. Ein repräsentativer Mittelerker ziert die Fassade, geschmückt mit zahlreichen Putten und Ornamenten.

Die Gebäude verlaufen von Südwesten nach Nordosten.

Das Haus steht an der Straße, welche zum Bahnhof hin in eine Sackgasse führt.

Der rückwärtige, nicht befahrbare Teil des Grundstückes ist begrünt und von allen Bewohnern nutzbar.

Parkmöglichkeiten befinden sich in der näheren Umgebung.

Merkmale

  • 2. Geschoss
  • offene Küche
  • Kelleranteil
  • Badewanne
  • Bodenbelag: Fliesen, Laminat
  • Denkmalschutz-Afa
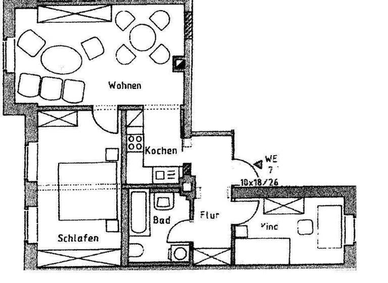
Die hier angebotene 3-Zimmer-Wohnung befindet sich in einem gepflegten Mehrfamilienhaus im 2. Obergeschoss am Rande des Zentrums.

Die Wohnung ist leerstehend.

Die Wohnung besteht aus:
- Wohnzimmer - ca. 26 m²
- Schlafzimmer - ca. 17 m²
- Kinderzimmer - ca. 9 m²
- Bad - ca. 5 m²
- Flur - ca. 6 m²

Alle Werte stammen aus Planungen und sind ca. Angaben.

Die Wohnung ist mit hochwertigem Laminat ausgestattet.

Vom zentralen Flur gelangt man in das innenliegende Bad mit Wanne. Hier befindet sich auch der Waschmaschinenanschluss.
Weiter gelangt man durch eine Schiebetür in die Kochnische und das angeschlossene Wohnzimmer.
Von dort aus gelangt man weiter ins Schlafzimmer.
Außerdem geht vom Flur das Kinderzimmer rechts weg mit Blick ins Grüne.

Grundrisse

Grundrisse
1 / 1

Realisiere Dein Projekt

Bausubstanz und Energie

Energieausweis

Ein Energieausweis ist für diesen Gebäudetyp nicht notwendig.
  • Baujahr1900
  • HeizungsartZentralheizung
  • EnergieträgerGas
MediumRectangleTop

Preisdetails

Kaufpreis
45000 €
725,10 €/m²
Hausgeld
140.65 €
Provision für Käufer
2.975,- EUR inkl. 19 % MwSt.
Die Provision beträgt pauschal 2.975,- EUR inkl. 19 % MwSt.

Sie ist verdient mit Abschluss des notariellen Kaufvertrages und spätestens mit dem Kaufpreis zur Zahlung fällig. Weitere Informationen siehe Provisionsh
Geschätzte Gesamtkosten
49.981 €1
Kaufpreis
45.000 €
Notarkosten (1,5%)
675 €
Grunderwerbsteuer (5,5%)
2.475 €
Provision für Käufer (3,57%)
1.606 €
Grundbucheintrag (0,5%)
225 €
1Der angezeigte Wert ist eine automatisch berechnete Schätzung von immowelt.
2Bei den Angaben handelt es sich um ortsübliche Werte. Individuelle Kosten können abweichen.

Lage

address-icon
OelsnitzOelsnitz/V. (08606)
Der Anbieter hat die genaue Adresse nicht freigegeben
Die Große Kreisstadt Oelsnitz mit 11.000 Einwohnern liegt im Vogtlandkreis in Westsachsen.
Ihre Geschichte reicht bis ins 13. Jahrhundert zurück.

Die Wirtschaft ist vom Tourismus und von der im Vogtland traditionell starken Metallverarbeitung geprägt.

Schloß Voigtsberg weist eine umfangreiche Teppich- und Mineraliensammlung auf. In früheren Zeiten genossen die Halbmond-Teppiche aus der Stadt und Umgebung Weltruf.

Oelsnitz liegt an der B 92. Der nächste BAB-Anschluss der A72 ist nur 3 km entfernt. Es gibt eine Bahnverbindung nach Plauen und Cheb (Tschechien).

Das MFH mit der zum Verkauf stehenden Eigentumswohnung liegt ca 900 m südwestlich vom Stadtzentrum in unmittelbarer Bahnhofsnähe. Die neue gestaltete B92 verläuft parallel zur Bahnhofstraße und nimmt den Durchgangsverkehr auf. Daher hat die Bahnhofstraße eine relativ ruhige Lage.
Die B92 stellt gleichzeitig die Grenze der städtischen Bebauung.

Weiter südlich geht es dann schon ins "Grüne".

Im Stadtzentrum befinden sich viele Einkaufsgelegenheiten, u.a. auch REWE in 300 m Entfernung. Eine Kita ist nur 200 m, Grund- und Oberschule sowie das Gymnasium sind höchstens 1.000 m vom Standort entfernt und gut zu Fuß erreichbar. Zur Staumauer der Talsperre Pirk, einem beliebten Ausflugsziel, benötigt man mit dem Fahrrad ca. eine Viertelstunde. Im Stausee ist Baden, Segeln und Surfen möglich. Der Betrieb von Booten mit Verbrennungsmotoren ist ausdrücklich verboten, was der Erholungsqualität zugute kommt.
Das Vogtland bietet mit seiner herrlichen Landschaft Platz zum Wandern, Fahrradfahren und Auspannen.

Weitere Informationen

Provisionshinweis 2.975,- EUR inkl. 19 % MwSt.
Die Provision beträgt pauschal 2.975,- EUR inkl. 19 % MwSt.

Sie ist verdient mit Abschluss des notariellen Kaufvertrages und spätestens mit dem Kaufpreis zur Zahlung fällig. Der Makler hat mit dem Verkäufer einen provisionspflichtigen Vertrag in gleicher Höhe geschlossen. Sonstiges Der Erwerber wird Mitglied einer Wohneigentümergemeinschaft WEG mit einem Miteigentumsanteil von 114,55/1.000.

Die Immobilie steht unter Denkmalschutz. Daher muss ein Energieausweis nicht vorgelegt werden.

Bitte nutzen Sie das Kontaktformular, um uns Ihre Fragen bzw. Ihren Besichtigungswunsch mitzuteilen. Wir nehmen schnellstmöglich den Kontakt zu Ihnen auf bzw. senden Ihnen gern ergänzende Unterlagen entsprechend Ihrer Anfrage zu.

Alle Angaben beruhen auf Aussagen der Eigentümer bzw. basieren auf den uns bis dato vorliegenden Unterlagen und erfolgen ohne Gewähr. Irrtum und zwischenzeitlicher Verkauf bleiben vorbehalten. Exposé © 2026, Immobilienbüro Kühn GmbH & Co. KG. Stichworte Anzahl der Schlafzimmer: 2, Anzahl der Badezimmer: 1, 4 Etagen, modernisiert: 1999

Weitere Services

Lust auf eine Besichtigung?
Eine Frage zur Immobilie?
Nachricht hinzufügen
Mit der Nutzung der oben angegebenen Telefonnummer oder durch Klicken auf „Kontaktieren“ akzeptierst Du die Allgemeinen Nutzungsbedingungen, denen Du jederzeit widersprechen kannst. Weitere Informationen zum Datenschutz

Über den Anbieter

Jahnstr. 17, 08058 Zwickau
partner badge
6 Jahre Partnerschaft
Herr Wolfgang KühnDein Kontakt
Online-ID: 2n3wc5l
Referenznummer: Ba17-07
Immobilienbüro Kühn GmbH  Co. KG, Komplimentär: Immobilienbüero Kühn Verwaltungs GmbH
Immobilienbüro Kühn GmbH Co. KG, Komplimentär: Immobilienbüero Kühn Verwaltungs GmbH
Bewertung: 4,6 von 5 Sternen
Nachricht hinzufügen
Mit der Nutzung der oben angegebenen Telefonnummer oder durch Klicken auf „Kontaktieren“ akzeptierst Du die Allgemeinen Nutzungsbedingungen, denen Du jederzeit widersprechen kannst. Weitere Informationen zum Datenschutz
MediumRectangleTop
MediumRectangleBottom
MediumRectangleTop
Wie zufrieden bist du mit dieser Seite (nicht mit der Immobilie selbst)?