Version: 8.26.0Navigation überspringen
8 €
6 Zimmer  •  229 m² Bürofläche
Immowelt logo

Bürogebäude zur Miete
8 €
6 Zimmer  •  229 m² Bürofläche

Businesspark Willicher Damm (M)EINE ca. 229 m² flexible Büroeinheit

| . | Flexibilität & Veränderungsbereitschaft heißt aus Vermietersicht | . |
Raumaufteilung und Ausstattung erfolgt nach individueller Absprache.

Diese optisch mehr als ansprechende Büro - und Hallenliegenschaft spiegelt Ihre Kompetenz gegenüber Ihren Kunden und Mitarbeitern wider.

Vermieterseitig werden die Hallenflächen, die Büro- und Sozialräume in den Gewerken Elektrik, Maler-, Boden- und Fliesenarbeiten umfangreich renoviert und instand gesetzt, sprich Sie können direkt einziehen.

| . | Büroeinheit | . |
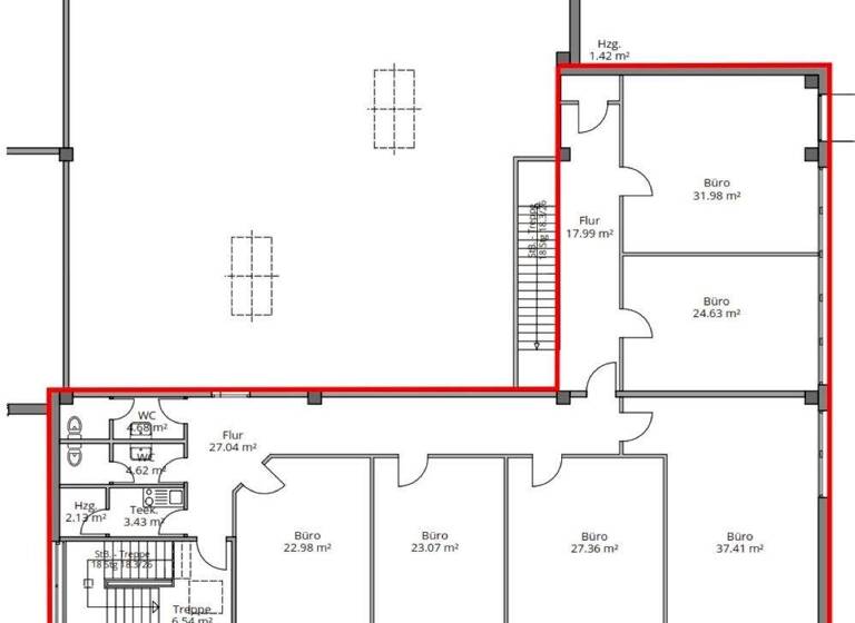
Die im 1. Obergeschoss liegende offene, helle & freundliche Büroeinheit (ca. 229 m²) umfasst mehrere Einzel - Doppelbüros.
Eine Trennung der Einheit ist nach Absprache möglich.

Selbstverständlich verfügt die Einheit über einen Sozialbereich mit einer Einbauküche nebst getrennten WC's.

| . | Stellplätze | . |
Vor dem Objekt befinden sich zahlreiche Kfz-Stellplätze, welche optional von Ihnen angemietet werden können.

Merkmale

  • Bezug: sofort
  • Bodenbelag: Fliesen, Teppich
| . | Gebäudeteil O | . |
Das hier anzumietende Büro bildet den Gebäudeteil "N & O", die Fläche können Sie aus dem beigefügten Lageplan des Businesspark Willicher Damm entnehmen.


| . | Büro | . |
Boden: nach Mieterwunsch
Trennwände: nach Mieterwunsch
Decken: abgehängte inkl. Beleuchtung
Heizung: Erdgas
Klima: nach Mieterwunsch
Netzverbindung: Glasfaseranschluss möglich
Sonnenschutz: außen vorhanden

Genug der Worte, seien Sie Teil des Mönchengladbacher Mega-Trends Logistik - und Digitalisierungsstandort!

Grundrisse

Grundrisse
1 / 1

Bausubstanz und Energie

Möchtest du Details zum Energieverbrauch?info_energy_calculation-icon
  • Baujahr2000
  • Zustand der ImmobilieGepflegt
  • EnergieträgerGas
Immowelt logo

Mietkosten

Nettomiete zzgl. Nebenkosten
8 €
Provision für Mieter
Provisionsfrei
Kaution
keine Angabe
Weitere Preisinformationen
Nettokaltmiete: 8,00 EUR

Lage

address-icon
Willicher Damm 135UeddingMönchengladbach / Uedding (41066)
Der Businesspark Willicher Damm mit einer Gesamtfläche von ca. 24.444 m² hat prominente Nachbarschaft. Autohäuser, Fastfoodketten, Supermärkte oder der Neubau des Polizeipräsidiums bieten Ihnen Synergien und Netzwerke.

Mönchengladbach-Nord mit eigenen Autobahnabfahrten liegt zwischen Düsseldorf, Köln, Krefeld und den Beneluxländern. Die Bundesautobahnen A44, A52, A3 und die regionalen Verkehrsnetze erreichen Sie in unter 5 Minuten Fahrzeit:

| . | Entfernungen | . |
Flughafen Mönchengladbach 1 Kilometer
Hauptbahnhof Mönchengladbach 3 Kilometer
Krefeld 14 Kilometer
Düsseldorf 20 Kilometer
Düsseldorf Airport 21 Kilometer
Duisburger Hafen 30 Kilometer
Venlo / Niederlande 25 Kilometer

Weitere Informationen

Sonstiges Gerne lassen wir Ihnen ein individuelles Mietangebot zukommen.


Seitens des Vermieters sei ausdrücklich auf eine sehr hohe Flexibilität & Veränderungsbereitschaft verwiesen, die Flächen können als Großraumbüro genutzt werden oder in eine Zellenstruktur ausgebaut werden.


Die Energie - und Wasserkosten können optional über den Vermieter abgerechnet werden, genauso aber auch mit Eigenverträgen mit den jeweiligen Energieversorgungsunternehmen. Stichworte Lagerfläche: 229,00 m², Gesamtfläche: 229,00 m²

Weitere Services

Lust auf eine Besichtigung?
Eine Frage zur Immobilie?
Mit einer persönlichen Nachricht hast du bessere Chancen auf eine Antwort.
Mit der Nutzung der oben angegebenen Telefonnummer oder durch Klicken auf „Kontaktieren“ akzeptierst Du die Allgemeinen Nutzungsbedingungen, denen Du jederzeit widersprechen kannst. Weitere Informationen zum Datenschutz

Über den Anbieter

Voosen 38, 41179 Mönchengladbach
partner badge
Partnerschaft
Herr Ansgar MertensDein Kontakt
Online-ID: 25FSSU24M4AB
Referenznummer: 335
Wie zufrieden bist du mit dieser Seite (nicht mit der Immobilie selbst)?