

Villa zum Kauf2250000 €12.363 €/m²6 Zimmer • 182 m² • 464 m² Grundstück
2250000 €
12.363 €/m²
6 Zimmer • 182 m² • 464 m² Grundstück
Ankommen. Aufatmen. Zuhause sein. Exklusives Leben im Luxusneubau.
Merkmale
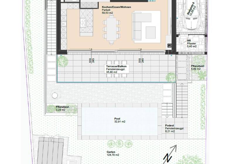
- 464 m² Grundstück
- Kein Keller
- Balkon
- Terrasse
- Garten
- 2 Stellplätze
- Swimmingpool
Grundrisse
Grundrisse
1 / 3
Realisiere Dein Projekt
Bausubstanz und Energie
Möchtest du Details zum Energieverbrauch?

- Zustand der ImmobilieNeubau
Preisdetails
Kaufpreis
2250000 €
12.362,64 €/m²
Provision für Käufer
Alle Angaben sind ohne Gewähr und basieren ausschließlich auf Informationen, die uns von unserem Auftraggeber übermittelt wurden. Weitere Informationen siehe Provisionshinweis.
Lage

Hinterbrühl (2371)
Der Anbieter hat die genaue Adresse nicht freigegeben
Weitere Informationen
Weitere Services
Lust auf eine Besichtigung?
Eine Frage zur Immobilie?
Über den Anbieter
Pfarrgasse 8 / 2, 2500 Baden
Partnerschaft

Engel & Völkers Baden I Mödling Mag. Livia BeirerDein Kontakt
Online-ID: 26T4DI3AFE3H
Referenznummer: I-04929U-W-04929U


Engel & Völkers Baden bei Wien / EV Baden GmbH
Wie zufrieden bist du mit dieser Seite (nicht mit der Immobilie selbst)?

