Version: 8.26.0Navigation überspringen
300 €
2 Zimmer  •  51,5 m²  •  frei ab sofort
Immowelt logo

Wohnung zur Miete
300 €
2 Zimmer  •  51,5 m²  •  frei ab sofort

Klasse Single-Wohnung

In der charmanten Stadt Kamenz wartet eine gemütliche Etagenwohnung auf dich, ideal für junge Menschen, die nach einem eigenen Zuhause suchen. Die Wohnung hat eine Wohnfläche von etwa 51,50 Quadratmetern und ist somit perfekt für Singles oder Paare. Sie ist für den Verwendungszweck Wohnen konzipiert und kann bereits ab dem 1. Februar 2026 bezogen werden. Das Gebäude, in dem sich diese Wohnung befindet, stammt aus dem Jahr 1900 und wurde als Massivbau errichtet, was für eine solide und langlebige Konstruktion sorgt.

Die Wohnung selbst ist gepflegt und bietet alles, was du für ein komfortables Wohnen benötigst. Für Entspannung sorgt das Badezimmer mit einer Dusche, in der du dich nach einem langen Tag erfrischen kannst. Zusätzlich gibt es einen Keller, was dir zusätzlichen Stauraum bietet.

Obwohl die Wohnung in einem älteren Gebäude liegt, bietet sie eine gemütliche Atmosphäre und eine gute Ausstattung. Es ist jedoch zu beachten, dass die Energieklasse mit E angegeben ist, was bedeutet, dass der Energiebedarf höher ist als in modernen Neubauten. Trotzdem bietet diese Wohnung eine großartige Gelegenheit, in einer historischen Umgebung zu wohnen und die Vorteile einer etablierten Nachbarschaft zu genießen. Wenn du also nach einer gemütlichen und praktischen Wohnung in Kamenz suchst, könnte dies genau das Richtige für dich sein.

Merkmale

  • frei ab sofort
  • Badezimmer: Bad mit Dusche, Bad mit Fenster
  • Kelleranteil
  • Bodenbelag: Fliesen, Laminat
Kabel TV vorhanden! Super Singlewohnung im alten Stadtkern

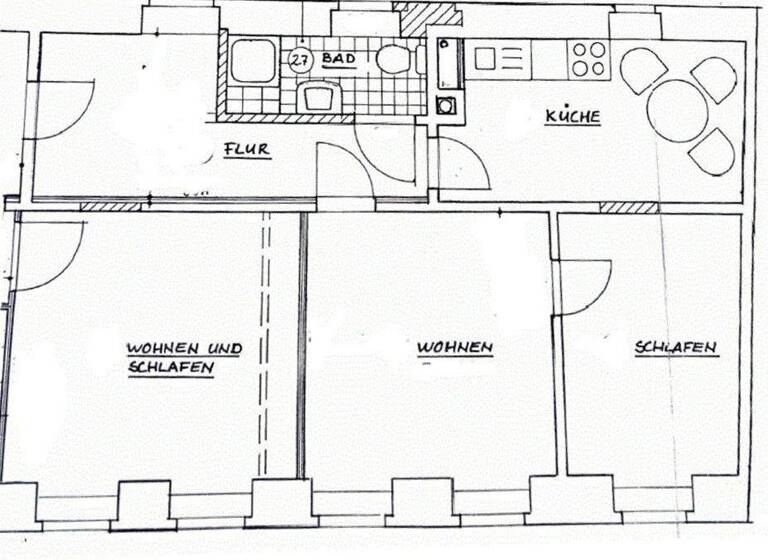
Grundrisse

Grundrisse
1 / 1

Bausubstanz und Energie

Energieausweis

E
  • Baujahr1900
  • Zustand der ImmobilieMassivhaus, Gepflegt
  • HeizungsartEtagenheizung
  • EnergieträgerGas
Immowelt logo

Mietkosten

Warmmiete
450 €
Kaltmiete
5,83 €/m²
300 €
Nebenkosten
70 €
Heizkosten
80 €
Kaution
600 €
Weitere Preisinformationen
Nettokaltmiete: 300,00 EUR

Lage

address-icon
Kamenz (01917)
Der Anbieter hat die genaue Adresse nicht freigegeben
Die Lessingstadt Kamenz liegt in der westlichen Oberlausitz am Fuße des Hutberges im Naturraum Westlausitzer Hügel- und Bergland. Die Gegend bildet die Nahtstelle zwischen der flachen Teichlandschaft im Norden, eine der größten Wasserflächen ' der Deutschbaselitzer Großteich ' befindet sich auf Kamenzer Gebiet, und dem Lausitzer Bergland im Süden. Dementsprechend ist die Landschaft im Norden von flachwelliger Heide geprägt, die nach Süden hin relativ rasch ansteigt und im Ortsteil Hennersdorf bereits Mittelgebirgscharakter zeigt. Von Süden kommend und sich im Stadtgebiet mit einigen weiteren kleinen Bächen, wie dem Langen Wasser, vereinigend durchfließt die Schwarze Elster Kamenz in Richtung Norden. In der Nähe befindlich: Grundschule, Realschule, Hauptschule, Gymnasium, Kindertagesstätte, Nahverkehrsanbindung, Einkaufsmöglichkeit

Weitere Informationen

Sonstiges BODENBELAG:
Laminat
BAD:
Bad mit Fenster, Bad mit Dusche, Boden: Fliesen/Stein
KÜCHE:
Küche mit Fenster, Boden: Fliesen/Stein, Anschluss für Elektroherd,
WASCHEN:
Trockenraum, Anschluss im Bad
WEITERES:
Etagenheizung (Gas), Abstell: Keller
Es wird keine Haftung für die Angaben im Exposé von uns übernommen, da diese auf den Aussagen der Auftraggeber beruhen. Stichworte Bundesland: Sachsen

Weitere Services

Lust auf eine Besichtigung?
Eine Frage zur Immobilie?
Mit einer persönlichen Nachricht hast du bessere Chancen auf eine Antwort.
Mit der Nutzung der oben angegebenen Telefonnummer oder durch Klicken auf „Kontaktieren“ akzeptierst Du die Allgemeinen Nutzungsbedingungen, denen Du jederzeit widersprechen kannst. Weitere Informationen zum Datenschutz

Über den Anbieter

Jägerstr. 6, 02625 Bautzen
partner badge
3 Jahre Partnerschaft
Herr Frank Rostowski
Herr Frank RostowskiDein Kontakt
Online-ID: 26M6B5IRHYDK
Referenznummer: 2026-0422
Wie zufrieden bist du mit dieser Seite (nicht mit der Immobilie selbst)?